- >>
- eladó ingatlanok
- >>
- eladó lakás
- >>
- eladó lakás Mosonmagyaróvár
- >>
Eladó jó állapotú lakás - Mosonmagyaróvár
| | |||
| Kedvencnek jelölöm | Elküldöm emailben | Megosztás | Szavazás |
| FIX 3% lakáshitelre megvehető | |||
| 34 900 000 HUF | |||
Ingatlan adatai
- Eladó vagy kiadó:Eladó
- Település:Mosonmagyaróvár
- Kategória:Lakás
- Alkategória:Tégla
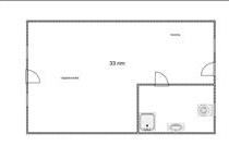
- Alapterület:33 m2
- Csere is:Nem
- Hirdető:Cég
- Élő videón megtekinthető:Nem
- Szobaszám:1
- Állapot:Jó állapotú
- Hány szintes az ingatlan:Földszintes
- Komfortosság:nincs megadva
- Hányadik emeleti:Földszint
- Lift:Nincs
- Parkolási lehetőség:Udvaron
- Fűtés:Hőszivattyús
- Bútorozottság:nincs megadva
- Fényviszony:Közepes
- Tájolás:K
- Kilátás:nincs megadva
- Internet:nincs megadva
- Klíma:Van
- Akadálymentesített:nincs megadva
- Energiatanúsítvány:nincs megadva
- Villany:Van
- Víz:Van
- Gáz:nincs megadva
- Csatorna:Van
- Üzenetküldés
- Hívás

Referencia szám: 3329

Ingatlan hirdetés leírása
Ritkaság a Belvárosban! Teljesen Felújított, 33 nm-es Földszin...
Ritkaság a Belvárosban! Teljesen Felújított, 33 nm-es Földszinti Lakás 100 nm-es Saját Udvarral és Vízpartkapcsolattal Eladó!Mosonmagyaróvár szívében, a belvárosban kínálunk eladásra egy egyedülálló lehetőséget! Egy 1920-as években épült, tégla falazatú, cserépfedéses sorházi lakás keresi új tulajdonosát, mely 2020-ban teljeskörű felújításon esett át.
A 33 nm-es, földszintes ingatlan főbb jellemzői:
Állapot: a felújítás során mindent kicseréltek: új villanyvezetékek (3x16A), valamint új, modern nyílászárók kerültek beépítésre
Elrendezés: a lakás egy tágas, 33 nm-es nappali-szobából áll, melyben egy konyhasarok kialakítására van lehetőség (a víz- és csatornakiállások előkészítve). a fürdőszoba külön helyiségben található.
Fűtés: a fűtés rendkívül gazdaságosan és rugalmasan megoldott. Beszerelésre került egy hűtő-fűtő légkondicionáló, emellett a radiátoros fűtésrendszer is teljesen kiépítésre került (a radiátorok a helyükön), már csak egy villanykazán csatlakoztatása hiányzik. a melegvizet villanybojler biztosítja.
Fürdőszoba: a fürdő modern, szürke csempével burkolt, új szaniterekkel (wc, mosdószekrény) és törölközőszárítós radiátorral felszerelt. a zuhanyzó helye kialakításra került, ide már csak egy zuhanytálca beépítése szükséges.
Kert és Parkolás: Az ingatlanhoz egy kb. 100 Nm-es, saját használatú hátsó udvarrész tartozik. Ez a terület tökéletesen alkalmas több gépkocsi zárt udvari parkolására, de kialakítható itt egy privát kert vagy terasz is.
Extra: a hátsó udvar közvetlen vízpartkapcsolattal rendelkezik, ami páratlan lehetőségeket rejt magában a pihenésre, kikapcsolódásra.
Ez a szerkezetileg jó állapotban lévő, szinte teljesen befejezett lakás minimális ráfordítással azonnal költözhetővé tehető.
Elhelyezkedése és adottságai révén tökéletes választás fiataloknak első lakásként, időseknek a földszinti elhelyezkedés miatt, ingázóknak a központi elhelyezkedés végett, vagy befektetőknek bérbeadásra.
Ne maradjon le erről a belvárosi gyöngyszemről! Keressen bizalommal a megtekintéssel kapcsolatban!
Referencia szám: 3329 FIX 3% lakáshitelre megvehető


