Eladó jó állapotú lakás - Sopron
- INGYENES HIRDETÉS FELADÁS
Ingatlan adatai
- Feladva:4 hónapja a megveszLAK-on
- Eladó vagy kiadó:Eladó
- Település:Sopron
- Kategória:Lakás
- Alkategória:Tégla
- Alapterület:201 m2
- Csere is:Nem
- Hirdető:Cég
- Élő videón megtekinthető:Nem
- Szobaszám:7 + 1 fél
- Állapot:Jó állapotú
- Hány szintes az ingatlan:Földszintes
- Komfortosság:nincs megadva
- Kertkapcsolatos:Igen
- Hányadik emeleti:Földszint
- Erkély:nincs megadva
- Lift:Nincs
- Parkolási lehetőség:Garázsban
- Fűtés:Egyéb
- Bútorozottság:nincs megadva
- Fényviszony:Napfényes
- Tájolás:nincs megadva
- Kilátás:nincs megadva
- Internet:nincs megadva
- Klíma:nincs megadva
- Akadálymentesített:nincs megadva
- Energiatanúsítvány:nincs megadva
- Villany:Van
- Víz:Van
- Gáz:nincs megadva
- Csatorna:Van
- Közös költség:3 000 Ft
- Kapcsolatfelvétel

Menich Julianna Erzsébet
+36-(70)-621-7737
Mondd meg a hirdetőnek, hogy a megveszLAK-on találtad a hirdetést.
Referencia szám: M322148
Hitel ajánlatok
Ingatlan hirdetés leírása
PANORÁMÁS KERTKAPCSOLATOS LAKRÉSZ SOPRON
Panorámás kertkapcsolatos lakrész Sopron lőverekben – természet közelében, DUPLAKOMFORTTAL!
9400 Sopron, Felső-Lőverek
Sopron egyik legkedveltebb, erdő közeli városrészében, a Felső-Lőverekben kínálunk megvételre egy építész által tervezett kétlakásos családi ház külön helyrajzi számon nyilvántartott lakrészét, ősfás, panorámás telken. a környezet nyugodt, természetközeli, kiváló benapozottsággal.
________________________________________
INGATLAN főbb JELLEMZŐI:
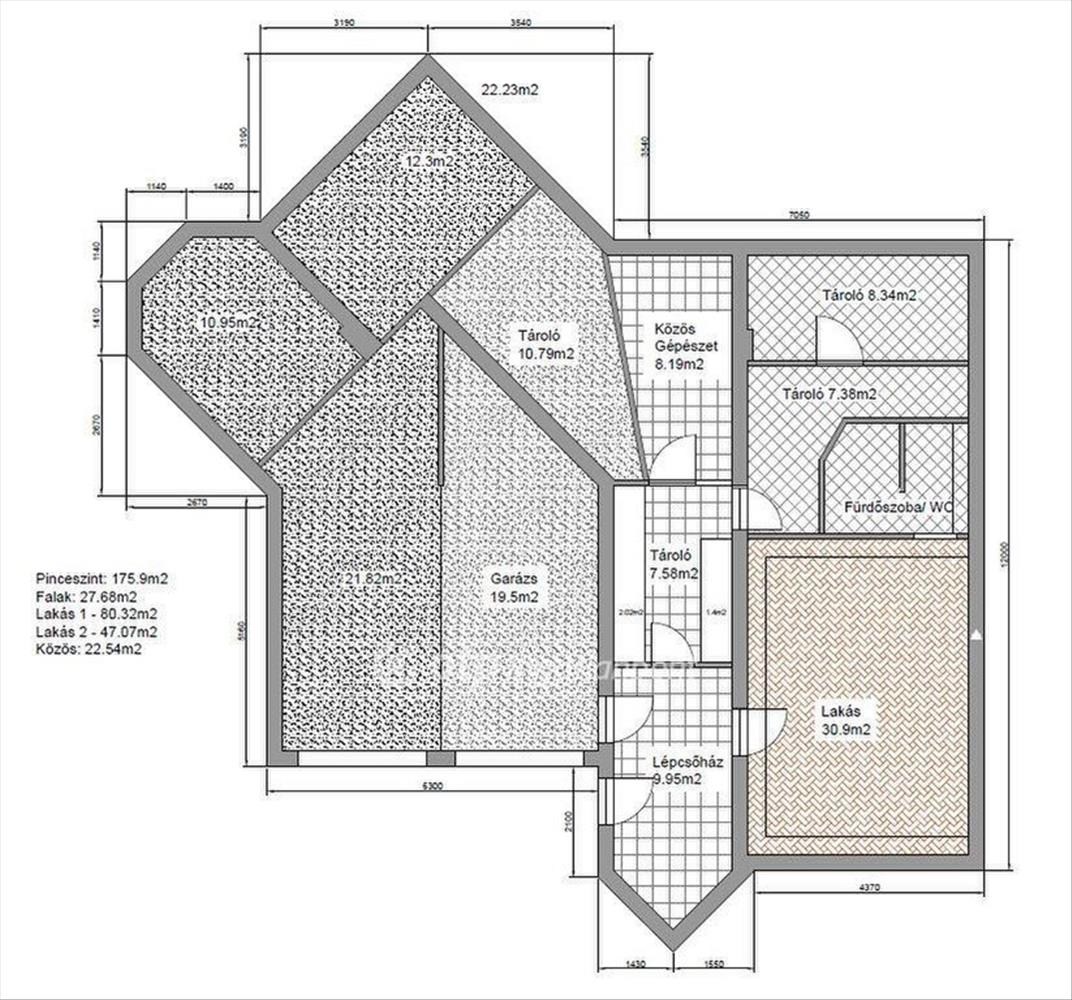
Hivatalos alapterület: 201 m² (valódi: 168 m²)
7 szoba + 1 félszoba
Duplakomfortos kialakítás
Saját telekrész: 855 m² + közös területhányad, összesen kb. 1030 M²
Városi panorámás, napfényes elhelyezkedés
Két szinten kialakított lakrész, kertkapcsolattal
________________________________________
KIALAKÍTÁS és EXTRÁK:
Földszint (137 m²):
Tágas lakótér, kertkapcsolatos nappali
28 m²-es terasz/erkély közvetlen kertkapcsolattal
Parkosított kert játszótérrel, gyümölcs- és szelídgesztenyefákkal
Alsó szint (31 m² külön lakrész):
Külön bejáratú, fűtött-hűtött lakótér
Saját zuhanyzó és WC
Vendéglakásnak, irodának vagy bérbeadásra ideális
Tárolás és parkolás:
3 tároló összesen 30 m²-en
19, 5 m²-es garázs
3 kültéri parkoló (fedett és nyitott)
________________________________________
MŰSZAKI tartalom és KORSZERŰSÍTÉSEK:
Hőszivattyús fűtés mindkét szinten – alacsony rezsi
H-tarifás elektromos rendszerbővítés
Elektromos hálózat korszerűsítése
Új konyhai gépek
Tetőfelújítás
Elektromos kapu és kamerarendszer
________________________________________
LOKÁCIÓ – Sopron LŐVEREK:
Közvetlen erdő közelség, tiszta levegő
Sopron belvárosa percek alatt elérhető
Csendes, exkluzív lakókörnyezet
________________________________________
Az OTP Ingatlanpont irodánk előnyei:
Ügyfeleinknek lehetőségük van az OTP Bank által nyújtott kedvező hitel-, kamat-, és díjkedvezmények igénybevételére, szakképzett és tapasztalt hitel ügyintézőnk által.
Referenciaszám: M322148
- ́ ́́!
Menich Julianna éő, : +36-70-621-7737
Referencia szám: m322148 Hitel.hu - Hasonlítsa össze a bankok lakáshitel ajánlatait
Tetszett ez az eladó Soproni jó állapotú 7 egész és 1 fél szobás tégla lakás? Hívd fel a hirdetőt most, és tudj meg mindent erről az eladó tégla lakásról! Ha gondolod nézelődj tovább az eladó lakás Sopron oldal hirdetései között. Ennek az eladó lakásnak az ára 144900000 Ft és mivel az alapterülete 201 négyzetméter, ezért az átlagos négyzetméterára 720896 HUF/m2.
Az eladó lakások menüpontban további hirdetések között is böngészhetsz. Ha van kedved, akkor böngészhetsz a Menich Julianna Erzsébet összes hirdetése között, vagy akár a/az OTPip Mosonmagyaróvár Lucsony utca 20 - OTP Ingatlanpont Iroda összes hirdetése között is.

