Eladó jó állapotú lakás Sopron
| Kedvencbe | Megosztás | Árfigyelő |
| FIX 3% lakáshitelre megvehető | ||
| 82 900 000 HUF | ||
Ingatlan adatai
- Eladó vagy kiadó:Eladó
- Település:Sopron
- Kategória:Lakás
- Alkategória:Tégla
- Alapterület:90 m2
- Csere is:Nem
- Hirdető:Magánszemély
- Élő videón megtekinthető:Nem
- Szobaszám:3
- Állapot:Jó állapotú
- Hány szintes az ingatlan:2 szintes
- Komfortosság:nincs megadva
- Tetőtéri:Nem
- Kertkapcsolatos:Nem
- Hányadik emeleti:2
- Lift:Nincs
- Parkolási lehetőség:Garázs (megvásárolható)
- Fűtés:Gáz (cirko)
- Bútorozottság:Részben bútorozott
- Fényviszony:Napfényes
- Tájolás:nincs megadva
- Kilátás:nincs megadva
- Internet:nincs megadva
- Klíma:Van
- Akadálymentesített:nincs megadva
- Energiatanúsítvány:nincs megadva
- Villany:nincs megadva
- Víz:nincs megadva
- Gáz:nincs megadva
- Csatorna:nincs megadva
- Üzenetküldés
- Hívás


Hitel ajánlat
Ingatlan hirdetés leírása
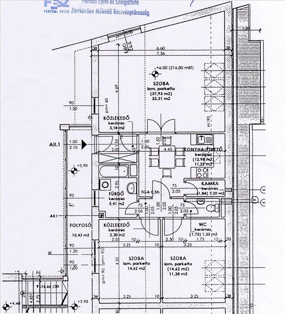
Tágas lakás sok tárolóval
Eladó Soproni lakás, sok tárolóval166m2 lehet az öné, 90m2 áráért! ! ! !
Nettó 166 m2 összterület! ! ! !
A lakás: 90 m2, (3 szoba+konyha+spajz+fürdő+Wc+előtér)
terasz: 10 m2 ( zárt kizárólagos használat)
földszinti tároló: 6 m2 (saját, külön zárható helység, bicikli, babakocsi, és egyéb dolgok tárolására)
tetőtéri tároló: 60 m2 ajándék ( kizárólagos használati joggal saját, szigetet tetőtér minden egyéb dolgok tárolására)
A lakás tégla építésű 6 lakásos társasházban található a 2. emeleten (féltetőtér).
A lakást:
-2 szobás (15m2/szoba),
-1 nagy nappalis (35m2),
-kis előtér a bejáratnál (szélfogó),
-konyha-étkező,
-spejz,
-szobák előtti előtér,
-külön fürdő,
-külön wc,
-és egy terasz alkotja.
A lakást melegét egy kombi cirkó gázkazánnal szerelt radiátoros fűtési rendszer biztosítja, plusz két inverteres hűtő-fűtő klíma is van telepítve, hogy ne legyen gáz, ha nincs gáz.
Kiépített riasztó rendszer (minden nyílászárón érzékelővel), a teraszon biztonsági rácsos kapuval.
Műanyag nyílászárókkal mindegyike szúnyoghálóval ás a hálószobán plusz redőnnyel szerelve.
A Welux tetőtéri ablakok mindegyike el van látva hővédő rolóval és belső árnyékolóval a maximális kényelem és komfort elérése érdekében.
A lakás kiváló műszaki állapotban, 3*16a árammal, víz, gáz, kábeltévé, internettel, kaputelefon, beépített bútorokkal, étkező szekrénnyel, szép állapotban várja új tulajdonosát.
A lakáshoz tartozik egy földszinti 6 m2-es zárt saját tároló és egy 60 m2-es kizárólagos használatú hőszigetelt tetőtér, ami a lakásból közelíthető meg.
A tetőtér ( padlástér) duplán szigetelt, tiszta, saját használatú 60 m2-es tárolásra alkalmas helység.
(Nem lakható).
A beépített egyedileg a lakáshoz tervezett konyhabútor marad, étkező bútor marad, előszobabútor marad, fürdőszoba bútor marad, beépített wc szekrény marad.
Egy 4 tagú családnak a havi rezsiköltség (víz, gáz, villany, közös költség) csak 43. 000Ft. ! ! ! ! !
A belvároshoz közel az Ösvény utcában található a lakópark melyben a 4 ház közül az első házban található a lakás, fás zöld környezetben zárt parkosított udvar. Csendes, biztonságos lakóparki környezetben, és mégis a belvároshoz közel.
Ára: 82, 9 M.
Melytől a főtér 5perc sétálva, Intersár és a buszvég is csak pár perc.
Az elkerülő (határra vezető út) 1 utcányira van szinte azonnal ki lehet jutni a határra nem kell a városon átmenni.
Garázs és kocsibeálló zárt udvarban található, a garázs külön megvásárolható ára:12, 9 M FIX 3% lakáshitelre megvehető

