Eladó újszerű állapotú lakás - Székesfehérvár
- INGYENES HIRDETÉS FELADÁS
Ingatlan adatai
- Eladó vagy kiadó:Eladó
- Település:Székesfehérvár
- Kategória:Lakás
- Alkategória:Tégla
- Alapterület:65 m2
- Csere is:Nem
- Hirdető:Cég
- Élő videón megtekinthető:Nem
- Szobaszám:3
- Állapot:Újszerű, kitűnő
- Hány szintes az ingatlan:3 szintes
- Komfortosság:nincs megadva
- Hányadik emeleti:nincs megadva
- Erkély:nincs megadva
- Lift:Nincs
- Parkolási lehetőség:Beállóban
- Fűtés:nincs megadva
- Bútorozottság:nincs megadva
- Fényviszony:nincs megadva
- Tájolás:nincs megadva
- Kilátás:nincs megadva
- Internet:nincs megadva
- Klíma:nincs megadva
- Akadálymentesített:nincs megadva
- Energiatanúsítvány:nincs megadva
- Villany:nincs megadva
- Víz:nincs megadva
- Gáz:nincs megadva
- Csatorna:nincs megadva
- Kapcsolatfelvétel

Micskey Marianna Vanda
+36-30-322-9382
Mondd meg a hirdetőnek, hogy a megveszLAK-on találtad a hirdetést.
Hitel ajánlatok
Ingatlan hirdetés leírása
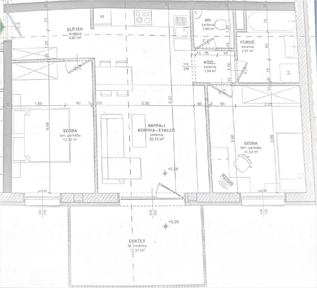
Székesfehérváron, a belváros közelében eladó egy 2024 októberé...
Székesfehérváron, a belváros közelében eladó egy 2024 októberében átadott, új építésű lakás. Az ingatlan a társasház hátsó, udvari részén található, ezért kifejezetten csendes és az utcazajtól mentes. Déli fekvésének köszönhetően a terek naposak, kifejezetten világosak.
A 66, 5 nm -es alapterület 60 nm lakóteret és egy 11, 3 nm -es teraszt foglal magában. a lakás elosztása praktikus: amerikai konyhás nappali, két különnyíló hálószoba, előszoba, tágas fürdő és egy különálló wc található.
A gépészet kiváló. a fűtést és hűtést korszerű hőszivattyús rendszer biztosítja, padlófűtéssel. a fenntartási költség alacsony, a műszaki tartalom megfelel egy új építésű, energiatakarékos otthonnal szemben támasztott elvárásoknak. a vételár részét képezi egy saját felszíni parkoló. a beálló árnyékos helyen van, de a lefedése már a társasház tervei között szerepel. a lakáshoz opcionálisan egy külön helyrajzi számon nyilvántartott, 3 nm -es tároló is vásárolható.
A környéken minden fontos szolgáltatás pár perces sétával elérhető. a lokáció és a modern felszereltség miatt a lakás befektetésnek is jó és értékálló választás, hiszen adottságainak köszönhetően könnyen kiadható.
Az OTP Ingatlanpont teljes körű, díjmentes ügyintézést biztosít, a finanszírozás előkészítésétől az adásvétel lebonyolításáig, kedvezményes hitellehetőségekkel. Hitel.hu - Hasonlítsa össze a bankok lakáshitel ajánlatait
Tetszett ez az eladó Székesfehérvári újszerű állapotú 3 szobás tégla lakás? Hívd fel a hirdetőt most, és tudj meg mindent erről az eladó tégla lakásról! Ha gondolod nézelődj tovább az eladó lakás Székesfehérvár oldal hirdetései között. Ennek az eladó lakásnak az ára 104000000 Ft és mivel az alapterülete 65 négyzetméter, ezért az átlagos négyzetméterára 1600000 HUF/m2.
Az eladó lakások menüpontban további hirdetések között is böngészhetsz. Ha van kedved, akkor böngészhetsz a Micskey Marianna Vanda összes hirdetése között, vagy akár a/az Gárdony Bóné Kálmán utca 12 - OTP Ingatlanpont Iroda összes hirdetése között is.

