Eladó lakás - Szentendre
- INGYENES HIRDETÉS FELADÁS
Ingatlan adatai
- Eladó vagy kiadó:Eladó
- Település:Szentendre
- Kategória:Lakás
- Alkategória:Tégla
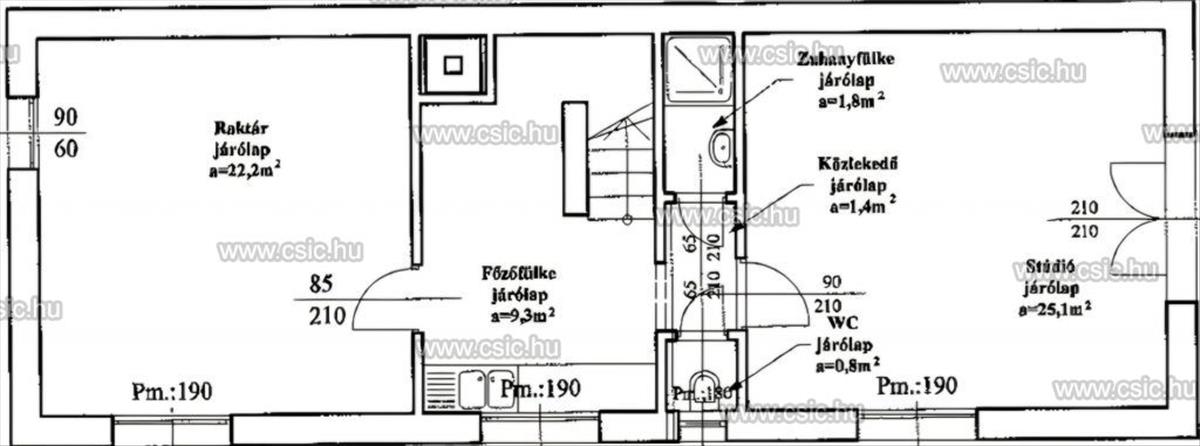
- Alapterület:160 m2
- Csere is:Nem
- Hirdető:Cég
- Élő videón megtekinthető:Nem
- Szobaszám:4
- Állapot:nincs megadva
- Hány szintes az ingatlan:nincs megadva
- Komfortosság:Összkomfortos
- Hányadik emeleti:nincs megadva
- Erkély:nincs megadva
- Lift:nincs megadva
- Parkolási lehetőség:Garázsban
- Fűtés:Egyéb
- Bútorozottság:nincs megadva
- Fényviszony:nincs megadva
- Tájolás:nincs megadva
- Kilátás:nincs megadva
- Internet:nincs megadva
- Klíma:nincs megadva
- Akadálymentesített:nincs megadva
- Energiatanúsítvány:nincs megadva
- Villany:Van
- Víz:Van
- Gáz:Van
- Csatorna:Van
- Kapcsolatfelvétel

Árvay Katalin
+36-(20)-239-5572
Mondd meg a hirdetőnek, hogy a megveszLAK-on találtad a hirdetést.
Hitel ajánlatok
Ingatlan hirdetés leírása
SZENTENDRE KÁLVÁRIA ÚT 160 NM 4 SZOBA
Kálvária tér közeli ház ELADÓ!
Eladó Szentendrén, a Kálvária tér közelében, egy 160 m2-es, 3 szintes ikerházfél 450 m2-es telekkel.
A ház alsó szintjén található garázs, kiszolgáló helyiségek, a középső szinten 2 szoba, konyha, vizesblokk, a tetőtérben további 2 szoba és egy fürdőszoba kapott helyet.
A ház központi elhelyezkedésű, buszmegálló, iskola, óvoda, bevásárlási lehetőség a közelben. FIX 3% lakáshitelre megvehető
Tetszett ez az eladó Szentendrei 4 szobás tégla lakás? Hívd fel a hirdetőt most, és tudj meg mindent erről az eladó tégla lakásról! Ha gondolod nézelődj tovább az eladó lakás Szentendre oldal hirdetései között. Ennek az eladó lakásnak az ára 99000000 Ft és mivel az alapterülete 160 négyzetméter, ezért az átlagos négyzetméterára 618750 HUF/m2.
Az eladó lakások menüpontban további hirdetések között is böngészhetsz. Ha van kedved, akkor böngészhetsz a Árvay Katalin összes hirdetése között, vagy akár a/az Családi Ingatlan összes hirdetése között is.

