Eladó újszerű állapotú lakás - Tatabánya
- INGYENES HIRDETÉS FELADÁS
Ingatlan adatai
- Eladó vagy kiadó:Eladó
- Település:Tatabánya
- Kategória:Lakás
- Alkategória:Tégla
- Alapterület:77 m2
- Csere is:Nem
- Hirdető:Cég
- Élő videón megtekinthető:Nem
- Szobaszám:4 + 2 fél
- Állapot:Újszerű, kitűnő
- Hány szintes az ingatlan:nincs megadva
- Komfortosság:Összkomfortos
- Hányadik emeleti:4
- Erkély:Nincs
- Lift:Nincs
- Parkolási lehetőség:Nincs
- Fűtés:Vegyes tüzelésű kazán
- Bútorozottság:nincs megadva
- Fényviszony:nincs megadva
- Tájolás:nincs megadva
- Kilátás:Utcai
- Internet:nincs megadva
- Klíma:nincs megadva
- Akadálymentesített:nincs megadva
- Energiatanúsítvány:nincs megadva
- Villany:nincs megadva
- Víz:nincs megadva
- Gáz:nincs megadva
- Csatorna:nincs megadva
- Kapcsolatfelvétel

Papp László
+36-(70)-528-7031
Mondd meg a hirdetőnek, hogy a megveszLAK-on találtad a hirdetést.
Hitel ajánlatok
Ingatlan hirdetés leírása
Eladó Tégla lakás, Tatabánya, Újváros, Huba vezér utca, 77nm, ...
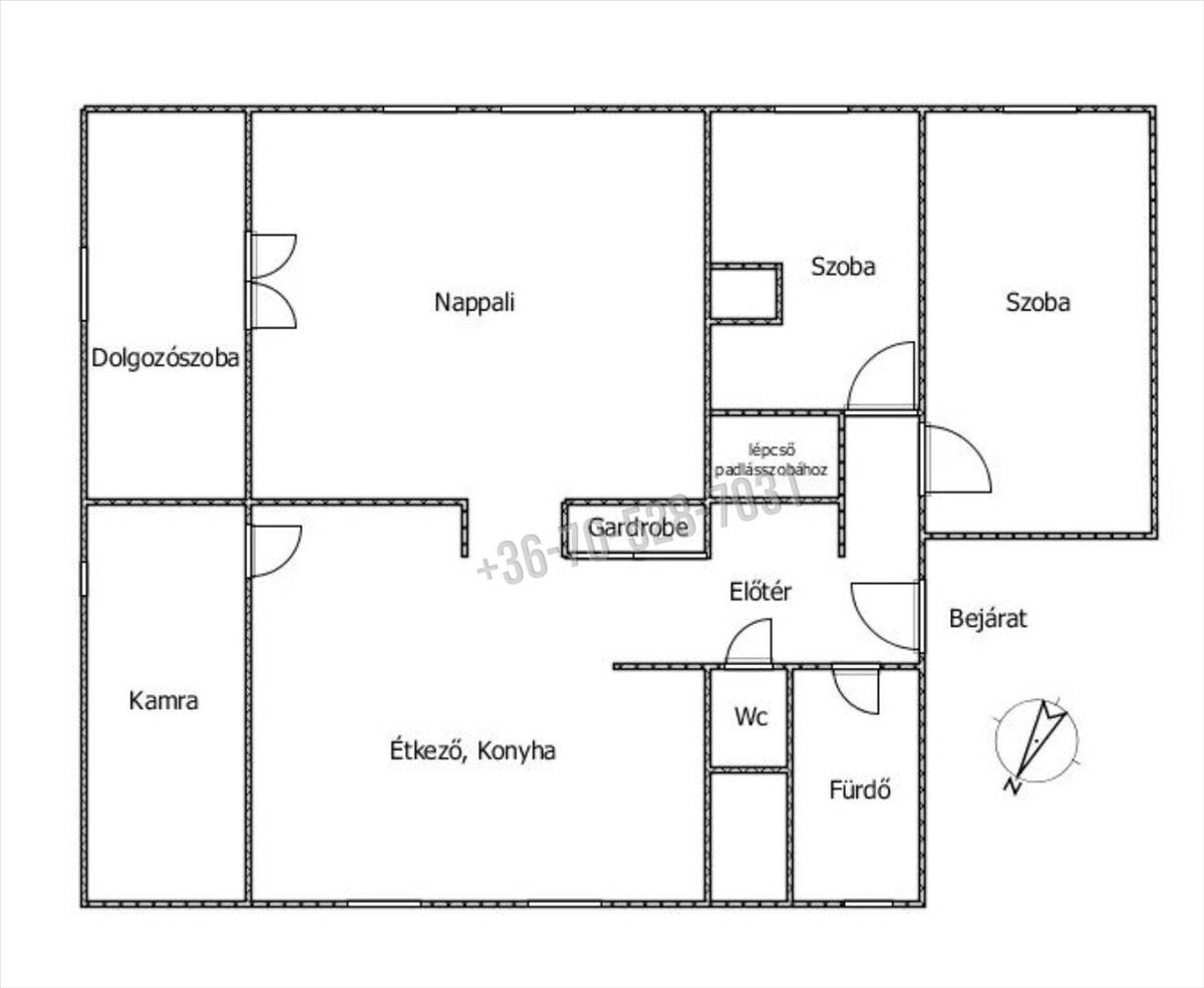
Eladó Tatabánya Újvárosban egy nagyon tágas, világos, tetőtéri, 77 m2-es otthon a 4. emeleten.
A lakás nagyon különleges elrendezésű, tágas nappalival, és élhető szép konyha- étkezővel rendelkezik. Az ingatlan jó minőségű fa, és modern műanyag ablakokkal is felszerelt.
Az otthon összeköttetésben van egy padlásszobával is amihez egyedülálló haszonélvezeti joggal rendelkezik.
Összessen így 4 szoba+2 fél szoba is rendelkezésre áll az új tulajdonos számára. Minden helyiségben kíváló minőségű burkolatok lettek felhelyezve.
Az ingatlan közelében minden megtalálható, ami a kényelmes mindennapi élethez szükséges.
Nézzük meg együtt ezt a különleges lakást, időpont egyeztetés végett keressen akár hétvégén, vagy az esti órákban is! Bankfüggetlen pénzügyi szakembereinkkel intézzük az esetleges hiteligényét! FIX 3% lakáshitelre megvehető
Tetszett ez az eladó Tatabányai újszerű állapotú 4 egész és 2 fél szobás tégla lakás? Hívd fel a hirdetőt most, és tudj meg mindent erről az eladó tégla lakásról! Ha gondolod nézelődj tovább az eladó lakás Tatabánya oldal hirdetései között. Ennek az eladó lakásnak az ára 72000000 Ft és mivel az alapterülete 77 négyzetméter, ezért az átlagos négyzetméterára 935065 HUF/m2.
Az eladó lakások menüpontban további hirdetések között is böngészhetsz. Ha van kedved, akkor böngészhetsz a Papp László összes hirdetése között, vagy akár a/az KOMPLEX INGATLAN összes hirdetése között is.

