Eladó átlagos állapotú lakás - Tiszavasvári
- INGYENES HIRDETÉS FELADÁS
Ingatlan adatai
- Eladó vagy kiadó:Eladó
- Település:Tiszavasvári
- Kategória:Lakás
- Alkategória:Tégla
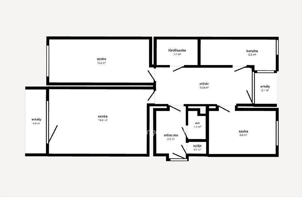
- Alapterület:68 m2
- Csere is:Nem
- Hirdető:Cég
- Élő videón megtekinthető:Nem
- Szobaszám:2 + 1 fél
- Állapot:Átlagos állapotú
- Hány szintes az ingatlan:Földszintes
- Komfortosság:nincs megadva
- Hányadik emeleti:3
- Erkély:nincs megadva
- Lift:Nincs
- Parkolási lehetőség:nincs megadva
- Fűtés:Távfűtés
- Bútorozottság:nincs megadva
- Fényviszony:Napfényes
- Tájolás:nincs megadva
- Kilátás:nincs megadva
- Internet:nincs megadva
- Klíma:nincs megadva
- Akadálymentesített:nincs megadva
- Energiatanúsítvány:nincs megadva
- Villany:Van
- Víz:Van
- Gáz:nincs megadva
- Csatorna:Van
- Közös költség:9 000 Ft
- Kapcsolatfelvétel

Pannuska Marcell
+36-(70)-316-9587
Mondd meg a hirdetőnek, hogy a megveszLAK-on találtad a hirdetést.
Referencia szám: M315013
Hitel ajánlatok
Ingatlan hirdetés leírása
Eladó Lakás, Tiszavasvári
Eladó tágas, 72 nm -es, 3. emeleti téglalakás Tiszavasváriban!
Tiszavasvári központjától néhány percre, egy négyemeletes téglaépület 3. emeletén kínálunk eladásra egy karbantartott, világos, 72 nm -es lakást.
Az ingatlan beton alapon épült, tégla falazatú, és központi, radiátoros fűtéssel rendelkezik, amely rendkívül kedvező rezsivel üzemel? a téli hónapokban is tízezer forint alatt marad a fűtés költsége.
A keleti fekvésű lakás nyáron is kellemesen hűvös, köszönhetően a ház előtt álló nagy, árnyékot adó fáknak.
A környék csendes, rendezett, a városközpont, üzletek, óvoda és iskola mind pár perc sétára találhatók, így ideális választás családok számára is.
OTP Banki hátterünknek köszönhetően finanszírozási igényekben (pl. Otthon Start Hitelprogram, Babaváró, Falusi csok, CSOK Plusz, Lakáshitel, Személyi kölcsön stb. ), Illetve biztosítások tekintetében is díjmentesen, soron kívüli ügyintézéssel segítem ügyfeleim!
Referenciaszám : m315013 FIX 3% lakáshitelre megvehető
Tetszett ez az eladó Tiszavasvári átlagos állapotú 2 egész és 1 fél szobás tégla lakás? Hívd fel a hirdetőt most, és tudj meg mindent erről az eladó tégla lakásról! Ha gondolod nézelődj tovább az eladó lakás Tiszavasvári oldal hirdetései között. Ennek az eladó lakásnak az ára 18000000 Ft és mivel az alapterülete 68 négyzetméter, ezért az átlagos négyzetméterára 264706 HUF/m2.
Az eladó lakások menüpontban további hirdetések között is böngészhetsz. Ha van kedved, akkor böngészhetsz a Pannuska Marcell összes hirdetése között, vagy akár a/az OTPip Nyíregyháza Sólyom utca 4 - OTP Ingatlanpont Iroda összes hirdetése között is.

