Eladó telek - Sződ
- INGYENES HIRDETÉS FELADÁS
Ingatlan adatai
- Eladó vagy kiadó:Eladó
- Település:Sződ
- Kategória:Telek
- Alkategória:Egyéb
- Alapterület:nincs megadva
- Telekterület:978 m2
- Csere is:Nem
- Hirdető:Cég
- Élő videón megtekinthető:Nem
- Villany:nincs megadva
- Víz:nincs megadva
- Gáz:nincs megadva
- Csatorna:nincs megadva
- Kapcsolatfelvétel

Vede Casa Kft.
+36-(30)-109-6915
Mondd meg a hirdetőnek, hogy a megveszLAK-on találtad a hirdetést.
Hitel ajánlatok
Ingatlan hirdetés leírása
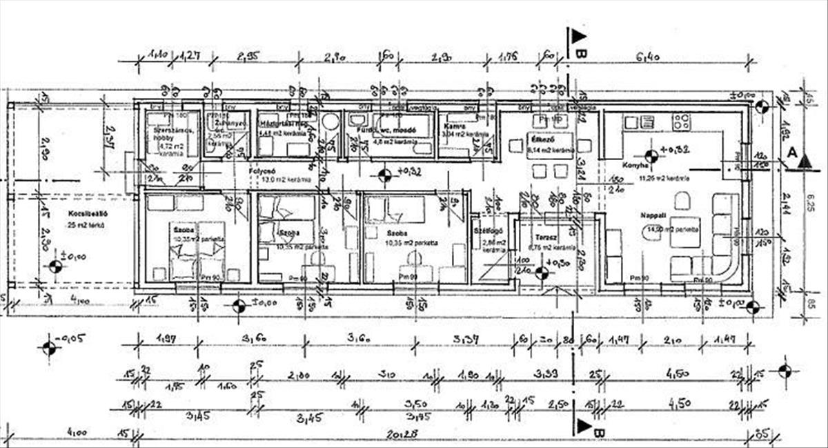
Sződön eladó egy 973 m²-es, aszfaltozott, csendes melléku...
Sződön eladó egy 973 m²-es, aszfaltozott, csendes mellékutcában található építési telek!
A telek 10, 5 méteres utcafronttal és 25%-os beépíthetőséggel rendelkezik, így akár egy tágas, modern családi otthon is megvalósítható rajta.
A legnagyobb előnye, hogy már rendelkezik érvényes építési engedéllyel egy bruttó 153 m²-es, egyszintes, könnyűszerkezetes családi ház felépítésére, és a sávalap már elkészült, így az építkezés akár azonnal folytatható.
A telek összközműves, a környezet rendezett, családi házas övezet.
Ideális választás mindazoknak, akik gyorsan, meglévő engedélyekkel és előkészített alapokkal szeretnének építkezni rendezett, nyugodt környezetben!
További kérdéseivel, illetve megtekintési szándékával kérem keresse irodánkat.
A hirdetésben szereplő adatok tájékoztató jellegűek.
Az ingatlan hitelre is megvásárolható.
Bankfüggetlen tanácsadóink, az ország összes pénzintézete közül gyorsan és gördülékenyen találja meg az Önnek legmegfelelőbb konstrukciót, egyedi kedvezményekkel. a hitel közvetítés díjmentes. Hitel.hu - Hasonlítsa össze a bankok lakáshitel ajánlatait
Tetszett ez az eladó Sződi telek? Hívd fel a hirdetőt most, és tudj meg mindent erről az eladó telekről! Ha gondolod nézelődj tovább az eladó telek Sződ oldal hirdetései között.
Az eladó telkek menüpontban további hirdetések között is böngészhetsz. Ha van kedved, akkor böngészhetsz a Vede Casa Kft. összes hirdetése között, vagy akár a/az MPD Hungary Kft. összes hirdetése között is.

