Eladó üzlethelyiség - Hajdúböszörmény
- INGYENES HIRDETÉS FELADÁS
Ingatlan adatai
- Eladó vagy kiadó:Eladó
- Település:Hajdúböszörmény
- Kategória:Üzlethelyiség
- Alkategória:Egyéb
- Alapterület:1235 m2
- Csere is:Nem
- Hirdető:Cég
- Élő videón megtekinthető:Nem
- Állapot:nincs megadva
- Hány szintes az ingatlan:nincs megadva
- Hányadik emeleti:Földszint
- Bútorozottság:nincs megadva
- Fényviszony:nincs megadva
- Tájolás:nincs megadva
- Kilátás:nincs megadva
- Internet:nincs megadva
- Klíma:nincs megadva
- Akadálymentesített:nincs megadva
- Energiatanúsítvány:nincs megadva
- Kapcsolatfelvétel

Mester Tibor
+36-(20)-806-7007
Mondd meg a hirdetőnek, hogy a megveszLAK-on találtad a hirdetést.
Referencia szám: HK
Hitel ajánlatok
Ingatlan hirdetés leírása
Eladó Ipari terület, Hajdúböszörmény
Több épületből álló, sokoldalúan hasznosítható ingatlankomplexum eladó Hajdúböszörményben!
Központi elhelyezkedésű, 3 különböző utca felől megközelíthető, autópálya felhajtótól mindössze 3 km-re.
A telek összesen 3018 m2 egybefüggő, összenyitott, térkövezett és betonozott udvar, több mint 300 m2 fedett kültéri területtel, öt helyrajzi számon nyilvántartva, akár logisztikai célokra is. Az épületek hasznos alapterülete összesen 1235 m2.
- Többfunkciós kihasználhatóság
- azonnal használható épületek
- közművesítés, infrastruktúra biztosított
- központi, de jól megközelíthető helyen
Övezeti besorolás: Lk-31-5353, kisvárosias lakózóna:
Akár lakó, kereskedelmi, szolgáltató, logisztikai, oktatási, egészségügyi, sport, vendéglátó, szálláshely szolgáltató épület, ideértve munkásszálló vagy kézműipari funkciókra is alkalmas, 7, 5 m max. Építménymagasság, 40%-os beépíthetőség, zártsorú beépítés lehetséges.
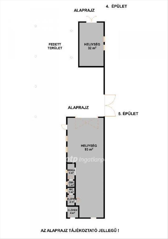
Fő épületek:
1. Épület - több mint 360 m2 alapterület, 3 szintes főépület:
Stabil és erős beton alapon, tégla falazatú, vasbeton födémes, hatszög alaprajzú toronnyal. Részlegesen felújított gépészet (víz, villany 3×32a) és belső, gázkazános fűtés, jó szerkezeti állapot.
2. Épület - Üzemépület, 515 m2 alapterület:
Több helyiségből áll, beton alap, masszív tégla falazat, részlegesen felújított közművek (villany 3×64a). Gázkazános fűtés, jól alakítható belső tér és jó szerkezeti állapot.
3. Épület - Két szintes, 110 m2 alapterület:
Felújított épület korszerű gépészettel, Ariston kondenzációs kazán, 3 Midea klímák, új víz, csatorna, villamos hálózat (3×16a), új burkolatokkal. Alkalmas irodának, lakásnak, szállás vagy vendéglátó célra, jó szerkezeti állapot.
4. Épület - 32 m2 alapterület:
Különálló épület, beton alapon tégla falazattal, jó szerkezeti állapot.
5. Épület. - Műhely, több mint 100 m2 alapterület:
Beton alapon, tégla falazattal, jó szerkezeti állapotban, fa tetőszerkezet, zsindelyfedéssel, 15 cm-es külső szigeteléssel, gázfűtéssel, zuhanyzóval, külön WC-vel, új víz, csatorna, villamos hálózat (3×32a), új nyílászárók, ipari tevékenységre is ideális.
6. Épület - Felújított irodaépület, 94 m2 + 22 m2 fedett terasz:
Beton alapon, tégla falazattal, jó szerkezeti állapotban, 15 cm-es külső szigeteléssel, négy különálló irodahelyiség, konyha, wc, előtér, közlekedő. Igényes burkolatok, új nyílászárók, új víz, csatorna, villamos hálózat, korszerű gázfűtés és klímák.
A hirdetésben tervezett látványképek is meg vannak jelenítve, hogy segítsenek a végleges megjelenés pontosabb elképzelésében!
Az ingatlan komplexitása és adottságai alapján elkészült egy tájékoztató jellegű tervezet is, amely akár közel 100 fő befogadását biztosító funkcionális átalakítást is lehetővé tehet.
További információért hívjon bizalommal akár hétvégén is. Megtekintésre telefonos egyeztetés alapján van lehetőség. Kedvezményes kamatozású lakásvásárlási, felújítási hitelek, CSOK és Babaváró támogatás az OTP hátterével irodánkban. Hitel.hu - Hasonlítsa össze a bankok lakáshitel ajánlatait
Tetszett ez az eladó Hajdúböszörményi üzlethelyiség? Hívd fel a hirdetőt most, és tudj meg mindent erről az eladó üzlethelyiségről! Ha gondolod nézelődj tovább az eladó üzlethelyiség Hajdúböszörmény oldal hirdetései között.
Az eladó üzlethelyiségek menüpontban további hirdetések között is böngészhetsz. Ha van kedved, akkor böngészhetsz a Mester Tibor összes hirdetése között, vagy akár a/az OTPip Debrecen Kürtös utca 8 - OTP Ingatlanpont Iroda összes hirdetése között is.

