Eladó üzlethelyiség Jászdózsa
| Kedvencbe | Megosztás | Árfigyelő |
| Kedvezményes lakáshitel ajánlatok | ||
| 28 900 000 HUF | ||
Ingatlan adatai
- Eladó vagy kiadó:Eladó
- Település:Jászdózsa
- Kategória:Üzlethelyiség
- Alkategória:Egyéb
- Alapterület:177 m2
- Csere is:Nem
- Hirdető:Cég
- Élő videón megtekinthető:Nem
- Állapot:nincs megadva
- Hány szintes az ingatlan:nincs megadva
- Hányadik emeleti:nincs megadva
- Bútorozottság:nincs megadva
- Fényviszony:nincs megadva
- Tájolás:DK
- Kilátás:nincs megadva
- Internet:nincs megadva
- Akadálymentesített:Nem akadálymentesített
- Energiatanúsítvány:nincs megadva
- Üzenetküldés
- Hívás

Bodonyiné Erzsike
Mondd meg a hirdetőnek, hogy a megveszLAK-on találtad a hirdetést.

Hitel ajánlat
Ingatlan hirdetés leírása
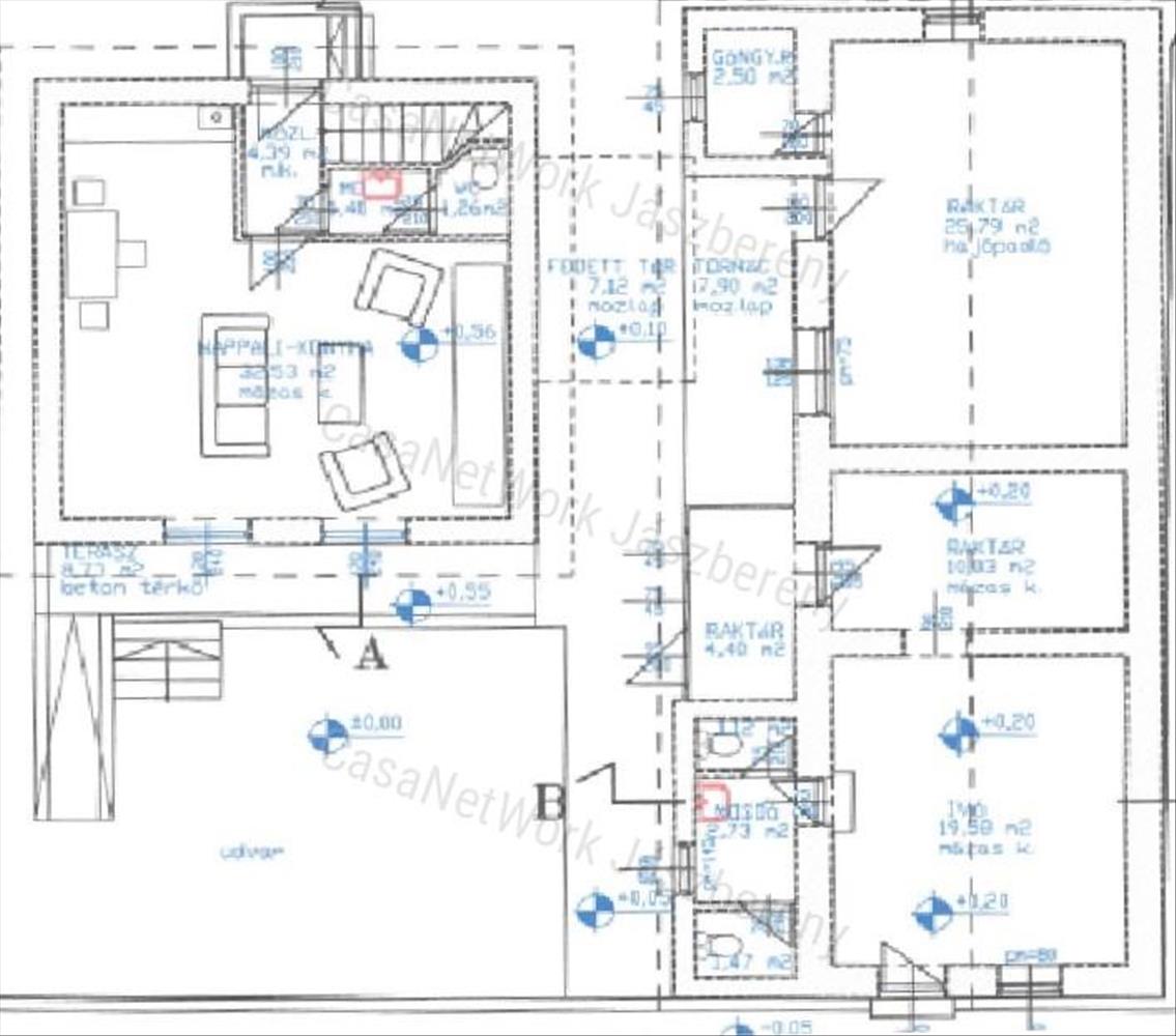
Jászdózsa központjában, 425 nm-es telken,177 nm-es üzlethelyis...
A jászberényi CasaNetWork ingatlaniroda megvételre kínál Jászdózsa közvetlen központjában egy 177 m2-es, több részből álló üzlethelyiséget!- Jászdózsa közvetlen központjában található az ingatlan,
- az üzlet jelenleg nincs tevékenykedő állapotban,
- 1968-ban, vegyes téglából épült az ingatlan, 1992-ben felújítás történt, 2005-ben pedig "esztétikai renoválás" volt,
- az ingatlan állapota jónak mondható, statikailag teljesen rendben,
- műanyag és fa nyílászárók,
- 177 m2 alapterülettel rendelkezik, melyben 3 részes eladótér, iroda, több részből álló raktár és mosdóhelyiségek vannak,
- az üzlet melegét cirkó kazán biztosítja,
- ingyenes parkolás az üzlet előtt lehetséges,
- horgásztó 100 méterre található,
- 50-500 méteren belül megtalálható: piactér, templom, önkormányzat, iskola, óvoda, orvosi rendelő, gyógyszertár, posta, üzletek, boltok, vasútállomás
- a jelenleg üresen álló ingatlan bármilyen kereskedelmi/vendéglátó vagy egyéb üzleti tevékenység működtetésére alkalmas, de akár lakóháznak is tökéletes lehet
Befektetők, vállalkozók figyelmébe is ajánlom az eladó ingatlant, mely igen sok lehetőséget rejt magában! ! !
Amennyiben a fenti 182100402-es azonosító számú eladó jászdózsai üzlethelyiség, vagy bármely kínálatunkban található ingatlan felkeltette érdeklődését, kérem hívjon bizalommal!
/A hirdetésben szereplő információk a megbízótól kapott adatok alapján készültek. /
Irodánk teljes körű szolgáltatással áll ügyfelei rendelkezésére: hitelügyintézés, ügyvédi szolgáltatás, ingatlan értékbecslés, energetikai tanúsítvány készítése.
CasaNetWork - Ingatlanban otthon vagyunk! Hitel.hu - Hasonlítsa össze a bankok lakáshitel ajánlatait

