Kiadó raktár Székesfehérvár
| Kedvencbe | Megosztás | Árfigyelő |
| Kedvezményes lakáshitel ajánlatok | ||
| 1 200 HUF/Hó | ||
Ingatlan adatai
- Eladó vagy kiadó:Kiadó
- Település:Székesfehérvár
- Kategória:Ipari ingatlan
- Alkategória:Raktár
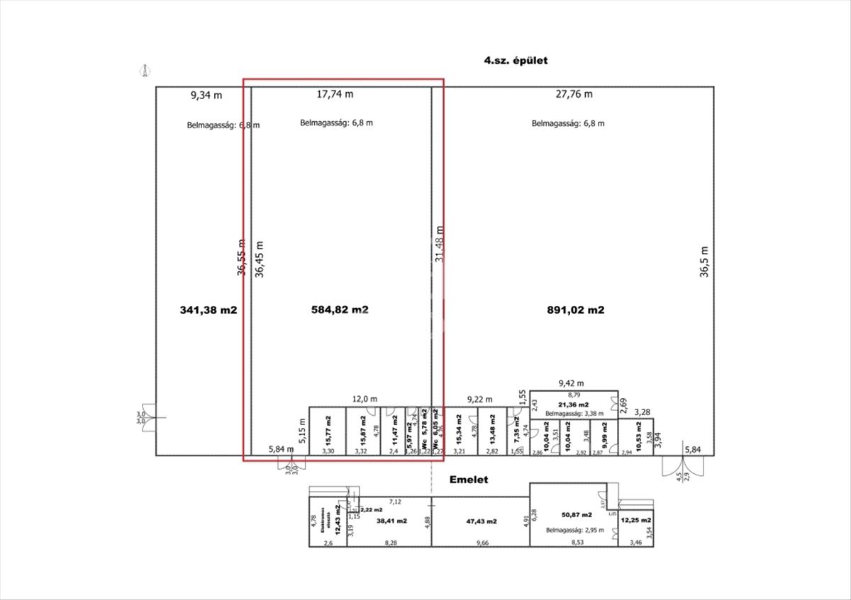
- Alapterület:585 m2
- Telekterület:nincs megadva
- Csere is:Nem
- Hirdető:Cég
- Élő videón megtekinthető:Nem
- Építés éve:1981
- Hány szintes az ingatlan:nincs megadva
- Hányadik emeleti:nincs megadva
- Parkolási lehetőség:Beállóban
- Energiatanúsítvány:nincs megadva
- Villany:nincs megadva
- Víz:nincs megadva
- Gáz:nincs megadva
- Csatorna:nincs megadva
- Üzenetküldés
- Hívás


Hitel ajánlat
Ingatlan hirdetés leírása
Bip-003976. Székesfehérvár déli részén, a Váralján zárt teleph...
Bip-003976. Székesfehérvár déli részén, a Váralján zárt telephelyen belül 585m2 alapterületű fűtetlen 6, 8m belmagasságú raktárcsarnok kiadó!A kapu méretei: 3m x 3m
A helyiséghez tartozik 55m2 iroda, szociális rész is.
Az ingatlan felújítása, átalakítása egyedi bérlői igények figyelembevételével további egyeztetések tárgyát képezik.
Bérleti díj: 1200 Ft +ÁFA/m2/hó +rezsi +2 hó kaució
Ha felkeltette érdeklődését, hívja irodánkat bizalommal, éljen ingyenes, személyre szabott hitelügyintézés szolgáltatásunkkal. Segítünk továbbá adásvételhez szükséges ügyvédi közreműködésben, energetikai tanúsítvány, valamint értékbecslés elkészítésében.
For English information please send a message. Hitel.hu - Hasonlítsa össze a bankok lakáshitel ajánlatait
Tetszett ez a kiadó Székesfehérvári ipari ingatlan? Hívd fel a hirdetőt most, és tudj meg mindent erről a kiadó ipari ingatlanról! Ha gondolod nézelődj tovább a kiadó ipari ingatlan Székesfehérvár oldal hirdetései között.
A kiadó ipari ingatlanok menüpontban további hirdetések között is böngészhetsz. Ha van kedved, akkor böngészhetsz a Märcz Roland összes hirdetése között, vagy akár a/az GDN Ingatlanhálózat összes hirdetése között is.

