Kiadó raktár - Üllő
- INGYENES HIRDETÉS FELADÁS
Ingatlan adatai
- Eladó vagy kiadó:Kiadó
- Település:Üllő
- Kategória:Ipari ingatlan
- Alkategória:Raktár
- Alapterület:150 m2
- Telekterület:nincs megadva
- Csere is:Nem
- Hirdető:Cég
- Élő videón megtekinthető:Nem
- Építés éve:2025
- Hány szintes az ingatlan:nincs megadva
- Hányadik emeleti:nincs megadva
- Parkolási lehetőség:Udvaron
- Energiatanúsítvány:nincs megadva
- Villany:nincs megadva
- Víz:nincs megadva
- Gáz:nincs megadva
- Csatorna:nincs megadva
- Kapcsolatfelvétel

Dévai Éva
+36-(30)-350-6820
Mondd meg a hirdetőnek, hogy a megveszLAK-on találtad a hirdetést.
Referencia szám: IP040163
Hitel ajánlatok
Ingatlan hirdetés leírása
Kiadó ipari, Üllő, Kiadó raktár - Üllő
Üllő belterületén új építésű iroda és raktárcsarnok bérbeadó!
Ez az ingatlan tökéletes választás lehet kereskedelmi, logisztikai, szolgáltató vagy gyártó vállalkozások számára, akik modern, alacsony fenntartású telephelyet keresnek.
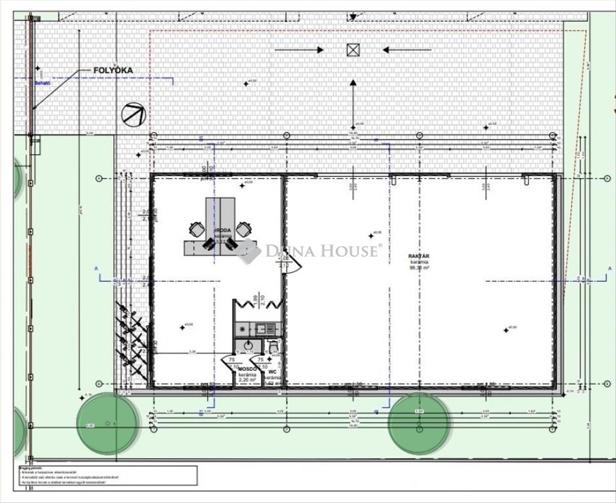
Üllő kiváló közlekedési adottságokkal rendelkező részén, 600 m²-es telken bérbeadó egy 150 m²-es modern raktárcsarnok, mely egy 50 m²-es irodaépületet is magába foglal.
Várható átadás: 2026. Q2.
Közműellátottság: víz, villany, csatorna!
Kiemelkedő lokáció és műszaki tartalom, !
Iroda + csarnok kombináció = sokféle tevékenységre teszi alkalmassá. !
Üllő elhelyezkedése (Budapest közelsége, autópálya, logisztikai csomópont) kiemelten keresetté teszi a kis- és középvállalkozások körében.
Az ingatlan jellemzői:
Korszerű, öntartó ipe 200 acélszerkezet,
10 cm-es pir tűzálló szendvicspanel falazat,
Fűtött iroda és csarnok, 5 kW-os Fujitsu inverteres klímával,
Napelem kiállás előkészítve,
Modern kamerarendszer és riasztó telepítés,
2 db szekcionált ipari kapu (3×2 m),
Belmagasság: 5, 5 méter, ideális raktározáshoz vagy gyártási tevékenységhez.
Irodai rész:
50 m²-es irodaépület nagy ablakokkal,
Teakonyha és mosdó kialakítás,
Opcionálisan további 30 m² tárgyaló vagy iroda kialakítható az emeleti szinten,
Külső környezet:
220 m² térkövezett burkolat,
230 m² rendezett zöldterület.
Az ár nettó ár!
Hosszú távra szeretnék bérbe adni, minimum 12 hónapra.
24 Hónapon túli bérlés esetén a havi bérleti díj jelentősen csökken, megállapodás kérdése.
Szerződéskor: 6 havi bérleti díj + 3 havi kaució megfizetése szükséges.
Érdeklődés vagy megtekintési szándék esetén várom hívását, nézzük meg együtt!
Érd: Dévai Éva, tel: +36303506820, e-mail: devai. Eva@dh. Hu
Referencia szám: ip040163-ml Hitel.hu - Hasonlítsa össze a bankok lakáshitel ajánlatait
Tetszett ez a kiadó Üllői ipari ingatlan? Hívd fel a hirdetőt most, és tudj meg mindent erről a kiadó ipari ingatlanról! Ha gondolod nézelődj tovább a kiadó ipari ingatlan Üllő oldal hirdetései között.
A kiadó ipari ingatlanok menüpontban további hirdetések között is böngészhetsz. Ha van kedved, akkor böngészhetsz a Dévai Éva összes hirdetése között, vagy akár a/az Duna House Villa Gyömrő összes hirdetése között is.

