- >>
- albérletek
- >>
- kiadó lakás
- >>
- kiadó lakás Budapest VI. kerület
- >>
Kiadó újszerű állapotú lakás - Budapest VI. kerület
| | |||
| Kedvencnek jelölöm | Elküldöm emailben | Megosztás | Szavazás |
| Kedvezményes lakáshitel ajánlatok | |||
| 655 180 HUF/Hó | |||
Ingatlan adatai
- Eladó vagy kiadó:Kiadó
- Település:Budapest VI. kerület
- Kategória:Lakás
- Alkategória:Tégla
- Alapterület:103 m2
- Csere is:Nem
- Hirdető:Cég
- Élő videón megtekinthető:Nem
- Szobaszám:4
- Állapot:Újszerű, kitűnő
- Hány szintes az ingatlan:nincs megadva
- Komfortosság:nincs megadva
- Hányadik emeleti:nincs megadva
- Erkély:Van
- Parkolási lehetőség:nincs megadva
- Fűtés:Gáz (cirko)
- Bútorozottság:nincs megadva
- Fényviszony:nincs megadva
- Tájolás:ÉK
- Kilátás:Utcai
- Internet:nincs megadva
- Akadálymentesített:nincs megadva
- Energiatanúsítvány:nincs megadva
- Villany:Van
- Víz:Van
- Gáz:Van
- Csatorna:Van
- Üzenetküldés
- Hívás


Hitel ajánlat
Ingatlan hirdetés leírása
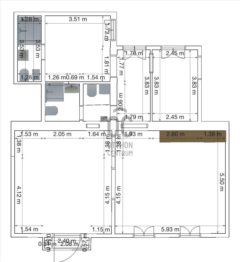
Kiadó a Nyugati tér közelében a Podmaniczky u. elején egy 103 ...
Kiadó a Nyugati tér közelében a Podmaniczky u. Elején egy 103 nm-es frissen felújított polgári lakás.Az ingatlan a társasház 2. emeletén helyezkedik el.
3 Hálószobás, 2 fürdőszobás, nagy amerikai konyhás nappalis.
Két hálószoba a csendes belső udvarra néz.
Az egyik hálószobában galéria is van, ezzel növelve a teret, valamint saját fürdőszobával is rendelkezik.
A harmadik hálószoba utcai nézetű, erkélyes.
Az előszobából nyílik még egy fürdőszoba zuhannyal.
Fűtése gázcirkó.
A lakás bútorozva, valamint a beépített konyhagépekkel és mosógéppel kerül kiadásra.
Tömegközlekedés kiváló. a 4-6-os villamos 5 perc sétára található.
Westend, Spar, Lidl, szintén a pár perc sétával elérhető. Hitel.hu - Hasonlítsa össze a bankok lakáshitel ajánlatait

