+ 10 fotó

Kiadó üzlethelyiség Szentendre
| |  |
| Kedvencbe | Megosztás | Árfigyelő |
- Eladó vagy kiadó:Kiadó
- Település:Szentendre
- Kategória:Üzlethelyiség
- Alkategória:Utcafronton
- Alapterület:92 m2
- Csere is:Nem
- Hirdető:Cég
- Élő videón megtekinthető:Nem
- Állapot:nincs megadva
- Hány szintes az ingatlan:nincs megadva
- Hányadik emeleti:Földszint
- Bútorozottság:nincs megadva
- Fényviszony:nincs megadva
- Tájolás:nincs megadva
- Kilátás:nincs megadva
- Internet:nincs megadva
- Akadálymentesített:nincs megadva
- Energiatanúsítvány:nincs megadva

Gyökeri Ágnes
Mondd meg a hirdetőnek, hogy a megveszLAK-on találtad a hirdetést.
Referencia szám: UZ040581

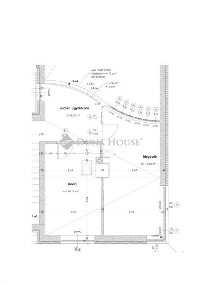
KIADÓ IMPOZÁNS ÜZLETHELYISÉG SZENTENDRÉN
Elegáns iroda/üzlethelyiség/bemutatóterem kiadóSzentendre belvárosában, exkluzívan kialakított, forgalmas út mentén hosszú távra kiadó egy nettó 92 nm-es üzlethelyiség. Az elhelyezkedésből, minőségből fakadóan alkalmas lehet szinte bármilyen tevékenységre: irodának, bemutatóteremnek, üzletnek, jógastúdiónak, kávézónak, stb. Az üzlet földszinti, utcafronti, hirdetési lehetőséggel, 4 vendégparkolóval, ingyenes utcai parkolással. Jelenleg egy tér, kivéve a vizesblokkot, de megegyezéssel alakítható. Efelett található még 41 nm tárgyaló, mely szintén bérelhető a földszintivel együtt. Bérleti díj a földszinti üzlethelyiségre 625. 000 Ft+áfa+rezsi, fenti 41 nm 320. 000 Ft+áfa+rezsi
Hitel.hu - Hasonlítsa össze a bankok lakáshitel ajánlatait Hasonló ingatlan hirdetések