Eladó felújított ház - Gárdony
- INGYENES HIRDETÉS FELADÁS
Ingatlan adatai
- Eladó vagy kiadó:Eladó
- Település:Gárdony
- Kategória:Ház
- Alkategória:Családi ház
- Alapterület:105 m2
- Telekterület:873 m2
- Csere is:Nem
- Hirdető:Cég
- Élő videón megtekinthető:Nem
- Építés éve:1960
- Szobaszám:2
- Állapot:Felújított
- Hány szintes az ingatlan:Földszintes
- Tetőtér:nincs megadva
- Komfortosság:nincs megadva
- Pince:Van
- Parkolási lehetőség:Beállóban
- Fűtés:Elektromos
- Bútorozottság:nincs megadva
- Fényviszony:nincs megadva
- Tájolás:nincs megadva
- Kilátás:nincs megadva
- Internet:nincs megadva
- Klíma:nincs megadva
- Akadálymentesített:nincs megadva
- Energiatanúsítvány:nincs megadva
- Villany:Van
- Víz:Van
- Gáz:Telken belül
- Csatorna:Van
- Kapcsolatfelvétel

Szegedi Éva
+36-(20)-927-8422
Mondd meg a hirdetőnek, hogy a megveszLAK-on találtad a hirdetést.
Hitel ajánlatok
Ingatlan hirdetés leírása
4890. Gárdonyban, 10 perc gyalogos távolságra a központtól és ...
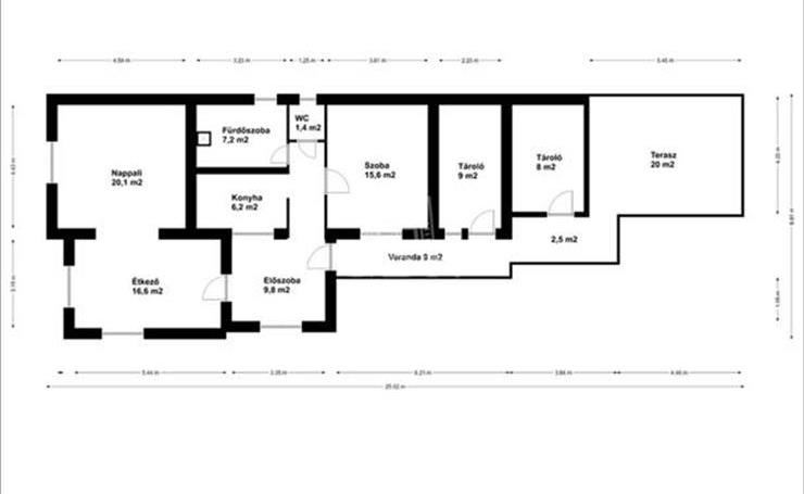
4890. Gárdonyban, 10 perc gyalogos távolságra a központtól és vasútállomástól, 1960-as években épült, 90-es évek elején bővített, 2016-ban és 2020-ban felújított, nettó 81 m2 nettó alapterületű, földszintes, szigetelt családi ház, verandával, terasszal, tárolóval, pincével, összközműves 873 m2-es telken eladó.
A kiváló állapotú eredeti vertfalú épület homlokzatára és a födémre kőzetgyapot hőszigetelés, a bővített tégla szerkezetű épületrész homlokzatára 8 cm-es grafitos hőszigetelés került. Az épület fűtését elektromos fűtőpanelek biztosítják alacsony fenntartási költségek mellett.
A ház 37 m2-es nappali-étkező, előszoba-étkező, konyha, fürdőszoba, wc, közlekedő helyiségekből áll. További hálószoba leválasztással kialakítható, illetve a verandáról nyíló jelenleg tároló funkciót ellátó helyiség is alkalmas lehet szoba kialakítására. Az épülethez csatlakozik egy tároló és egy 20 m2-es terasz, illetve a ház mellett található egy külön épület, fedett kiülő és pince. a kert gondozott, öntözése ásott kútból lehetséges. Ár: 79 MFt FIX 3% lakáshitelre megvehető
Tetszett ez az eladó Gárdonyi felújított 2 szobás családi ház? Hívd fel a hirdetőt most, és tudj meg mindent erről az eladó családi házról! Ha gondolod nézelődj tovább az eladó ház Gárdony oldal hirdetései között. Ennek az eladó háznak az ára 79000000 Ft és mivel az alapterülete 105 négyzetméter, ezért az átlagos négyzetméterára 752381 HUF/m2.
Az eladó házak menüpontban további hirdetések között is böngészhetsz. Ha van kedved, akkor böngészhetsz a Szegedi Éva összes hirdetése között, vagy akár a/az GDN Ingatlanhálózat összes hirdetése között is.

