Eladó felújítandó ház Miskolc
| Kedvencbe | Megosztás | Árfigyelő |
| FIX 3% lakáshitelre megvehető | ||
| 44 900 000 HUF | ||
Ingatlan adatai
- Eladó vagy kiadó:Eladó
- Település:Miskolc
- Kategória:Ház
- Alkategória:Családi ház
- Alapterület:125 m2
- Telekterület:414 m2
- Csere is:Nem
- Hirdető:Cég
- Élő videón megtekinthető:Nem
- Építés éve:2010
- Szobaszám:5
- Állapot:Felújítandó
- Hány szintes az ingatlan:2 szintes
- Tetőtér:nincs megadva
- Komfortosság:nincs megadva
- Parkolási lehetőség:Udvaron
- Fűtés:Egyéb
- Bútorozottság:nincs megadva
- Fényviszony:Napfényes
- Tájolás:nincs megadva
- Kilátás:nincs megadva
- Internet:nincs megadva
- Akadálymentesített:nincs megadva
- Energiatanúsítvány:nincs megadva
- Villany:Telken belül
- Víz:Telken belül
- Gáz:Telken belül
- Csatorna:nincs megadva
- Üzenetküldés
- Hívás

Referencia szám: M299191

Hitel ajánlat
Ingatlan hirdetés leírása
Miskolc Diósgyőr 125m2, 5 szobás családi ház Eladó
Eladó családi ház miskolcon – DIÓSGYŐRÖN!Miskolc egyik legkeresettebb részén, diósgyőr családi házas övezetében kínálunk eladásra egy tégla építésű családi házat, amely 125 NM-en két szinten kínál kiváló lehetőséget azoknak, akik egyedi ingatlant keresnek. a diósgyőri vár közelében fekvő ház eladó, amely egy 414 nm -es telek részeként várja új tulajdonosát.
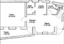
Az ingatlan 2010-ben épült, és az építészeti terveket Miskolc főépítésze, Rostás László készítette, különleges erdélyi stílusú jegyekkel és hőszigetelt falazattal. a felső szint 80%-os készültségi fokon áll, így a leendő tulajdonos saját igényeire formálhatja az otthonát. Az alsó szint felújítandó, ahol tágas nappali, nagyszoba, konyha és fürdőszoba található, valamint egy befejezésre váró hátsó nappali is kialakítható. a fűtés jelenleg kályhával megoldott, de a padlófűtés és a központi fűtés előkészítése már megtörtént.
A ház mögött egy szigetelt, könnyűszerkezetes melléképület is helyet kapott. a telken belül minden közmű elérhető, a gázcsönk is bekötésre vár. Ha egy stílusos otthont keres csendes környezetben, amelyet saját ízlésére alakíthat, akkor ne hagyja ki ezt a lehetőséget!
Hívjon bizalommal akár hétvégén is és tekintse meg személyesen! FIX 3% lakáshitelre megvehető
Tetszett ez az eladó Miskolci felújítandó 5 szobás családi ház? Hívd fel a hirdetőt most, és tudj meg mindent erről az eladó családi házról! Ha gondolod nézelődj tovább az eladó ház Miskolc oldal hirdetései között. Ennek az eladó háznak az ára 44900000 Ft és mivel az alapterülete 125 négyzetméter, ezért az átlagos négyzetméterára 359200 HUF/m2.
Az eladó házak menüpontban további hirdetések között is böngészhetsz. Ha van kedved, akkor böngészhetsz a Vályi Attila összes hirdetése között, vagy akár a/az OTPip Miskolc Corvin utca 1-3 - OTP Ingatlanpont Iroda összes hirdetése között is.

