Eladó felújított ház - Budapest XXIII. kerület
- INGYENES HIRDETÉS FELADÁS
Ingatlan adatai
- Eladó vagy kiadó:Eladó
- Település:Budapest XXIII. kerület
- Kategória:Ház
- Alkategória:Sorház
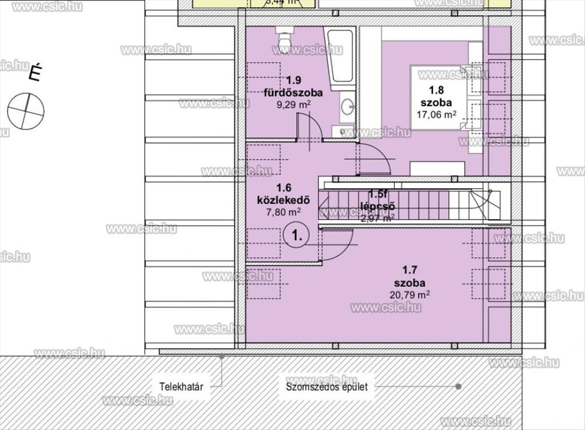
- Alapterület:117 m2
- Telekterület:200 m2
- Csere is:Nem
- Hirdető:Cég
- Élő videón megtekinthető:Nem
- Szobaszám:3
- Állapot:Felújított
- Hány szintes az ingatlan:nincs megadva
- Tetőtér:nincs megadva
- Komfortosság:nincs megadva
- Pince:nincs megadva
- Parkolási lehetőség:Garázsban
- Fűtés:Gáz (cirko)
- Bútorozottság:nincs megadva
- Fényviszony:nincs megadva
- Tájolás:nincs megadva
- Kilátás:nincs megadva
- Internet:nincs megadva
- Klíma:nincs megadva
- Akadálymentesített:nincs megadva
- Energiatanúsítvány:nincs megadva
- Villany:Van
- Víz:Van
- Gáz:Van
- Csatorna:Van
- Kapcsolatfelvétel

Bradács Edina
+36-(20)-336-5257
Mondd meg a hirdetőnek, hogy a megveszLAK-on találtad a hirdetést.
Hitel ajánlatok
Ingatlan hirdetés leírása
ELADÓ SORHÁZ LAKÁS SOROKSÁR FELÚJÍTOTT MODERN
Eladó sorház Soroksáron - Teljeskörűen felújított, belső kétszintes otthon!
Eladásra kínálom ezt a gyönyörű, teljeskörűen felújított belső kétszintes ingatlant Soroksár központi helyén, amely ideális választás családok számára, akik a modern a kényelmet keresik!
A/1-es lakás:117 nm 3 szoba
Jellemzők:
-Magas műszaki tartalom: Az ingatlan minden részlete a legmagasabb minőségű anyagokkal és technológiával készült, így garantálva a hosszú távú megbízhatóságot és energiatakarékosságot. a felújítás során kicserélésre került a teljes elektromos hálózat, víz-, és gázcsövek, külső belső nyílászárók, burkolatok. a lakások elválasztása hang gátló falakkal történtek. Fűtéséről cirkó gázkazán gondoskodik. Hőleadása a földszinten padlón, az emeleten radiátoron keresztül történik. Nyílászárók műanyag kivitelűek, elektromos, alumínium redőnyökkel, szúnyoghálóval. a lakás duplakomfortos! Az udvarba a bejutás elektromosan nyíló kapun keresztül történik.
- Tágas belső tér: a belső kétszintes elrendezés lehetővé teszi a kényelmes életteret, ahol minden családtag megtalálja a saját helyét. a világos, nyitott nappali és a modern konyha ideális a közös családi pillanatokhoz.
- Kertkapcsolat: Az ingatlanhoz egy picike kert, amely tökéletes helyszín a pihenésre, grillezésre. Élvezze a természet közelségét a saját otthonában!
Tároló: Az ingatlanhoz 17 nm tároló tartozik, mely méreteiből adódóan garázsként funkcionálhat, amely védelmet nyújt autójának az időjárás viszontagságaitól.
- Kiváló elhelyezkedés: Soroksár csendes, családbarát környezetében található, közel a szükséges szolgáltatásokhoz, iskolákhoz, boltokhoz és közlekedési lehetőségekhez.
Ez az ingatlan tökéletes választás mindazok számára, akik egy modern, kényelmes és jól megközelíthető otthont keresnek. Ne hagyja ki ezt a remek lehetőséget!
Az ügyfeleinket banksemleges hitelügyintéző segíti megtalálni a legmegfelelőbb konstrukciót.
Hívjon most, és nézze meg álmai otthonát! Egyéb kérdés esetén várom megtisztelő hívását akár hétvégén is! FIX 3% lakáshitelre megvehető
Tetszett ez az eladó Budapest XXIII. kerületi felújított 3 szobás sorház? Hívd fel a hirdetőt most, és tudj meg mindent erről az eladó sorházról! Ha gondolod nézelődj tovább az eladó ház Budapest XXIII. kerület oldal hirdetései között. Ennek az eladó háznak az ára 129900000 Ft és mivel az alapterülete 117 négyzetméter, ezért az átlagos négyzetméterára 1110256 HUF/m2.
Az eladó házak menüpontban további hirdetések között is böngészhetsz. Ha van kedved, akkor böngészhetsz a Bradács Edina összes hirdetése között, vagy akár a/az Családi Ingatlan összes hirdetése között is.

