Eladó újszerű állapotú lakás - Budapest IX. kerület
- INGYENES HIRDETÉS FELADÁS
Ingatlan adatai
- Eladó vagy kiadó:Eladó
- Település:Budapest IX. kerület
- Kategória:Lakás
- Alkategória:Tégla
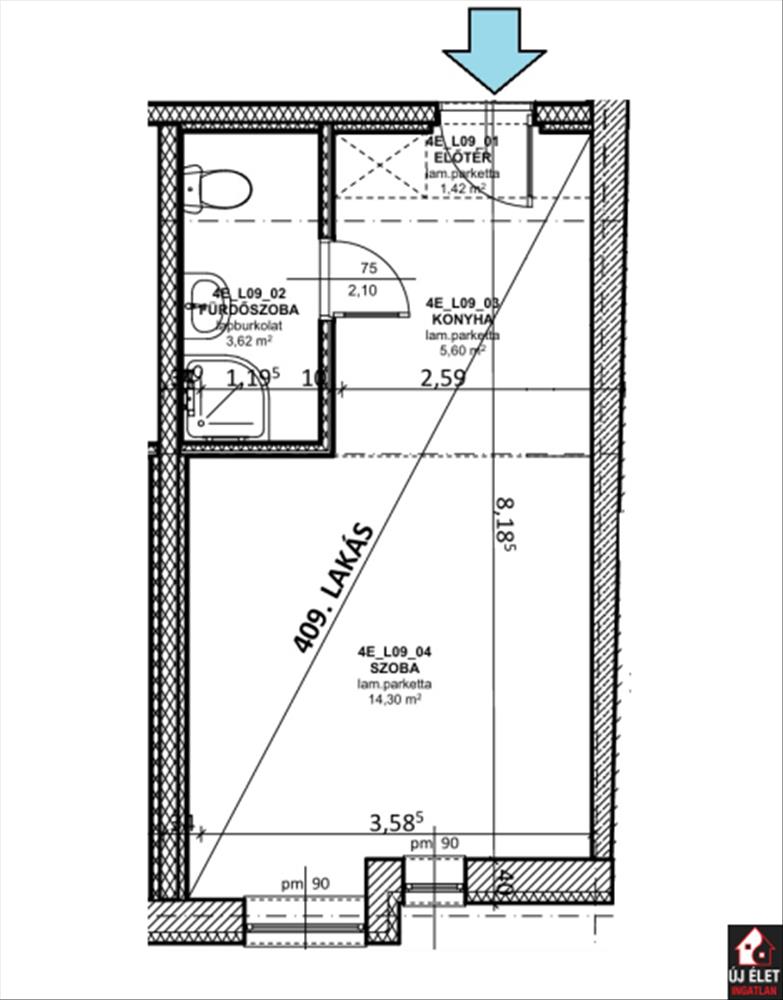
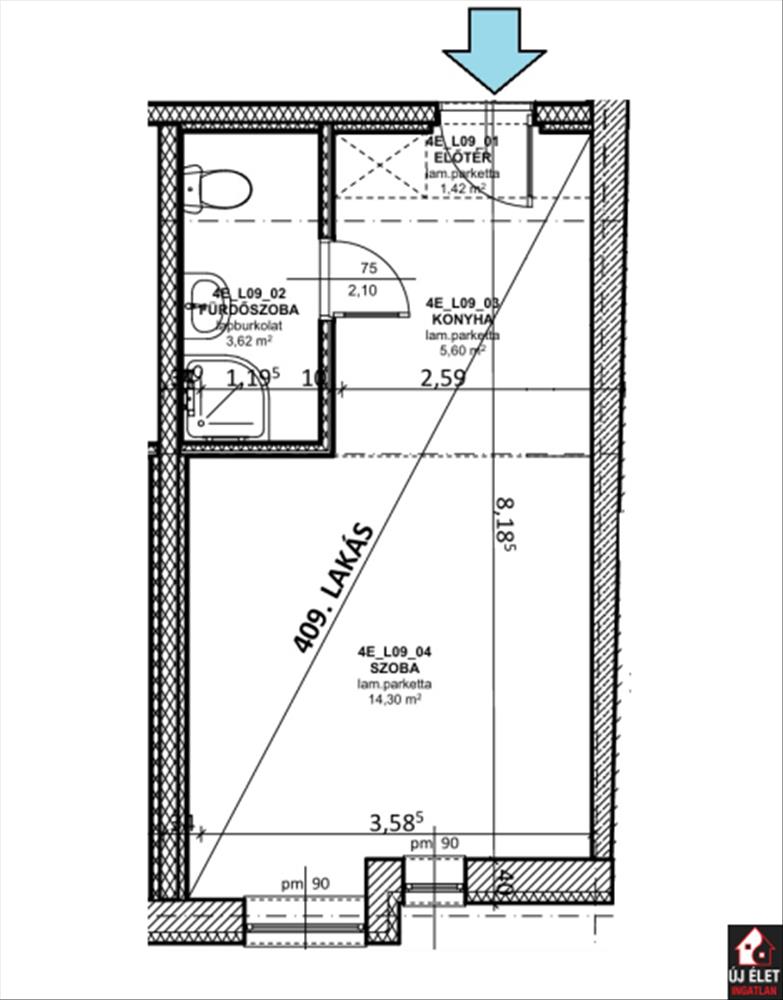
- Alapterület:25 m2
- Csere is:Nem
- Hirdető:Cég
- Élő videón megtekinthető:Nem
- Szobaszám:1
- Állapot:Újszerű, kitűnő
- Hány szintes az ingatlan:5 szintes
- Komfortosság:Összkomfortos
- Hányadik emeleti:5
- Erkély:nincs megadva
- Lift:Van
- Parkolási lehetőség:Teremgarázsban (fizetős)
- Fűtés:Házközponti egyedi mérővel
- Bútorozottság:nincs megadva
- Fényviszony:Napfényes
- Tájolás:DK
- Kilátás:Panorámás
- Internet:nincs megadva
- Klíma:nincs megadva
- Akadálymentesített:Nem akadálymentesített
- Energiatanúsítvány:A
- Villany:nincs megadva
- Víz:nincs megadva
- Gáz:nincs megadva
- Csatorna:nincs megadva
- Kapcsolatfelvétel

Barsi Judit
+36-(30)-691-0408
Mondd meg a hirdetőnek, hogy a megveszLAK-on találtad a hirdetést.
Hitel ajánlatok
Ingatlan hirdetés leírása
A 9. kerületben, a Telepy utcában, a METRÓTÓL SÉTATÁVOLSÁGRA e...
A 9. kerületben, a Telepy utcában, a metrótól sétatávolságra eladó, egy jogilag új ÉPÍTÉSŰnek minősülő, 5 emeletes, szigetelt, liftes épületben, 80 db lakás, mely mindegyike saját helyrajzi számmal és használatbavételi engedéllyel rendelkezik. (Már a bő 80%-át megvették. De most még 10-15 db lakás közül lehet választani! )
Vannak még 1 SZOBÁS,
- 24 m2 + 6 m2 erélyes,
- 27 m2 + 6 m2 erkélyes, és
- tetőtéri (nettó 21-23 m2, bruttó 26-29m2) erkély nélküli lakások.
(A legkedvezőbb árú lakás, nettó 21 m2-es, bruttó 27 m2-es a tetőtérben és az ára 41, 5 M Ft. )
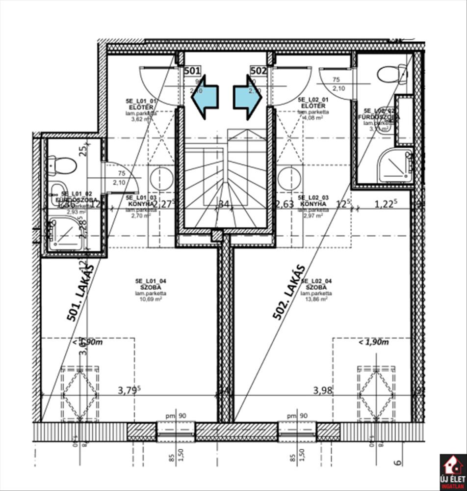
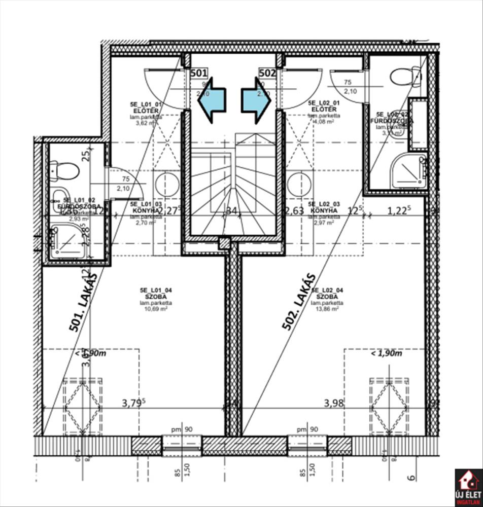
. . . És vannak még 1+1 SZOBÁS
- 36-40 m2-es erkély nélküli, és
- 42-43 m2 + 3 m2 erkéllyel rendelkező lakások.
A lakások m2 árai különbözőek és hitelre is megvásárolhatóak.
Fizikailag 8 éve épült a ház.
. . . Egyébként bérbeadási céllal, és 2025 elejéig bérbe is volt adva minden egyes lakás. Eddig egy helyrajzi számon volt az egész épület, de most kaptak saját helyrajzi számot a lakások és ezért minősülnek jogilag új építésűnek. . . . És így az ár 5% áfát tartalmaz.
Ráadásul az ön ízlése szerint, frissen felújítva vásárolhatóak meg ezek az ingatlanok.
(Azért kerülnek felújításra, mert eddig nem voltak lakásonként mérőórák, és pl. Az új vízórák miatt a fürdőszobákat mindenképp "szét kell verni" és ugyanolyan csempét mát nem lehet venni. . . )
Az összes burkolat, az ajtók és a szaniterek is (zuhanykabin, mosdó, wc csésze) cserélve lesznek arra, amit ön választ, sőt megmondhatja, hová szeretné a mosógép kiállást, és hová szeretne konnektorokat, stb. . .
AZ ár a frissen felújított ingatlanra ÉRTENDŐ.
A műszaki leírás tartalmazza, hogy milyen összegig van benne a felújítás az árban.
Pl. a laminált padló 6. 500 Ft/m2, a fürdőszobai padló és falburkolat 10. 000 Ft/m2 árig, stb.
A felújításhoz 1-2 hónapra szükség van. Azt követőn egyből költözhet.
Van egy nagy méretű belső Udvar is, amit közösen használhatnak a lakók. Így ha ön olyan lakást vesz, aminek nincs erkélye, akkor is ki tud menni a szabad levegőre anélkül, hogy az utcára ki kellene lépnie. Ráadásul a 4. emeleten még egy közös erkély is helyet kapott. Azoknak a dohányzó embereknek, akik erkély nélküli lakást vesznek, ez biztosan nagy segítség. Majdnem olyan mintha saját erkélye lenne.
A lakások nagyon világosak, mivel nem egy szűk kis sötét utcára néznek, hanem tágas térre, a Telepy utca és a Haller utca találkozásánál lévő kis parkosított részre.
A fűtés házközponti, radiátorokon keresztül ad meleget, és a vízmelegítést is a központi kazán végzi.
Légkondicionáló nincs.
Konyhabútor nincs benne az árban.
A közös költség 600 Ft/m2.
A házban a teremgarázsban kocsibeállók és a felső emeleteken kis tárolók is eladók.
MINTALAKÁSKÉNT 2 db felújításra KERÜLT.
Élőben meg tudom mutatni ezeket is és bármelyik lakást, ami még eladó. Ez utóbbiaknál még hozzá kell képzelni a felújítást az ön által választott burkolatokkal.
A földszinten eladó még 2 db utcafronti üvegportálos ingatlan is, ami jogilag tároló, de fizikailag üzlethelyiség/iroda/lakás kialakítású. (Végezhető benne hivatalosan kereskedelmi és szolgáltató tevékenység is. ) Mindkét tároló 62 m2, és a m2 áruk nettó 945. 000 Ft, bruttó 1. 200. 000 Ft. Azaz ezek 27% áfát tartalmaznak. Tehát nettó 58, 6 M Ft, bruttó 74, 4 M Ft az áruk.
A Nagyvárad téri metró 5-8 perc sétára van. Ugyanígy közel vannak az orvosi egyetem, a közszolgálati egyetem a Semmelweis kórház.
Ha érdekli, akkor hívjon akár az esti órákban, vagy akár hétvégén is!
Jelenleg ez legkisebb és a legnagyobb 1 szobás lakás még a házban:
https://ingatlan. Com/34639994
https://ingatlan. Com/34545298
Illetve a legkisebb és a legnagyobb 1+1 szobás lakás:
https://ingatlan. Com/34545305
https://ingatlan. Com/34908229 Hitel.hu - Hasonlítsa össze a bankok lakáshitel ajánlatait

