- >>
- eladó ingatlanok
- >>
- eladó ház
- >>
- eladó ház Budapest II. kerület
- >>
Eladó jó állapotú ház - Budapest II. kerület
| | |||
| Kedvencnek jelölöm | Elküldöm emailben | Megosztás | Szavazás |
| Kedvezményes lakáshitel ajánlatok | |||
| 295 000 000 HUF | |||
Ingatlan adatai
- Eladó vagy kiadó:Eladó
- Település:Budapest II. kerület
- Kategória:Ház
- Alkategória:Családi ház
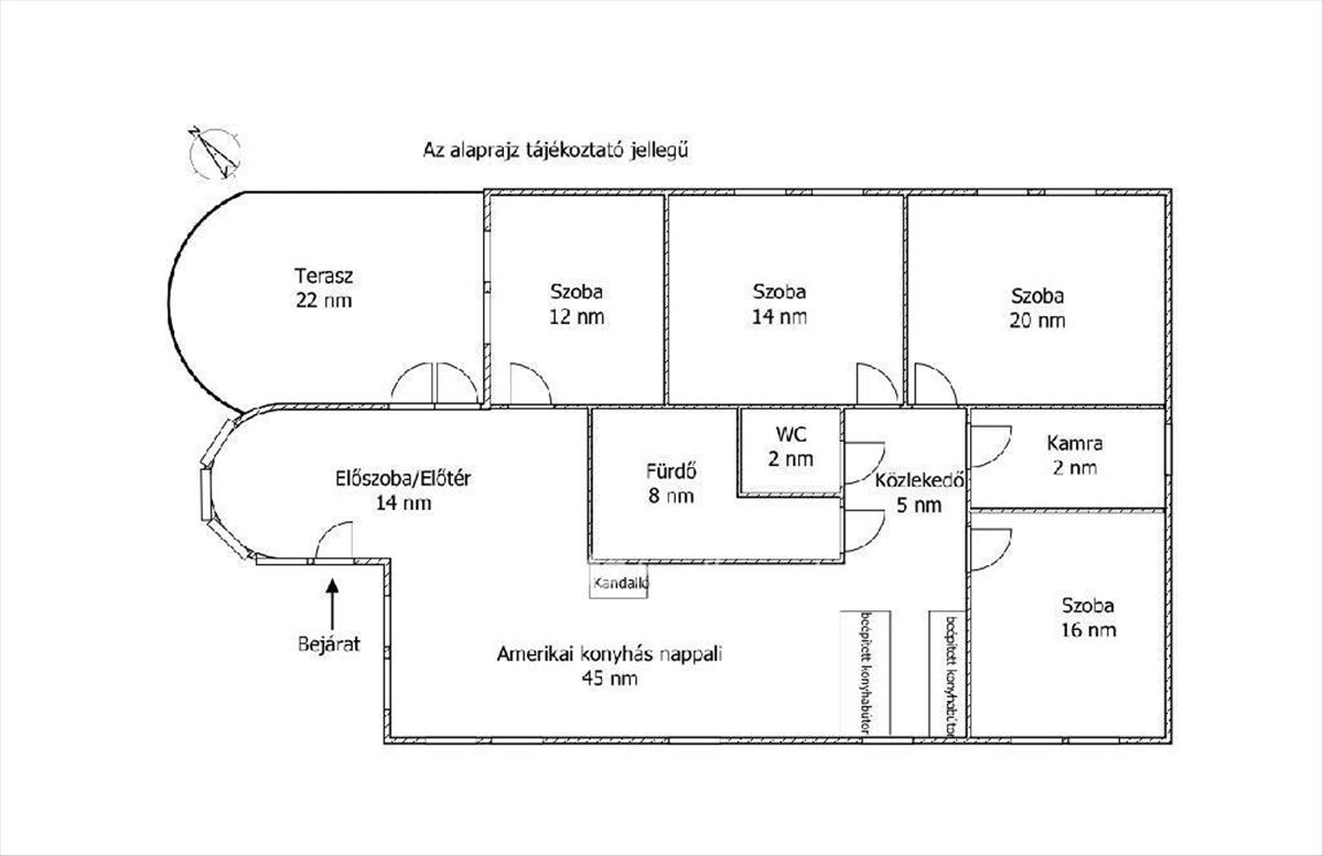
- Alapterület:135 m2
- Telekterület:674 m2
- Csere is:Nem
- Hirdető:Cég
- Élő videón megtekinthető:Nem
- Építés éve:1920
- Szobaszám:5
- Állapot:Jó állapotú
- Hány szintes az ingatlan:Földszintes
- Tetőtér:nincs megadva
- Komfortosság:nincs megadva
- Parkolási lehetőség:Teremgarázsban
- Fűtés:Gáz (cirko)
- Bútorozottság:nincs megadva
- Fényviszony:Napfényes
- Tájolás:DNY
- Kilátás:nincs megadva
- Internet:nincs megadva
- Klíma:Van
- Akadálymentesített:nincs megadva
- Energiatanúsítvány:nincs megadva
- Villany:Telken belül
- Víz:Telken belül
- Gáz:Telken belül
- Csatorna:nincs megadva
- Üzenetküldés
- Hívás

Referencia szám: M318546

Ingatlan hirdetés leírása
Eladó Ház, Budapest 2. ker.
Ritka lehetőség – felújított századfordulós villa hidegkúton, ERDŐSZÉLENEladásra kínálunk Budapest ii/a. kerületének egyik legexkluzívabb és legzöldebb részén, Hársakalján egy valódi építészeti különlegességet.
Ez a 135 nm-es, századfordulós stílusban épült villa egy 674 nm-es, parkosított telken helyezkedik el, csendes, erdőszéli zsákutcában, távol a város zajától.
Az ingatlan 2022-ben teljes körű korszerűsítésen esett át, amely során a klasszikus elegancia megőrzése mellett modern, energiahatékony műszaki megoldások kerültek beépítésre. a ház kívül-belül kiváló állapotú.
Elosztás és jellemzők:
Telek: 674 nm
lakóterület 135 nm, 4 tágas szoba + amerikai konyhás nappali
Kombi gázkazán, radiátoros fűtés, kandalló nappaliban
Légkondicionáló berendezések
Hőszigetelt, energiahatékony épület
Külső és extrák:
Kétállásos garázs
Száraz pince
Beépített, gondozott medence
Nagyméretű terasz
Gyönyörű, parkosított kert
Az elhelyezkedés kiváló: pár perc sétára buszmegálló (éjszakai járattal), a közelben bevásárlási lehetőségek, gyógyszertár, orvosi rendelő, iskola, óvoda és bölcsőde is megtalálható.
Ez az ingatlan nem csupán egy ház, hanem egy életstílus – a természet közelsége, a nyugalom és a kifinomult elegancia tökéletes összhangja.
>ENG:
RARE opportunity – renovated turn-of-the-century villa in hidegkút, at the edge of the FOREST
For sale in one of the most exclusive and green areas of Budapest’s ii/a district, Hársakalja, a truly unique architectural gem.
This 135 sqm turn-of-the-century villa is located on a beautifully landscaped 674 sqm plot, in a quiet cul-de-sac right next to the forest.
The property was fully modernized in 2022, combining timeless classical elegance with modern comfort and energy-efficient solutions. The villa is in excellent condition inside and out.
Layout and features:
Living area: 135 sqm
Plot size: 674 sqm
4 spacious rooms + open-plan living room with kitchen
Fireplace in the living area, gas combi boiler with radiators
Air conditioning
Insulated, energy-efficient building
Additional features:
Two-car garage
Dry cellar
Built-in, well-maintained swimming pool
Large terrace
Beautifully landscaped garden
The location is outstanding: bus stops (including night service) are within walking distance, and shops, pharmacy, medical services, schools and kindergartens are all nearby.
This villa is more than just a home – it is a lifestyle where tranquility, nature and refined elegance meet.
Referencia szám: m318546-ml Hitel.hu - Hasonlítsa össze a bankok lakáshitel ajánlatait


