Eladó új építésű ház Budapest XVI. kerület
| Kedvencbe | Megosztás | Árfigyelő |
| Kedvezményes lakáshitel ajánlatok | ||
| 210 000 000 HUF | ||
Ingatlan adatai
- Eladó vagy kiadó:Eladó
- Település:Budapest XVI. kerület
- Kategória:Ház
- Alkategória:Családi ház
- Alapterület:155 m2
- Telekterület:587 m2
- Csere is:Nem
- Hirdető:Cég
- Élő videón megtekinthető:Nem
- Építés éve:2026
- Szobaszám:4
- Állapot:Új építésű
- Hány szintes az ingatlan:nincs megadva
- Tetőtér:nincs megadva
- Komfortosság:Dupla komfortos
- Pince:Nincs
- Parkolási lehetőség:Udvaron
- Fűtés:nincs megadva
- Bútorozottság:nincs megadva
- Fényviszony:nincs megadva
- Tájolás:nincs megadva
- Kilátás:nincs megadva
- Internet:nincs megadva
- Akadálymentesített:nincs megadva
- Energiatanúsítvány:nincs megadva
- Villany:Van
- Víz:Van
- Gáz:Nincs
- Csatorna:Van
- Üzenetküldés
- Hívás


Hitel ajánlat
Ingatlan hirdetés leírása
Eladó Családi ház, Budapest 16. kerület, Rákosszentmihály, 155...
Eladó új építésű családi ház a XVI. kerületben, Rákosszentmihályon!BERUHÁZÓI ÁRON!
Ha tágas, nyugodt, jól megközelíthető otthont keres, ez az ingatlan Önnek szól!
Egy könnyedén fenntartható, alacsony rezsiköltségekkel bíró, modern otthona lehet - kiváló környezetben!
Folyamatban lévő építkezés!
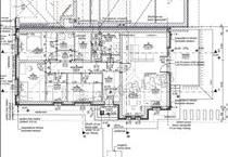
A 155 nm-es lakóterű, dupla komfortos ház csendes kertvárosi környezetben, 587 nm-es telekre épül.
Az ingatlan minden igényt kielégítő elosztással, kényelmes terekkel rendelkezik:
-41 nm-es amerikai konyhás nappali, 18 nm-es terasz kapcsolattal, 3 szoba (12 nm-esek), 2 fürdőszoba, háztartási helyiség, gardrób/tároló, vendég wc, kamra, előszoba-közlekedő.
A ház 30-as Porotherm téglából épült, rejtett redőnytok előkészítéssel. a tervek szerint 15 cm-es hőszigetelés, hőszivattyús fűtés (padlófűtéssel) kerül kialakításra, 3 rétegű, hőszigetelt üvegezésű műanyag nyílászárók kerülnek beépítésre, továbbá 2 db klíma kiállás is készül.
A burkolatok, szaniterek, belső ajtók saját igény, ízlés szerint választhatóak.
Közlekedés: buszmegálló gyalogosan néhány perc alatt elérhető. Az Örs vezér tere autóval mindössze 10 percnyire.
Hívjon a részletekért, a részletes műszaki tartalomért.
Irodánk új építésű ingatlanok specialistája, felkészült értékesítőkkel!
Jogi háttérrel (kedvező díjazással) és az egyik legjobb, bank semleges hitelközvetítővel segítjük vásárlását.
Hitelszakértőnk teljes körű ügyintézéssel áll Vevőink rendelkezésére, legyen szó otthon start, csok+, babaváró vagy a legjobb piaci hitelről.
Új építésű ingatlanjainkat beruházói áron értékesítjük!
Amennyiben értékesíteni kívánja ingatlanát, irodánk egyedi, kedvező ajánlattal áll rendelkezésére! Hitel.hu - Hasonlítsa össze a bankok lakáshitel ajánlatait

