Eladó ház - Budapest XX. kerület
- INGYENES HIRDETÉS FELADÁS
Ingatlan adatai
- Eladó vagy kiadó:Eladó
- Település:Budapest XX. kerület
- Kategória:Ház
- Alkategória:Családi ház
- Alapterület:295 m2
- Telekterület:535 m2
- Csere is:Nem
- Hirdető:Cég
- Élő videón megtekinthető:Nem
- Építés éve:2008
- Szobaszám:11
- Állapot:nincs megadva
- Hány szintes az ingatlan:Földszintes
- Tetőtér:nincs megadva
- Komfortosság:nincs megadva
- Pince:nincs megadva
- Parkolási lehetőség:nincs megadva
- Fűtés:Hőszivattyús
- Bútorozottság:nincs megadva
- Fényviszony:Napfényes
- Tájolás:DK
- Kilátás:nincs megadva
- Internet:nincs megadva
- Klíma:nincs megadva
- Akadálymentesített:nincs megadva
- Energiatanúsítvány:nincs megadva
- Villany:nincs megadva
- Víz:nincs megadva
- Gáz:nincs megadva
- Csatorna:nincs megadva
- Kapcsolatfelvétel

Papp Gergely
+36-(70)-206-8848
Mondd meg a hirdetőnek, hogy a megveszLAK-on találtad a hirdetést.
Referencia szám: HZ047979
Hitel ajánlatok
Ingatlan hirdetés leírása
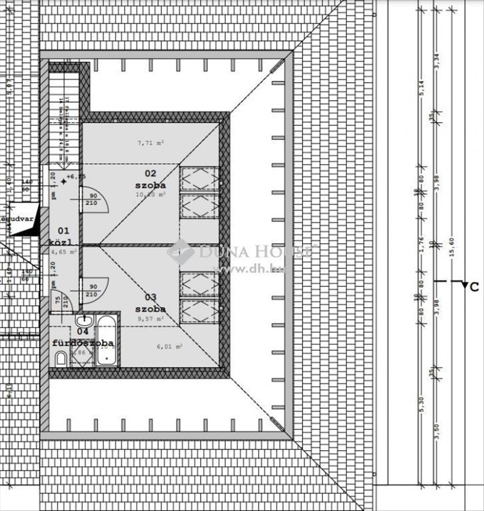
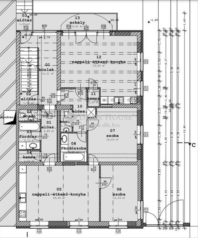
Eladó ház, Budapest 20. ker.
Szent Erzsébet térnél a kerület központjában, 535 nm -es telken álló, három szintesnégy lakásos társasház tervekkel, dokumentációval, kedvező haszonnal eladó! a bal oldali telekhatáron álló épület részletesen:-1. (Nem) lakószint: 3x11 nm tároló + 16 nm gépészet- földszint: 115 nm fűtőtt alapterület + 10nm terasz- emelet: 121 nm fűtött alapterület + 6 nm erkély- tetőtér: 26 nm nettó alapterületJelenlegi tervek alapján 262 nm adható el, autóbeállókat a telken belül kellkialakítani. a tulajdoni lap tehermentes, a befejezés azonnal megkezdhető, az építés nem engedélyköteles. Hőszivattyűs fűtés lett tervezve, de ettőligény esetén el lehet térni. További kérdéseivel keressen bizalommal, vagy küldjön üzenetet!
Referencia szám: hz047979 FIX 3% lakáshitelre megvehető
Tetszett ez az eladó Budapest XX. kerületi 11 szobás családi ház? Hívd fel a hirdetőt most, és tudj meg mindent erről az eladó családi házról! Ha gondolod nézelődj tovább az eladó ház Budapest XX. kerület oldal hirdetései között. Ennek az eladó háznak az ára 84900000 Ft és mivel az alapterülete 295 négyzetméter, ezért az átlagos négyzetméterára 287797 HUF/m2.
Az eladó házak menüpontban további hirdetések között is böngészhetsz. Ha van kedved, akkor böngészhetsz a Papp Gergely összes hirdetése között, vagy akár a/az Duna House Gyál összes hirdetése között is.

