- >>
- eladó ingatlanok
- >>
- eladó ház
- >>
- eladó ház Csökmő
- >>
Eladó jó állapotú ház - Csökmő
| | |||
| Kedvencnek jelölöm | Elküldöm emailben | Megosztás | Szavazás |
| FIX 3% lakáshitelre megvehető | |||
| 35 900 000 HUF | |||
Ingatlan adatai
- Eladó vagy kiadó:Eladó
- Település:Csökmő
- Kategória:Ház
- Alkategória:Családi ház
- Alapterület:106 m2
- Telekterület:1854 m2
- Csere is:Nem
- Hirdető:Cég
- Élő videón megtekinthető:Nem
- Építés éve:1974
- Szobaszám:3
- Állapot:Jó állapotú
- Hány szintes az ingatlan:Földszintes
- Tetőtér:nincs megadva
- Komfortosság:nincs megadva
- Parkolási lehetőség:Udvaron
- Fűtés:Gáz (cirko)
- Bútorozottság:nincs megadva
- Fényviszony:Napfényes
- Tájolás:nincs megadva
- Kilátás:nincs megadva
- Internet:nincs megadva
- Akadálymentesített:nincs megadva
- Energiatanúsítvány:A+++
- Villany:nincs megadva
- Víz:nincs megadva
- Gáz:nincs megadva
- Csatorna:nincs megadva
- Üzenetküldés
- Hívás

Referencia szám: M307571

Hitel ajánlat
Ingatlan hirdetés leírása
Eladó Ház, Csökmő, Eladó jó állapotú ház - Csökmő
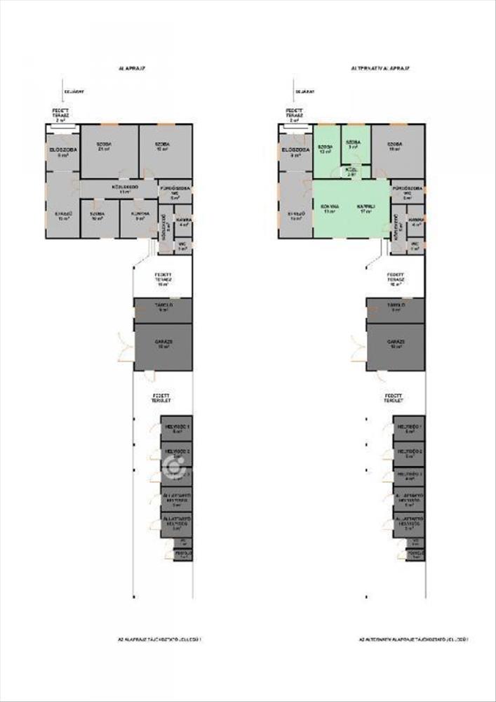
Eladó családi ház Csökmőn - Tágas telek, felújított ház, sok lehetőség!Ez a 106 m2-es felújított otthon egy rendezett és tágas 1854 m2-es telken helyezkedik el, csendes és nyugodt környezetben.
Az ingatlan főbb jellemzői:
- Beton alap + vegyes falazat
- Kiváló szerkezeti állapot
- 2000-ben teljesen felújított fa gerendás tetőszerkezet, cserép fedéssel
- 30 cm födémszigetelés + 10 cm külső szigetelés + nemesvakolat
- Hőszigetelt nyílászárók mindenhol
- Teljes vízrendszer és fűtésrendszer csere
- Radiátorok minden helyiségben
- Fűtés: gázkazán vagy vegyes tüzelésű kazán
- Hidegburkolat + tölgyfa szalagparketta
Belső elrendezése praktikus, élhető, otthonos:
- Előszoba (fedett bejárattal)
- Étkező + közlekedők
- 3 szoba (2 nagyobb, 1 kisebb)
- Konyha + kamra
- Fürdőszoba zuhanyzóval és káddal + WC
- Külön WC
- Tágas, fedett hátsó terasz burkolva, pihenésre vagy bulikhoz is tökéletes!
Melléképületek, garázs, tárolók és még több lehetőség!
- Elektromos kapus garázs + szerelőakna
- Több árammal ellátott tárolóhelyiség
- Melléképületek többféle hasznosításra, fedett részekkel
Az ingatlan per- és tehermentes, azonnal költözhető!
Ideális családoknak, természetkedvelőknek, akik saját kertre, csendre és szabadságra vágynak.
Vagy egy olyan otthonra, ami akár üzleti célra is alkalmas! Ne hagyd ki! Nézd meg személyesen!
Ez a csökmői ház nem csak egy ingatlan, hanem egy lehetőség egy új életre!
A hirdetésben tervezett látványképek is meg vannak jelenítve, hogy segítsenek a végleges megjelenés pontosabb elképzelésében!
További információért hívjon bizalommal akár hétvégén is. Megtekintésre telefonos egyeztetés alapján van lehetőség. Kedvezményes kamatozású lakásvásárlási, felújítási hitelek, valamint CSOK és Babaváró ügyintézés az OTP hátterével irodánkban.
Referencia szám: m307571 FIX 3% lakáshitelre megvehető

