Eladó átlagos állapotú ház - Debrecen
- INGYENES HIRDETÉS FELADÁS
Ingatlan adatai
- Feladva:4 hónapja a megveszLAK-on
- Eladó vagy kiadó:Eladó
- Település:Debrecen
- Kategória:Ház
- Alkategória:Családi ház
- Alapterület:132 m2
- Telekterület:651 m2
- Csere is:Nem
- Hirdető:Cég
- Élő videón megtekinthető:Nem
- Építés éve:1987
- Szobaszám:4
- Állapot:Átlagos állapotú
- Hány szintes az ingatlan:Földszintes
- Tetőtér:nincs megadva
- Komfortosság:nincs megadva
- Pince:nincs megadva
- Parkolási lehetőség:Garázsban
- Fűtés:Gáz (cirko)
- Bútorozottság:nincs megadva
- Fényviszony:Napfényes
- Tájolás:ÉNY
- Kilátás:nincs megadva
- Internet:nincs megadva
- Klíma:nincs megadva
- Akadálymentesített:nincs megadva
- Energiatanúsítvány:nincs megadva
- Villany:Van
- Víz:Van
- Gáz:Van
- Csatorna:Van
- Kapcsolatfelvétel

Sánta László
+36-(30)-140-8999
Mondd meg a hirdetőnek, hogy a megveszLAK-on találtad a hirdetést.
Referencia szám: 178721
Hitel ajánlatok
Ingatlan hirdetés leírása
Nagy családosok figyelem!
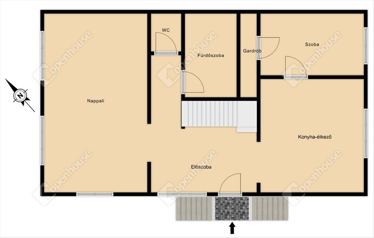
Eladó szintes családi ház Debrecenben, Kondoroskert városrészben!
A telek mérete 651 m², gondozott kerttel és fúrt kúttal. a lakótér 132 m², praktikus elrendezéssel.
A ház beton alapra épült B30-as téglából, a tető kiváló állapotú pala tető.
Nyílászárók a konyhában és a földszinti szobában műanyag nyílászárók, a többi helyiségben fa nyílászárók műanyag borítással, mind kiválóan zárnak.
Minden helyiség tágas és világos, ideális családok számára.
Földszinten található:
Tágas nappali, amely akár két szobává alakítható.
Egy külön szoba és egy nagy, világos konyha.
Fürdőszoba sarokkáddal és külön WC.
Nagyméretű előtér, amely kiválóan alkalmas családi fogadótérnek.
A nappaliból egy 8 m²-es loggia nyílik.
Emeleten található:
Két tágas, világos szoba.
Fürdőszoba zuhanyzóval és WC-vel.
Külön gardrób helyiség.
Az egyik szobához tartozik egy 5 m²-es loggia.
A ház teljes alápincézett ahol tálálható egy 40m²-es garázs, kazánház, valamint egy konyha és kamra is helyet kapott.
Ajánlom családoknak, akik tágas, kényelmes otthont keresnek, csendes környezetben!
Ha felkeltette érdeklődését ez az eladó debreceni családi ház, vagy bármely más családi ház és bővebb információt szeretne, keressen bizalommal. Hivatkozási szám: #178721
Az Openhouse Debrecen Hadházi úti Ingatlaniroda tagjaként várom Önt az országos hálózatunk teljes kínálatával.
A családi ház vásárláshoz hitelt igényelne? Ingyenes hitelközvetítéssel segít Önnek bankfüggetlen hitelszakértőnk.
További szolgáltatásainkkal (pl. Értékbecslés, energetikai tanúsítvány, jogi háttér) is segítjük Önt a vásárlásban.
Az otthon érték. Az ingatlan üzlet. FIX 3% lakáshitelre megvehető
Tetszett ez az eladó Debreceni átlagos állapotú 4 szobás családi ház? Hívd fel a hirdetőt most, és tudj meg mindent erről az eladó családi házról! Ha gondolod nézelődj tovább az eladó ház Debrecen oldal hirdetései között. Ennek az eladó háznak az ára 105000000 Ft és mivel az alapterülete 132 négyzetméter, ezért az átlagos négyzetméterára 795455 HUF/m2.
Az eladó házak menüpontban további hirdetések között is böngészhetsz. Ha van kedved, akkor böngészhetsz a Sánta László összes hirdetése között, vagy akár a/az Open House Openhouse Debrecen Kálvin téri Ingatlaniroda - Coffee Corner by Openhouse összes hirdetése között is.

