Eladó újszerű állapotú ház Debrecen
| Kedvencbe | Megosztás | Árfigyelő |
| FIX 3% lakáshitelre megvehető | ||
| 149 000 000 HUF | ||
Ingatlan adatai
- Eladó vagy kiadó:Eladó
- Település:Debrecen
- Kategória:Ház
- Alkategória:Családi ház
- Alapterület:240 m2
- Telekterület:524 m2
- Csere is:Nem
- Hirdető:Cég
- Élő videón megtekinthető:Nem
- Építés éve:2005
- Szobaszám:8
- Állapot:Újszerű, kitűnő
- Hány szintes az ingatlan:Földszintes
- Tetőtér:nincs megadva
- Komfortosság:nincs megadva
- Parkolási lehetőség:nincs megadva
- Fűtés:Gáz (cirko)
- Bútorozottság:nincs megadva
- Fényviszony:Napfényes
- Tájolás:DNY
- Kilátás:nincs megadva
- Internet:nincs megadva
- Akadálymentesített:nincs megadva
- Energiatanúsítvány:nincs megadva
- Villany:Van
- Víz:Van
- Gáz:Van
- Csatorna:Van
- Üzenetküldés
- Hívás

Referencia szám: HZ045607

Hitel ajánlat
Ingatlan hirdetés leírása
Eladó ház, Debrecen, Eladó újszerű állapotú ház - Debrecen
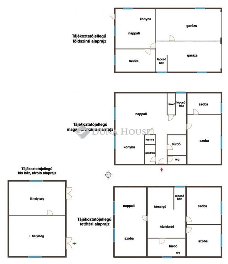
Debrecenben eladó újszerű, háromszintes családi ház + különálló kis ház, nagy garázzsal, csendes utcában!Debrecen egyik legjobb részén, a Veres Péter utcából nyíló csendes utcában kínálunk megvételre egy kiváló adottságokkal rendelkező, újszerű állapotú ingatlant, amely nagycsaládnak, két generáció számára vagy befektetésnek is ideális.
Főbb paraméterek
Főépület: 240 nm, 3 szintes
Különálló kis ház: 60 nm (önálló közművekkel)
Telek: 524 nm
Garázs: 2 férőhelyes, elektromos kapuval + nagy tároló
Tájolás: déli és nyugati – egész nap körbenapozott
Műszaki jellemzők
Vasalt betonalap
Tégla falazat, betonkoszorúval
Beton födémszerkezet (kiváló állapot)
Bramac cserépfedés
Hőszigetelt műanyag nyílászárók, redőnnyel és szúnyoghálóval
Laminált parketta
Gáz cirkó fűtés, radiátoros hőleadással
Ariston 36 kW-os gázkazán
2 db hűtő-fűtő klíma
Kert és környezet
Gondozott, parkosított, gyönyörű kert
Az épületet minden oldalról zöld veszi körül
Az utcafront igényesen, rendezett módon kialakított
Különálló kis ház
Víz, csatorna, gáz és áram kiépítve
Kiváló lehetőség:
kétgenerációs együttélésre
vendégháznak
irodának
kiadásra (befektetés)
Összegzés
Ez az ingatlan:
-nagy terekkel
- kiváló elosztással
- nyugodt környezetben
- Debrecen egyik legkeresettebb részén található
Értékálló befektetés és tökéletes otthon egyben.
Megtekintés rugalmasan, akár hétvégén is! FIX 3% lakáshitelre megvehető

