Eladó átlagos állapotú ház - Debrecen
- INGYENES HIRDETÉS FELADÁS
Ingatlan adatai
- Eladó vagy kiadó:Eladó
- Település:Debrecen
- Kategória:Ház
- Alkategória:Családi ház
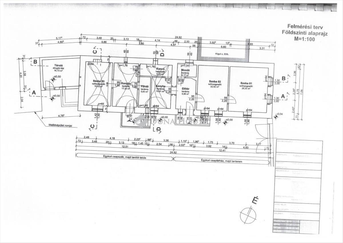
- Alapterület:123 m2
- Telekterület:624 m2
- Csere is:Nem
- Hirdető:Cég
- Élő videón megtekinthető:Nem
- Szobaszám:3
- Állapot:Átlagos állapotú
- Hány szintes az ingatlan:Földszintes
- Tetőtér:nincs megadva
- Komfortosság:nincs megadva
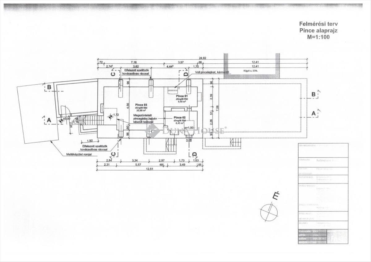
- Pince:nincs megadva
- Parkolási lehetőség:nincs megadva
- Fűtés:Gáz (cirko)
- Bútorozottság:nincs megadva
- Fényviszony:Napfényes
- Tájolás:ÉNY
- Kilátás:nincs megadva
- Internet:nincs megadva
- Klíma:nincs megadva
- Akadálymentesített:nincs megadva
- Energiatanúsítvány:nincs megadva
- Villany:nincs megadva
- Víz:nincs megadva
- Gáz:nincs megadva
- Csatorna:nincs megadva
- Kapcsolatfelvétel

Gerőcs Krisztina
+36-(20)-452-9828
Mondd meg a hirdetőnek, hogy a megveszLAK-on találtad a hirdetést.
Referencia szám: HZ032544
Hitel ajánlatok
Ingatlan hirdetés leírása
Eladó ház, Debrecen, Eladó átlagos állapotú ház - Debrecen
Történelem eladó Debrecen belvárosában
Egyedülálló befektetési lehetőség!
Lépjen be Debrecen múltjába, és legyen részese a jövőjének is!
A város szívében, a patinás Kígyó utcában kínálunk eladásra egy ritka, történelmi jelentőségű ingatlant, amely nem csupán falakat, hanem több évszázad örökségét hordozza.
Mi teszi különlegessé?
17–18. Századi cívis lakóház eredetű épület
egykor a híres Novella csapszék helyszíne
később Debrecen első városi óvodájának és második fiúiskolájának otthona
hivatalos helyi műemléki védelem alatt áll
kiváló belvárosi elhelyezkedés, a történelmi belváros közvetlen szomszédságában
jelenleg két lakássá alakítva
Kinek ajánljuk?
Befektetőknek, akik egyedi és időtálló értéket keresnek
kreatív vállalkozóknak (turizmus, vendéglátás, kultúra)
művészeti, civil vagy edukációs projektekhez
többgenerációs lakhatásra is alkalmas
Lehetséges hasznosítási irányok
tematikus kávézó vagy borbár (Novella csapszék történetére építve)
galéria, alkotóház vagy kiállítótér
boutique szálláshely vagy vendégház exkluzív hangulattal
Tudnivalók
az ingatlan jelenleg üres
felújítást igényel
műemléki státusz: értékmegőrző és pályázati forrásokkal támogatható fejlesztési lehetőség
magántulajdon, per- és tehermentes
Összegzés
Ez nem csupán egy ingatlan – ez Debrecen történelmi örökségének egy darabja, amely új funkcióval és új élettel születhet újjá.
Érdeklődés esetén további információval és megtekintéssel kapcsolatban várom jelentkezését!
Érdeklődni: Gerőcs Krisztina + 36204529828
E-mail : gerocs. Krisztina@dh. Hu
Referencia szám: hz032544 Hitel.hu - Hasonlítsa össze a bankok lakáshitel ajánlatait
Tetszett ez az eladó Debreceni átlagos állapotú 3 szobás családi ház? Hívd fel a hirdetőt most, és tudj meg mindent erről az eladó családi házról! Ha gondolod nézelődj tovább az eladó ház Debrecen oldal hirdetései között. Ennek az eladó háznak az ára 155000000 Ft és mivel az alapterülete 123 négyzetméter, ezért az átlagos négyzetméterára 1260163 HUF/m2.
Az eladó házak menüpontban további hirdetések között is böngészhetsz. Ha van kedved, akkor böngészhetsz a Gerőcs Krisztina összes hirdetése között, vagy akár a/az Duna House Villa Gyömrő összes hirdetése között is.

