Eladó új építésű ház - Debrecen (73982964)
ELADÓ INGATLANOK
KIADÓ INGATLANOK
CSERE INGATLANOK
KÜLFÖLDI INGATLANOK
RÉSZLETES KERESÉS
INGATLAN HÍREK
HIRDETÉS FELADÁS
BELÉPÉS
REGISZTRÁCIÓ

Ingatlan adatai

  • Eladó vagy kiadó:Eladó
  • Település:Debrecen
  • Kategória:Ház
  • Alkategória:Családi ház
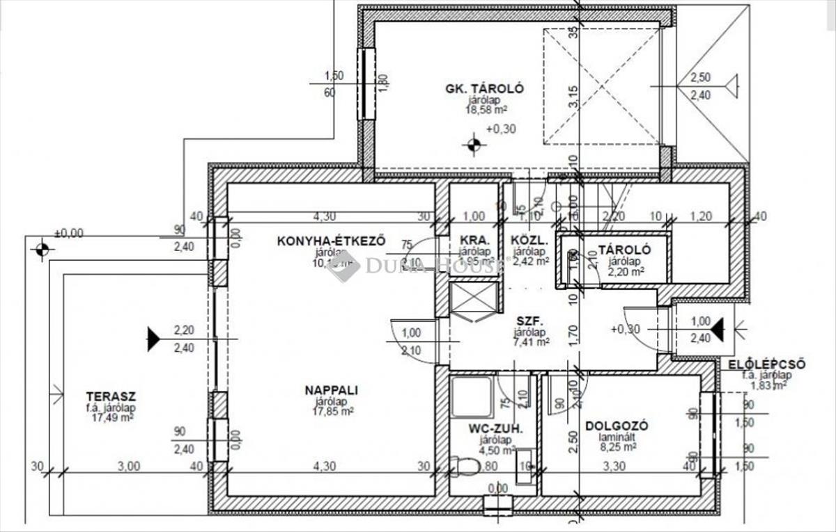
  • Alapterület:162 m2
  • Telekterület:334 m2
  • Csere is:Nem
  • Hirdető:Cég
  • Élő videón megtekinthető:Nem
  • Építés éve:2026
  • Szobaszám:6
  • Állapot:Új építésű
  • Hány szintes az ingatlan:Földszintes
  • Tetőtér:nincs megadva
  • Komfortosság:nincs megadva
  • Pince:nincs megadva
  • Parkolási lehetőség:nincs megadva
  • Fűtés:Hőszivattyús
  • Bútorozottság:nincs megadva
  • Fényviszony:Napfényes
  • Tájolás:NY
  • Kilátás:nincs megadva
  • Internet:nincs megadva
  • Klíma:Van
  • Akadálymentesített:nincs megadva
  • Energiatanúsítvány:A+
  • Villany:Van
  • Víz:Van
  • Gáz:Nincs
  • Csatorna:Van
  • Kapcsolatfelvétel
Posta Andrea
Posta Andrea
+36-(30)-664-7047
Mondd meg a hirdetőnek, hogy a megveszLAK-on találtad a hirdetést.
Referencia szám: PR076832/HZ/21147
Érdekel kedvezményes lakáshitel ajánlat is
Az ASZF-et és az Adatkezelési tájékoztatót elfogadom

Hitel ajánlatok

 

Ingatlan hirdetés leírása

Eladó ház, Debrecen, Eladó új építésű ház - Debrecen


Debrecen Nyulasi városrészen 4 ingatlanból álló prime kategóriás családi ház épül.
Eladó exkluzív, prime kategóriás új építésű családi ház Debrecen előkelő Nyulasi városrészében.
Az ingatlan kivételes kényelmet és luxust kínál a nappali plusz öt hálószoba, kertkapcsolatos elrendezés, tágas terasz, kényelmes garázs, valamint a parkosított udvar öntözőrendszerrel kombinációjával.
Ez a családi ház kiváló választás azok számára, akik a városi élet közelében, mégis egy nyugodt és exkluzív környezetben szeretnének élni.
Ne hagyja ki ezt a ritkán adódó lehetőséget, hogy Ön lehessen ennek a különleges otthonnak a tulajdonosa!
Az ingatlanhoz tartozó garázs tökéletes tárolóhelyet biztosít az autó számára, így az mindig biztonságban és fedett helyen parkolható.
A terasz és a kertkapcsolat egységes élettérként funkcionál, ahol a nyári napokat és estéket a szabadban töltheti.
A külső teret épp úgy gondos tervezéssel alakították ki, mint az otthon belső terét.
A kertben sétálva vagy a teraszon kávézva élvezheti a gondozott zöld környezetet.
A parkosított udvarban az öntözőrendszer automatikusan gondoskodik a növények frissességéről.
Az otthon melegét és hűsét egyaránt a legmodernebb hőszivattyús hűtő-fűtő rendszer biztosítja, ami egész évben ideális belső hőmérsékletet garantál.
A hálószobák tágasak és világosak, tökéletes helyet biztosítva a pihenéshez.
A nappali, mint a ház központi helyisége, tökéletes teret nyújt a családi és baráti összejövetelekhez.
Néhány műszaki adat:
- Teherhordó falazat a Viablokk falazóelem- válaszfalak szintén Viablokk
- a nyílászórók speciális fóliával ellátott műanyag szerkezetűek, antracit szinben
- rejtett redőnytokban antracit színű elektromos redőny
- hideg-meleg burkolatok, 15. 000 Ft/nm áron
- garázs, terasz burkolata 7. 000 Ft/nm áron
- szaniterek, csaptelepek 2. 000. 000 Ft értékben választhatók
- a vételár tartalmazza továbbá az automata öntözőrendszer kiépítését, tereprendezést, és parkosítást is.
- Az ingatlanok élő növény sávval (babérmeggy) lesznek körbekerítve.
További információkért várom hívását, érdeklődését

Referencia szám: pr076832/hz/21147 Hitel.hu - Hasonlítsa össze a bankok lakáshitel ajánlatait

Tetszett ez az eladó Debreceni új építésű 6 szobás családi ház? Hívd fel a hirdetőt most, és tudj meg mindent erről az eladó családi házról! Ha gondolod nézelődj tovább az eladó ház Debrecen oldal hirdetései között. Ennek az eladó háznak az ára 210000000 Ft és mivel az alapterülete 162 négyzetméter, ezért az átlagos négyzetméterára 1296296 HUF/m2.

Az eladó házak menüpontban további hirdetések között is böngészhetsz. Ha van kedved, akkor böngészhetsz a Posta Andrea összes hirdetése között, vagy akár a/az Duna House Debrecen - költözés alatt összes hirdetése között is.

 
 
© megveszLAK.hu - Az egyszerűen jó ingatlan hirdetési oldal