Eladó felújítandó ház Dunaújváros
| Kedvencbe | Megosztás | Árfigyelő |
| FIX 3% lakáshitelre megvehető | ||
| 81 000 000 HUF | ||
Ingatlan adatai
- Eladó vagy kiadó:Eladó
- Település:Dunaújváros
- Kategória:Ház
- Alkategória:Családi ház
- Alapterület:270 m2
- Telekterület:599 m2
- Csere is:Nem
- Hirdető:Cég
- Élő videón megtekinthető:Nem
- Építés éve:1982
- Szobaszám:5
- Állapot:Felújítandó
- Hány szintes az ingatlan:nincs megadva
- Tetőtér:nincs megadva
- Komfortosság:Dupla komfortos
- Pince:Van
- Parkolási lehetőség:nincs megadva
- Fűtés:Gáz (cirko)
- Bútorozottság:nincs megadva
- Fényviszony:nincs megadva
- Tájolás:nincs megadva
- Kilátás:nincs megadva
- Internet:nincs megadva
- Akadálymentesített:nincs megadva
- Energiatanúsítvány:nincs megadva
- Villany:Van
- Víz:Van
- Gáz:Van
- Csatorna:Van
- Üzenetküldés
- Hívás

Irmainé Zsuzsanna
Mondd meg a hirdetőnek, hogy a megveszLAK-on találtad a hirdetést.

Hitel ajánlat
Ingatlan hirdetés leírása
Eladó Családi ház, Dunaújváros, Újtelep, Kölcsey Ferenc utca, ...
Kétgenerációs, duplakomfortos családi ház különálló épülettel – lehetőségekben gazdag ingatlanDunaújvárosban - Újtelepen kínálunk eladásra egy kétgenerációs, duplakomfortos családi házat, amely nem kész megoldás, hanem komoly potenciált kereső vevőknek ideális választás.
3 Szintes családi ház? - Igen!
Ez az ingatlan nem tökéletes – de éppen ettől különleges. Azoknak szól, akik meglátják benne az értéket, és nem riadnak vissza attól, hogy saját elképzeléseikre formálják.
Az ingatlan azonnal nem költözhető, felújítást és korszerűsítést igényel, ugyanakkor átalakítással több lakóegység, üzleti vagy befektetési célú hasznosítás is könnyen megvalósítható.
Amit az ingatlan kínál:
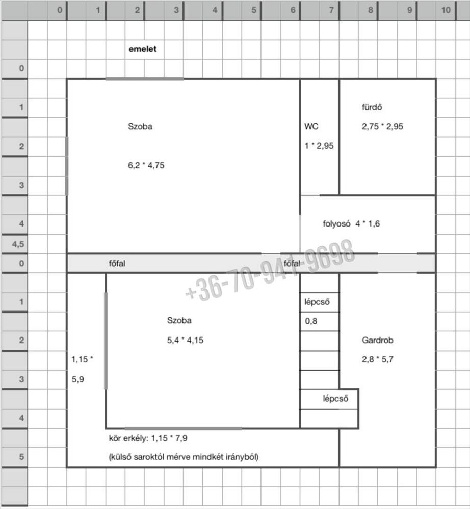
-280 m² lakótér, jól alakítható belső elrendezéssel
(5 szoba, 2 konyha, több fürdőszoba, gardrób, spájz, 3 terasz)
-Kétgenerációs kialakítás lehetősége, akár teljesen szeparált lakrészekkel
-Négy külön bejárat – a földszinten üzlethelyiség, iroda, rendelő is kialakítható
- Földszinti garázs
-599 m²-es, körbekerített kert
- Udvarban különálló, ~70 m²-es épület, amely felújítással
önálló lakóházként vagy vállalkozás, iroda, üzlet céljára is hasznosítható
Műszaki jellemzők:
- 1982-ben épült, tégla szerkezetű
- Tető felújítva, még 25 év garanciával
- Hang- és hőszigetelt nyílászárók 3 éve cserélve
- Gázkazán fűtés
- 3 fázisú villanyhálózat
Az ingatlan irányára: 81. 000. 000 Ft
Elhelyezkedés:
Csendes, rendezett környezet, mégis kiváló infrastruktúra:
Obi, Tesco a közelben, a belváros gyorsan és könnyen elérhető.
Képzeld el, hogy egy ingatlanon belül együtt, mégis külön élhet két generáció – vagy hogy az utcafronti részen üzletet, irodát működtetsz, miközben a család kényelmesen él a felső szinteken.
Ha meglátod benne a lehetőséget, ne hagyd ki!
Írj üzenetet vagy hívj bizalommal további információért és megtekintésért.
Irodánk teljes körű szakmai tanácsadással, ingyenes hitelügyintézéssel van segítségedre, profi ügyvédi háttérrel rendelkezik.
Kérdése van? Szeretné megnézni az ingatlant?
Keressen bátran, a megadott elérhetőségen, akár hétvégén is! FIX 3% lakáshitelre megvehető

