Eladó újszerű állapotú ház - Enying
- INGYENES HIRDETÉS FELADÁS
Ingatlan adatai
- Eladó vagy kiadó:Eladó
- Település:Enying
- Kategória:Ház
- Alkategória:Családi ház
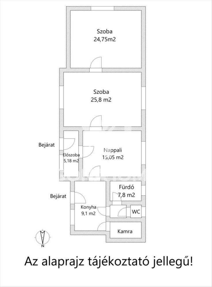
- Alapterület:87 m2
- Telekterület:7974 m2
- Csere is:Nem
- Hirdető:Cég
- Élő videón megtekinthető:Nem
- Építés éve:1950
- Szobaszám:3
- Állapot:Újszerű, kitűnő
- Hány szintes az ingatlan:Földszintes
- Tetőtér:nincs megadva
- Komfortosság:Összkomfortos
- Pince:nincs megadva
- Parkolási lehetőség:Udvaron
- Fűtés:Gáz (cirko)
- Bútorozottság:nincs megadva
- Fényviszony:nincs megadva
- Tájolás:nincs megadva
- Kilátás:nincs megadva
- Internet:nincs megadva
- Klíma:nincs megadva
- Akadálymentesített:nincs megadva
- Energiatanúsítvány:nincs megadva
- Villany:nincs megadva
- Víz:nincs megadva
- Gáz:nincs megadva
- Csatorna:nincs megadva
- Kapcsolatfelvétel
Takács Dávid
+36-(20)-911-8014
Mondd meg a hirdetőnek, hogy a megveszLAK-on találtad a hirdetést.
Hitel ajánlatok
Ingatlan hirdetés leírása
Eladó családi ház Enying
Eladó felújítandó családi ház ENYINGEN!
FIGYELEM!
- a ház a Balatontól 15 perce található autóval!
- a ház műszaki szempontból felújítást igényel!
- a házhoz tartozik egy hatalmas telek (vállalkozásra is alkalmas), különálló pince és gazdasági épületek!
- Az esetleges elírások, információk és a változtatások jogát fenntartjuk
ALAPADATOK:
- a ház építési éve ∼1950, vegyes falazatú: tégla, TÖMÉSFAL
- a ház hasznos alapterülete 87, 68 m2
- a házban megtalálható 3 szoba, konyha, spejz, kamra, fürdő
- a telek vállalkozásra is alkalmas és megosztható, belterületi ingatlan
MŰSZAKI és esztétikai ÁLLAPOT:
- a fűtés gázkazánnal és kandallóval történik
- a meleg vizet villanybojler biztosítja
- a nyílászárók mindenhol jó állapotú műanyag nyílászárók fa és műanyag redőnnyel
- a villanyvezeték- és vízvezeték-hálózat korszerűsítést IGÉNYEL!
KÖZELBEN TALÁLHATÓ:
- Új uszoda
- Óvoda, bölcsőde
- Rendelőintézet
- Nagyobb üzletláncok ( Lidl, Penny, Aldi, Coop)
- Kisebb üzlethelyiségek ( 4 pékség és 4 hentesüzlet)
- Gyógyszertár
- Nyugdíjasotthonok
Amennyiben az ingatlan megvásárlásához el kell adnia jelenlegi otthonát, úgy annak és a teljes folyamatnak a lebonyolításában is állok rendelkezésre!
További információkért forduljon hozzám bizalommal, hívjon a megadott telefonszámon - akár hétvégén is!
TOVÁBBI SZOLGÁLTATÁSAINK:
- Megbízható ügyvédi háttér
- ingyenes, független hitelügyintézés
- ingyenes, független biztosítási tanácsadás
- Energetikai tanúsítvány és ingatlan értékbecslés készítése
- Klíma rendszerek kiépítése és beüzemelése
- Riasztó- és kamera rendszerek kiépítése
- Közművek és szolgáltatók átírása
- Birtokbaadás lebonyolítása
- Kert- és tereprendezés
- Ingatlan takarítás
- Ingatlan felújítás
- Költöztetés
#gonahome #tegyelprobara #keressbizalommal #mindenamiingatlan FIX 3% lakáshitelre megvehető
Tetszett ez az eladó Enyingi újszerű állapotú 3 szobás családi ház? Hívd fel a hirdetőt most, és tudj meg mindent erről az eladó családi házról! Ha gondolod nézelődj tovább az eladó ház Enying oldal hirdetései között. Ennek az eladó háznak az ára 46800000 Ft és mivel az alapterülete 87 négyzetméter, ezért az átlagos négyzetméterára 537931 HUF/m2.
Az eladó házak menüpontban további hirdetések között is böngészhetsz. Ha van kedved, akkor böngészhetsz a Takács Dávid összes hirdetése között, vagy akár a/az GONA Home összes hirdetése között is.

