Eladó új építésű ház Fót
| Kedvencbe | Megosztás | Árfigyelő |
| FIX 3% lakáshitelre megvehető | ||
| 139 900 000 HUF | ||
Ingatlan adatai
- Eladó vagy kiadó:Eladó
- Település:Fót
- Kategória:Ház
- Alkategória:Családi ház
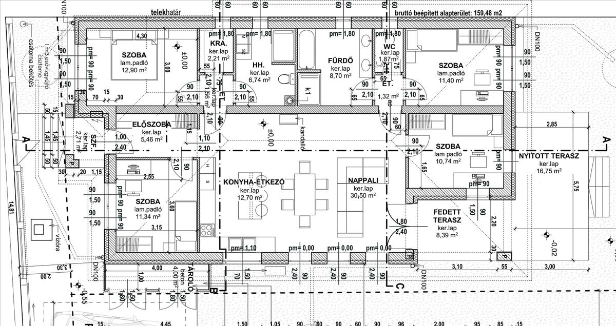
- Alapterület:117 m2
- Telekterület:545 m2
- Csere is:Nem
- Hirdető:Cég
- Élő videón megtekinthető:Nem
- Építés éve:2025
- Szobaszám:5
- Állapot:Új építésű
- Hány szintes az ingatlan:Földszintes
- Tetőtér:nincs megadva
- Komfortosság:nincs megadva
- Pince:Nincs
- Parkolási lehetőség:nincs megadva
- Fűtés:nincs megadva
- Bútorozottság:nincs megadva
- Fényviszony:nincs megadva
- Tájolás:nincs megadva
- Kilátás:nincs megadva
- Internet:nincs megadva
- Akadálymentesített:nincs megadva
- Energiatanúsítvány:nincs megadva
- Villany:Van
- Víz:Van
- Gáz:nincs megadva
- Csatorna:Van
- Üzenetküldés
- Hívás


Hitel ajánlat
Ingatlan hirdetés leírása
Fót csendes, nyugodt részén épülő nappali + 4 szobás, duplakom...
Fót csendes, nyugodt részén épülő nappali + 4 szobás, duplakomfortos családi ház referenciákkal rendelkező, megbízható kivitelezőtől eladó!Műszaki adatok:
-30-as porotherm tégla falazat + 15cm homlokzati grafit dryvit szigetelés,
- E gerendás betonfödém,
- 3 réteg hőszigetelt üvegezésű, 5 légkamrás fehér műanyag nyílászárók,
- antracit színű beton cserépfedés,
- horganyzott acéllemez csatorna antracit színben,
- hőszivattyú padlófűtéssel, nappaliban kandalló,
- inverteres hűtő-fűtő klíma,
- hideg- melegburkolatok, szaniterek a vevő igényei szerint még szabadon választhatók!
Elosztás:
- Előszoba, nappali-konyha-étkező, 4 szoba, közlekedő, kádas fürdőszoba, zuhanyzós fürdő/háztartási helyiég, vendégmosdó + 4nm kültéri tároló, 8, 39nm fedett és 16, 75nm nyitott terasz.
Telek:
- 545nm telek, parkoláshoz kocsibeálló kerül kialakításra.
Környék:
Nagyon jó környék, közelben iskola, óvoda, orvosi rendelő, boltok, buszmegálló. m2, m3 autópálya 5-10 perc alatt elérhető.
Az ingatlan számos referenciával rendelkező, megbízható kivitelező építi!
Komoly érdeklődés esetén a referencia házak személyesen is megtekinthetők! Kérésre teljes műszaki tartalmat, alaprajzot szívesen küldünk!
Céges építkezés, új építésű ingatlanokra vonatkozó kedvezmények igénybe vehetők!
Irányár: 139, 9Mft
Hivatkozási szám: 2518210.
Megtekinthető telefonos időpont egyeztetés alapján:
Sápi Balázs: +36 (20) 772-2429 sapibalazs@godolloi. Hu
GÖDÖLLŐ ingatlanközpont - www. Godolloi. Hu: Gödöllő és környéke legnagyobb ingatlan választéka /Gödöllő, Szada, Veresegyház, Kistarcsa, Kerepes, Erdőkertes, Fót, Dunakeszi/ eladó-kiadó családi ház, telek, lakás! Ingatlan építés és felújítás FIX 3% lakáshitelre megvehető

