Eladó átlagos állapotú ház - Gárdony
- INGYENES HIRDETÉS FELADÁS
Ingatlan adatai
- Eladó vagy kiadó:Eladó
- Település:Gárdony
- Kategória:Ház
- Alkategória:Családi ház
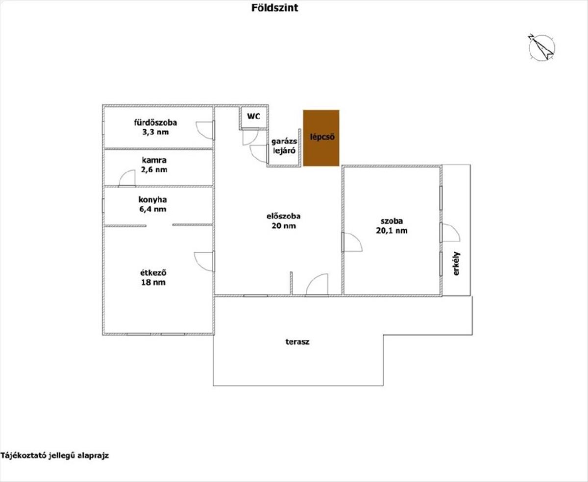
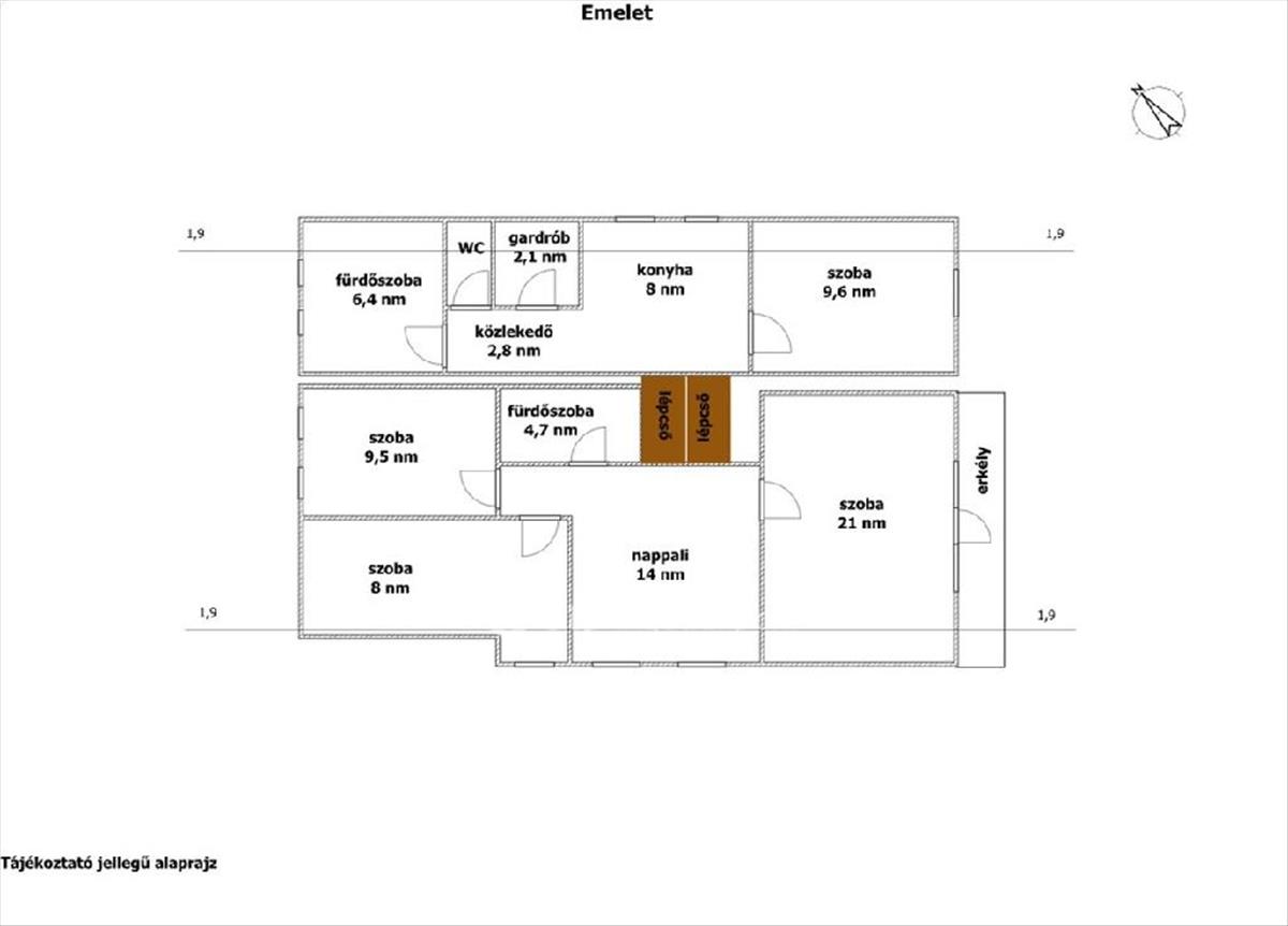
- Alapterület:172 m2
- Telekterület:1169 m2
- Csere is:Nem
- Hirdető:Cég
- Élő videón megtekinthető:Nem
- Építés éve:1988
- Szobaszám:3 + 3 fél
- Állapot:Átlagos állapotú
- Hány szintes az ingatlan:4 szintes
- Tetőtér:nincs megadva
- Komfortosság:nincs megadva
- Pince:nincs megadva
- Parkolási lehetőség:Teremgarázsban
- Fűtés:nincs megadva
- Bútorozottság:nincs megadva
- Fényviszony:nincs megadva
- Tájolás:nincs megadva
- Kilátás:nincs megadva
- Internet:nincs megadva
- Klíma:nincs megadva
- Akadálymentesített:nincs megadva
- Energiatanúsítvány:nincs megadva
- Villany:nincs megadva
- Víz:nincs megadva
- Gáz:nincs megadva
- Csatorna:nincs megadva
- Kapcsolatfelvétel

Darnai Henrietta
+36-20-487-4399
Mondd meg a hirdetőnek, hogy a megveszLAK-on találtad a hirdetést.
Hitel ajánlatok
Ingatlan hirdetés leírása
Fejér megye, Gárdony, Dinnyés 172 nm-es kétgenerációs családi ...
Fejér megye, Gárdony, Dinnyés 172 nm -es kétgenerációs családi ház eladó. a tehermentes, tégla falazatú ingatlan egy 1169 nm -es összközműves telken helyezkedik el, közel a vasútállomáshoz. a duplakomfortos családi házban 2 nappali, 1 szoba, 3 félszoba, 2 konyha, tágas étkező, kamra, 3 fürdőszoba, 2 külön wc található, valamint tartozik hozzá terasz, 2 erkély, garázs, pince és kazánház. a fűtésről gázkazán és vegyes tüzelésű kazán gondoskodik, radiátoros hő leadással. Az ingatlan kétgenerációs, rezsije kedvező. a vasútállomás, buszmegálló, bolt séta távolságra találhatóak. Az ingatlanban rengeteg lehetőség rejlik, több szoba kialakítható, egy hangulatos családi ház a Velencei-tó közelében. Teljes körű ügyintézésben segítjük ügyfeleinket díjtalanul: CSOK igénylése, kedvezményes hitel mobil bankári szolgáltatással, adásvétel teljes lebonyolításával. FIX 3% lakáshitelre megvehető
Tetszett ez az eladó Gárdonyi átlagos állapotú 3 egész és 3 fél szobás családi ház? Hívd fel a hirdetőt most, és tudj meg mindent erről az eladó családi házról! Ha gondolod nézelődj tovább az eladó ház Gárdony oldal hirdetései között. Ennek az eladó háznak az ára 99900000 Ft és mivel az alapterülete 172 négyzetméter, ezért az átlagos négyzetméterára 580814 HUF/m2.
Az eladó házak menüpontban további hirdetések között is böngészhetsz. Ha van kedved, akkor böngészhetsz a Darnai Henrietta összes hirdetése között, vagy akár a/az Gárdony Bóné Kálmán utca 12 - OTP Ingatlanpont Iroda összes hirdetése között is.

