Eladó felújítandó ház - Jászberény
- INGYENES HIRDETÉS FELADÁS
Ingatlan adatai
- Eladó vagy kiadó:Eladó
- Település:Jászberény
- Kategória:Ház
- Alkategória:Családi ház
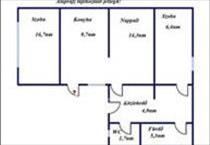
- Alapterület:59 m2
- Telekterület:336 m2
- Csere is:Nem
- Hirdető:Cég
- Élő videón megtekinthető:Nem
- Építés éve:1960
- Szobaszám:2 + 1 fél
- Állapot:Felújítandó
- Hány szintes az ingatlan:Földszintes
- Tetőtér:nincs megadva
- Komfortosság:nincs megadva
- Pince:nincs megadva
- Parkolási lehetőség:Udvaron
- Fűtés:Gáz (cirko)
- Bútorozottság:nincs megadva
- Fényviszony:Jó
- Tájolás:nincs megadva
- Kilátás:nincs megadva
- Internet:nincs megadva
- Klíma:nincs megadva
- Akadálymentesített:nincs megadva
- Energiatanúsítvány:nincs megadva
- Villany:nincs megadva
- Víz:nincs megadva
- Gáz:nincs megadva
- Csatorna:nincs megadva
- Kapcsolatfelvétel

Juhász László
+36-(20)-561-3370
Mondd meg a hirdetőnek, hogy a megveszLAK-on találtad a hirdetést.
Referencia szám: M308504
Hitel ajánlatok
Ingatlan hirdetés leírása
Eladó Ház, Jászberény
Jász-Nagykun Szolnok vármegyében Jászberényben, egy 336 nm -es telken kínálok megvételre egy 59 nm -es, részben felújított családi házat. Az ingatlan szerkezetileg már jelentős korszerűsítésen esett át: megtörtént a teljes víz- és szennyvízhálózat cseréje, az elektromos hálózat felújítása, valamint a tetőszerkezet javítása is, így a legnagyobb munkák már nem várnak az új tulajdonosra. a ház elosztása praktikus és otthonos: egy tágas szoba, egy nappalival egybeépített konyha, egy félszoba, valamint külön fürdőszoba és wc található benne. a fűtésről vegyes tüzelésű kazán és gázcirkó is gondoskodik, így lehetőség van választani a fűtési módok között. Az ingatlan belső kialakításának végleges befejezése már az új tulajdonos elképzelései szerint történhet, így teljes mértékben a saját ízlésére formálhatja ezt az otthonos kis házat. Azok számára, akik hitelből vásárolnának, jó hír, hogy az OTP kedvező finanszírozási lehetőségeit ajánljuk figyelmükbe, melyhez ingyenes hiteltanácsadással is segítséget nyújtunk. Ha egy jó elhelyezkedésű, már részben felújított, de még saját igényekre szabható ingatlant keresel Jászberényben, akkor érdemes megnézned ezt a lehetőséget!
Referencia szám: m308504-ml FIX 3% lakáshitelre megvehető
Tetszett ez az eladó Jászberényi felújítandó 2 egész és 1 fél szobás családi ház? Hívd fel a hirdetőt most, és tudj meg mindent erről az eladó családi házról! Ha gondolod nézelődj tovább az eladó ház Jászberény oldal hirdetései között. Ennek az eladó háznak az ára 24900000 Ft és mivel az alapterülete 59 négyzetméter, ezért az átlagos négyzetméterára 422034 HUF/m2.
Az eladó házak menüpontban további hirdetések között is böngészhetsz. Ha van kedved, akkor böngészhetsz a Juhász László összes hirdetése között, vagy akár a/az OTPip Jászberény Lehel Vezér tér 13 - OTP Ingatlanpont Iroda összes hirdetése között is.

