Eladó új építésű ház - Kápolnásnyék
- INGYENES HIRDETÉS FELADÁS
Ingatlan adatai
- Feladva:4 hónapja a megveszLAK-on
- Eladó vagy kiadó:Eladó
- Település:Kápolnásnyék
- Kategória:Ház
- Alkategória:Családi ház
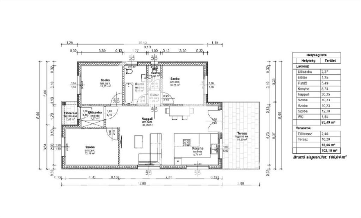
- Alapterület:100 m2
- Telekterület:750 m2
- Csere is:Nem
- Hirdető:Cég
- Élő videón megtekinthető:Nem
- Építés éve:2026
- Szobaszám:3
- Állapot:Új építésű
- Hány szintes az ingatlan:Földszintes
- Tetőtér:nincs megadva
- Komfortosság:nincs megadva
- Pince:nincs megadva
- Parkolási lehetőség:Utcán
- Fűtés:Elektromos
- Bútorozottság:nincs megadva
- Fényviszony:nincs megadva
- Tájolás:nincs megadva
- Kilátás:nincs megadva
- Internet:nincs megadva
- Klíma:nincs megadva
- Akadálymentesített:nincs megadva
- Energiatanúsítvány:nincs megadva
- Villany:nincs megadva
- Víz:nincs megadva
- Gáz:nincs megadva
- Csatorna:nincs megadva
- Kapcsolatfelvétel

Lepsényi Kornél
+36-70-884-0188
Mondd meg a hirdetőnek, hogy a megveszLAK-on találtad a hirdetést.
Hitel ajánlatok
Ingatlan hirdetés leírása
Eladó Kápolnásnyéken egy új építésű, modern 100 nm-es családi ...
Eladó Kápolnásnyéken egy új építésű, modern 100 nm -es családi ház egy 750 nm -es telken!
Az ingatlan kiváló elrendezésének köszönhetően kényelmes életteret biztosít: három ideális méretű hálószoba, világos amerikai konyhás nappali, külön wc, valamint egy fürdőszoba az ingatlan beosztása. a házhoz továbbá egy 18 nm -es terasz is kapcsolódik, amely tökéletes helyszín lehet a pihenéshez vagy baráti összejövetelekhez.
A fűtés korszerű elektromos rendszerrel megoldott, a parkolás pedig a telken belül több autó számára is kényelmesen biztosított.
Ha szeretne egy modern, jól megtervezett otthont Kápolnásnyék kedvelt részén, ne habozzon kapcsolatba lépni velem! Akár hétvégén is elérhető vagyok.
Ügyfeleink részére díjmentesen biztosítunk előzetes hitelbírálatot, piaci hitelek esetén egyedi kamatot, valamint teljes körű ügyintézést egészen a birtokbaadásig! FIX 3% lakáshitelre megvehető
Tetszett ez az eladó Kápolnásnyéki új építésű 3 szobás családi ház? Hívd fel a hirdetőt most, és tudj meg mindent erről az eladó családi házról! Ha gondolod nézelődj tovább az eladó ház Kápolnásnyék oldal hirdetései között. Ennek az eladó háznak az ára 74000000 Ft és mivel az alapterülete 100 négyzetméter, ezért az átlagos négyzetméterára 740000 HUF/m2.
Az eladó házak menüpontban további hirdetések között is böngészhetsz. Ha van kedved, akkor böngészhetsz a Lepsényi Kornél összes hirdetése között, vagy akár a/az Gárdony Bóné Kálmán utca 12 - OTP Ingatlanpont Iroda összes hirdetése között is.

