Eladó újszerű állapotú ház - Kecskemét
- INGYENES HIRDETÉS FELADÁS
Ingatlan adatai
- Feladva:6 hónapnál régebbi hirdetés
- Eladó vagy kiadó:Eladó
- Település:Kecskemét
- Kategória:Ház
- Alkategória:Családi ház
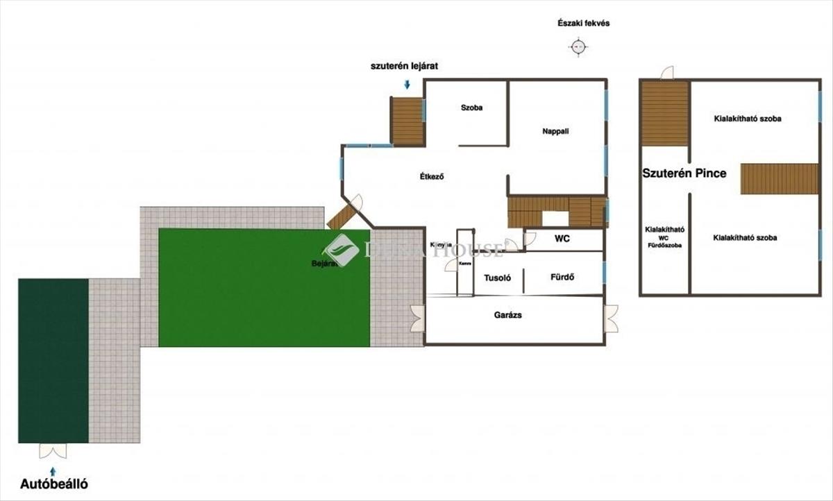
- Alapterület:210 m2
- Telekterület:252 m2
- Csere is:Nem
- Hirdető:Cég
- Élő videón megtekinthető:Nem
- Építés éve:1975
- Szobaszám:5
- Állapot:Újszerű, kitűnő
- Hány szintes az ingatlan:Földszintes
- Tetőtér:nincs megadva
- Komfortosság:nincs megadva
- Pince:nincs megadva
- Parkolási lehetőség:nincs megadva
- Fűtés:Gáz
- Bútorozottság:nincs megadva
- Fényviszony:Napfényes
- Tájolás:ÉNY
- Kilátás:nincs megadva
- Internet:nincs megadva
- Klíma:nincs megadva
- Akadálymentesített:nincs megadva
- Energiatanúsítvány:B
- Villany:nincs megadva
- Víz:nincs megadva
- Gáz:nincs megadva
- Csatorna:nincs megadva
- Kapcsolatfelvétel

Jerkovics Martin
+36-(70)-884-0033
Mondd meg a hirdetőnek, hogy a megveszLAK-on találtad a hirdetést.
Referencia szám: HZ092925
Hitel ajánlatok
Ingatlan hirdetés leírása
Felújított családi ház
Egyedi lehetőség Máriaváros közkedvelt részén szinte önellátó családi ház testreszabható befejezéssel!
Eladásra kínálunk egy különleges adottságokkal rendelkező ingatlant a Máriaváros egyik legkeresettebb részén. a ház egy közös udvaron helyezkedik el, de saját, leválasztott magánrésszel rendelkezik, így a nyugalom és az intimitás garantált.
Közvetlen bejárat a garázsból kényelmes és praktikus megoldás a mindennapokra.
85%-Ban kész állapotban a tulajdonos az Ön igényei szerint fejezi be a házat, beleértve a lépcsőteret és a földszinti fürdőszobát is. Így valóban olyan otthont alakíthat ki, amilyenre mindig is vágyott.
Napelemes rendszer saját energiatárolóval az el nem használt energiát újrahasznosítja, így az ingatlan szinte önellátóvá válik. Ez nemcsak környezetbarát, hanem pénztárcakímélő megoldás is!
Ez az ingatlan ideális választás azoknak, akik a modern technológiát, a rugalmas kialakítást és a kiváló elhelyezkedést keresik egy otthonban. Ne hagyja ki ezt a lehetőséget lépjen kapcsolatba velünk, és valósítsa meg álmai otthonát!
A duna house teljes kínálatával állok rendelkezésére.
INGATLAN - hitel - értékbecslés - ENERGETIKA
További információkért keressen a megadott elérhetőségek egyikén.
Tel. : +36-70/884-0033
E-mai: jerkovics. Martin@dh. Hu
Referencia szám: hz092925 FIX 3% lakáshitelre megvehető
Tetszett ez az eladó Kecskeméti újszerű állapotú 5 szobás családi ház? Hívd fel a hirdetőt most, és tudj meg mindent erről az eladó családi házról! Ha gondolod nézelődj tovább az eladó ház Kecskemét oldal hirdetései között. Ennek az eladó háznak az ára 98000000 Ft és mivel az alapterülete 210 négyzetméter, ezért az átlagos négyzetméterára 466667 HUF/m2.
Az eladó házak menüpontban további hirdetések között is böngészhetsz. Ha van kedved, akkor böngészhetsz a Jerkovics Martin összes hirdetése között, vagy akár a/az Duna House Kecskemét, Jókai utca összes hirdetése között is.

