Eladó jó állapotú ház - Kecskemét
- INGYENES HIRDETÉS FELADÁS
Ingatlan adatai
- Eladó vagy kiadó:Eladó
- Település:Kecskemét
- Kategória:Ház
- Alkategória:Családi ház
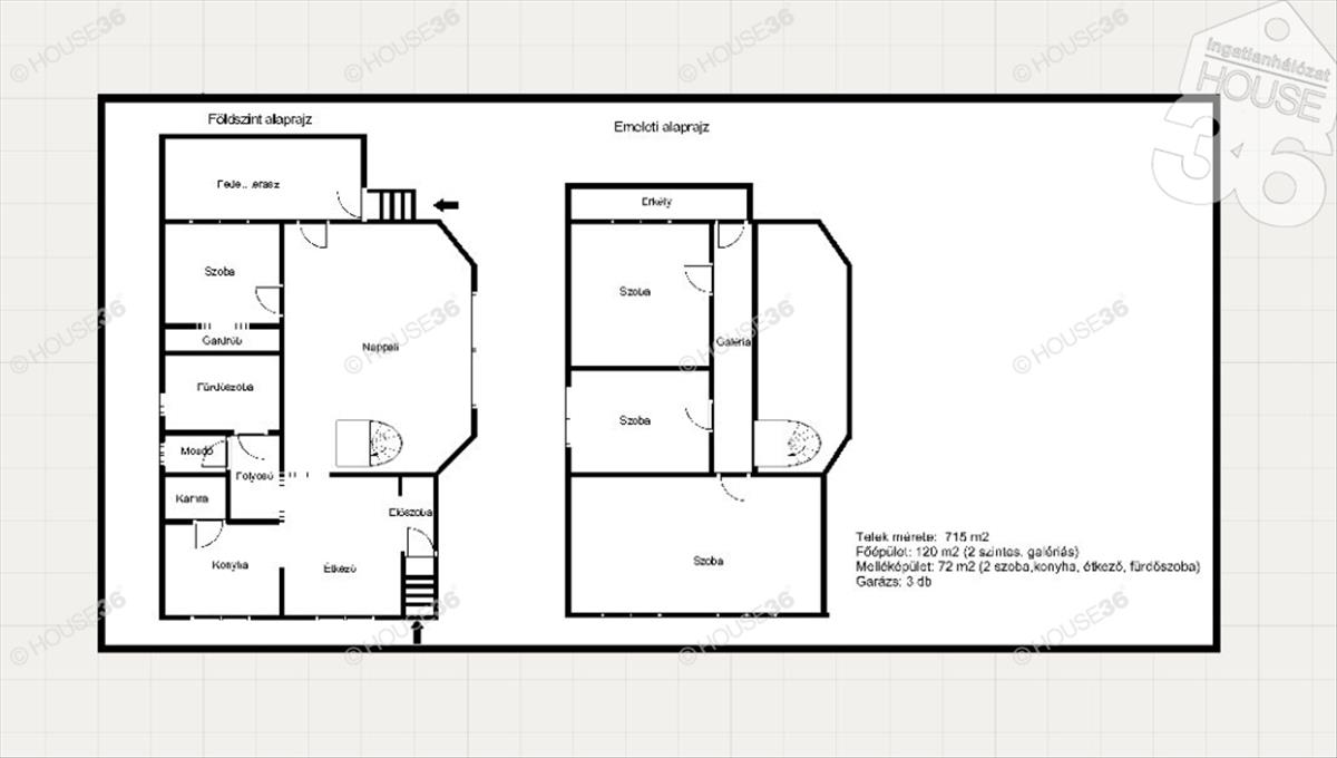
- Alapterület:192 m2
- Telekterület:715 m2
- Csere is:Nem
- Hirdető:Cég
- Élő videón megtekinthető:Nem
- Építés éve:1986
- Szobaszám:7
- Állapot:Jó állapotú
- Hány szintes az ingatlan:Földszintes
- Tetőtér:nincs megadva
- Komfortosság:nincs megadva
- Pince:nincs megadva
- Parkolási lehetőség:nincs megadva
- Fűtés:Gáz (cirko)
- Bútorozottság:nincs megadva
- Fényviszony:nincs megadva
- Tájolás:nincs megadva
- Kilátás:nincs megadva
- Internet:nincs megadva
- Klíma:nincs megadva
- Akadálymentesített:nincs megadva
- Energiatanúsítvány:nincs megadva
- Villany:nincs megadva
- Víz:nincs megadva
- Gáz:nincs megadva
- Csatorna:nincs megadva
- Kapcsolatfelvétel

S.Nagy Zsolt
+36-(70)-198-7819
Mondd meg a hirdetőnek, hogy a megveszLAK-on találtad a hirdetést.
Referencia szám: 3620479
Ingatlan hirdetés leírása
A közkedvelt Petőfivárosban kétgenerációs családi ház eladó!
Egyedi lehetőség családoknak és befektetőknek: galériás főépület + külön lakható melléképület 3 garázzsal és modern energiatakarékos megoldásokkal Kecskeméten a Petőfivárosban.
Főbb jellemzők:
715 m2-es telek, gondozott kerttel
Főépület (120 m2): nappali+4 szoba, étkező-konyha, kamra, 2 fürdőszoba, fedett terasz (20 m2) és erkély (5 m2)
Melléképület 72 m2: akár kiadásra is tökéletes
3 garázs: autóknak, tárolásra, műhelynek
Kényelem és energiahatékonyság:
7, 22 kWp napelemrendszer - alacsony rezsi
Gázfűtés, vegyes tüzelésű kazán, kandalló a nappaliban, valamint hűtő - fűtő klíma
30 cm tetőszigetelés hőtükörrel
új tetőszerkezet, új külső szigetelés, és színezés, műanyag nyílászárók
fúrt kút (42 m) a kert öntözéséhez
Lokáció: csendes, kis forgalmú utca, mégis közel mindenhez.
Per és tehermentes, azonnal költözhető!
Ne hagyja ki ezt a páratlan lehetőséget - legyen Ön az új tulajdonosa ennek a különleges, alacsony rezsijű családi háznak Kecskemét egyik legjobb városrészében!
Az iroda legfrissebb, aktuális kínálatát a house36 saját weboldalán találja! FIX 3% lakáshitelre megvehető


