Eladó új építésű ház - Kecskemét
- INGYENES HIRDETÉS FELADÁS
Ingatlan adatai
- Eladó vagy kiadó:Eladó
- Település:Kecskemét
- Kategória:Ház
- Alkategória:Családi ház
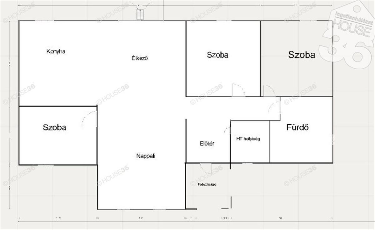
- Alapterület:92 m2
- Telekterület:472 m2
- Csere is:Nem
- Hirdető:Cég
- Élő videón megtekinthető:Nem
- Építés éve:2026
- Szobaszám:3
- Állapot:Új építésű
- Hány szintes az ingatlan:Földszintes
- Tetőtér:nincs megadva
- Komfortosság:nincs megadva
- Pince:nincs megadva
- Parkolási lehetőség:nincs megadva
- Fűtés:Hőszivattyús
- Bútorozottság:nincs megadva
- Fényviszony:nincs megadva
- Tájolás:nincs megadva
- Kilátás:nincs megadva
- Internet:nincs megadva
- Klíma:nincs megadva
- Akadálymentesített:nincs megadva
- Energiatanúsítvány:nincs megadva
- Villany:nincs megadva
- Víz:nincs megadva
- Gáz:nincs megadva
- Csatorna:nincs megadva
- Kapcsolatfelvétel

Kocsis Zsuzsanna
+36-(70)-795-9014
Mondd meg a hirdetőnek, hogy a megveszLAK-on találtad a hirdetést.
Referencia szám: 3621360
Hitel ajánlatok
Ingatlan hirdetés leírása
Új ház - gyors költözéssel!
Kecskeméten eladó egy április végén, május elején költözhető új családi ház.
-Könnyűszerkezetes
-okos ház
-beépített, gépesített konyha
-nagy nappali étkezővel
-3 hálószoba
-minőségi burkolatok
-92 m2 nettó lakótér
-hőszivattyú
-légkondi
-472 m2 telek
-hőszigetelt
A ház további előnyeit egy személyes találkozó alkalmával ismertetjük.
Megtekintés akár hét végén is.
A house36 kínálatában lévő összes ingatlannal kapcsolatban tudok felvilágosítást nyújtani.
Szolgáltatásaink kereső ügyfeleink részére ingyenesek.
Figyelem az adatlap megbízónktól kapott adatok alapján készült pontosságáért felelősséget vállalni nem tudunk.
Az iroda legfrissebb, aktuális kínálatát a house36 saját weboldalán találja! FIX 3% lakáshitelre megvehető
Tetszett ez az eladó Kecskeméti új építésű 3 szobás családi ház? Hívd fel a hirdetőt most, és tudj meg mindent erről az eladó családi házról! Ha gondolod nézelődj tovább az eladó ház Kecskemét oldal hirdetései között. Ennek az eladó háznak az ára 87000000 Ft és mivel az alapterülete 92 négyzetméter, ezért az átlagos négyzetméterára 945652 HUF/m2.
Az eladó házak menüpontban további hirdetések között is böngészhetsz. Ha van kedved, akkor böngészhetsz a Kocsis Zsuzsanna összes hirdetése között, vagy akár a/az HOUSE36 Ingatlanhálózat összes hirdetése között is.

