Eladó új építésű ház Kecskemét
| Kedvencbe | Megosztás | Árfigyelő |
| FIX 3% lakáshitelre megvehető | ||
| 137 990 000 HUF | ||
Ingatlan adatai
- Eladó vagy kiadó:Eladó
- Település:Kecskemét
- Kategória:Ház
- Alkategória:Családi ház
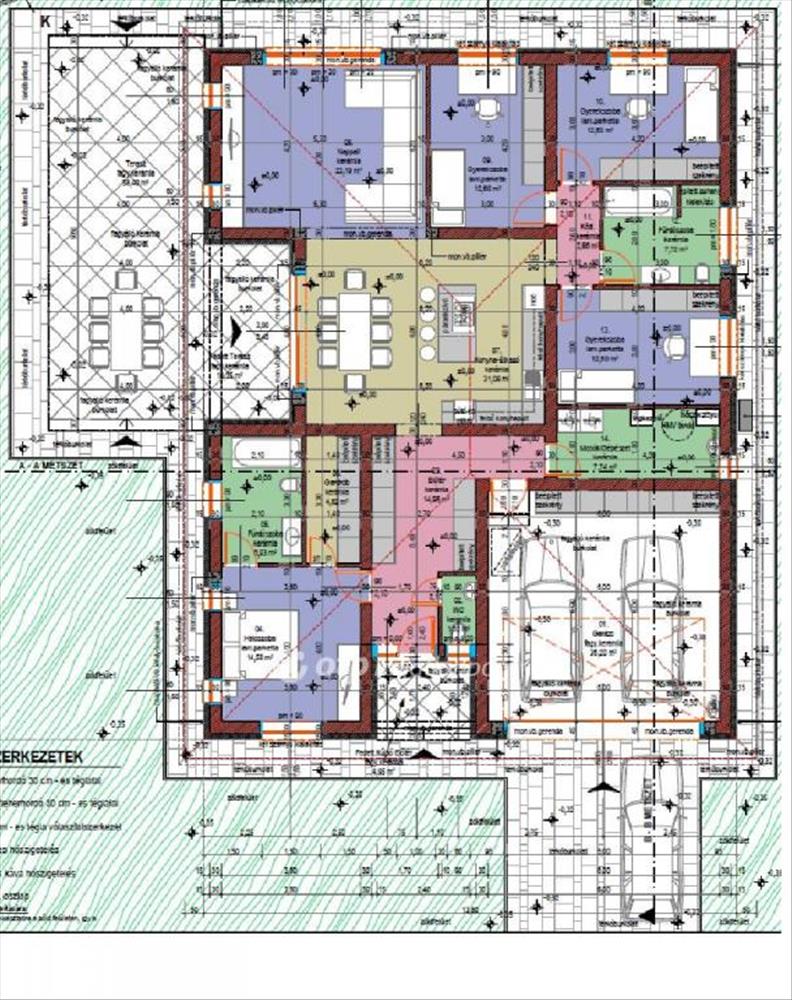
- Alapterület:189 m2
- Telekterület:2883 m2
- Csere is:Nem
- Hirdető:Cég
- Élő videón megtekinthető:Nem
- Építés éve:2023
- Szobaszám:4
- Állapot:Új építésű
- Hány szintes az ingatlan:Földszintes
- Tetőtér:nincs megadva
- Komfortosság:nincs megadva
- Parkolási lehetőség:Teremgarázsban
- Fűtés:Egyéb
- Bútorozottság:nincs megadva
- Fényviszony:Napfényes
- Tájolás:nincs megadva
- Kilátás:nincs megadva
- Internet:nincs megadva
- Akadálymentesített:nincs megadva
- Energiatanúsítvány:nincs megadva
- Villany:Telken belül
- Víz:Nincs
- Gáz:nincs megadva
- Csatorna:nincs megadva
- Üzenetküldés
- Hívás

Kissné Szirtes Anna
Mondd meg a hirdetőnek, hogy a megveszLAK-on találtad a hirdetést.
Referencia szám: M252120

Hitel ajánlat
Ingatlan hirdetés leírása
Eladó Ház, Kecskemét
Bács-Kiskun vármegye Kecskemét Felsőszéktón, 189, 3 m2-es új építésű téglaház, 48, 75 m2-es részben fedett terasszal, 36, 2 m2-es garázzsal kiváló műszaki tartalommal kulcsrakész állapotban eladó. Konyha-étkező, 4 szoba, nappali, 2 fürdőszoba, wc külön helyiségben, háztartási helyiség, előtér, közlekedő és gardrób kerül kialakításra. Az otthon melegét prémium kategóriás levegő-víz rendszerű Panasonic típusú hőszivattyú biztosítja, padlófűtésen keresztül.Műszaki tartalom: Porotherm 30-as tégla, 15 cm-es grafitos homlokzati szigetelés, betonfödém, ácsolt tetőszerkezet, 30 cm-es födémszigetelés, választható színű Bramac tetőcserép, napelem- és riasztó előkészítés. Szaniterek 500 ezer Ft-ig, bejárati ajtó 200 ezer Ft-ig, belső ajtók 100 ezer Ft-ig, hidegburkolatok 6 ezer Ft/m2, melegburkolatok 5 ezer Ft/m2 értékben választhatóak.
Ne maradjon le róla, vegye igénybe az 5% ÁFA-visszatérítést, CSOK támogatást, államilag támogatott lakáshitelt. Teljes körű és díjmentes banki termékek ügyintézésével állunk rendelkezésére sorban állás nélkül! Megtekintés miatt hívjon bizalommal.
Referencia szám: m252120 FIX 3% lakáshitelre megvehető

