Eladó jó állapotú ház - Kecskemét
- INGYENES HIRDETÉS FELADÁS
Ingatlan adatai
- Eladó vagy kiadó:Eladó
- Település:Kecskemét
- Kategória:Ház
- Alkategória:Családi ház
- Alapterület:165 m2
- Telekterület:504 m2
- Csere is:Nem
- Hirdető:Cég
- Élő videón megtekinthető:Nem
- Építés éve:1990
- Szobaszám:6 + 1 fél
- Állapot:Jó állapotú
- Hány szintes az ingatlan:2 szintes
- Tetőtér:nincs megadva
- Komfortosság:nincs megadva
- Pince:nincs megadva
- Parkolási lehetőség:Udvaron
- Fűtés:Gáz (cirko)
- Bútorozottság:nincs megadva
- Fényviszony:Napfényes
- Tájolás:nincs megadva
- Kilátás:nincs megadva
- Internet:nincs megadva
- Klíma:Van
- Akadálymentesített:nincs megadva
- Energiatanúsítvány:nincs megadva
- Villany:Telken belül
- Víz:Telken belül
- Gáz:Telken belül
- Csatorna:nincs megadva
- Kapcsolatfelvétel

Király Petra
+36-(20)-415-8833
Mondd meg a hirdetőnek, hogy a megveszLAK-on találtad a hirdetést.
Referencia szám: M304143
Hitel ajánlatok
Ingatlan hirdetés leírása
Eladó Ház, Kecskemét
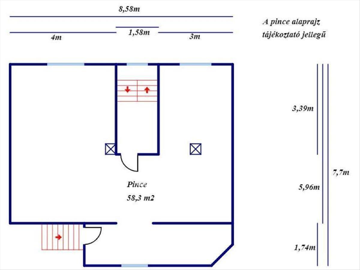
Bács-Kiskun vármegye, Kecskemét, Máriaváros részen 109 m2 hasznos alapterületű kétszintes családi ház 58 m2 pincével, garázzsal és egy különálló épületben kialakított 42 m2 nagyságú lakás saját garázzsal, összesen 252 m2 telekrésszel, 504 m2 osztatlan közös tulajdonú telken eladó. Az ingatlan tulajdonosai használati megosztási megállapodással rendelkeznek, a két lakóépület külön bejárása megoldott. a tégla építésű összkomfortos kétrendbeli családi ház a városrész csendes kertvárosi lakóövezetében, két aszfaltozott út által határolt saroktelken helyezkedik el, ennek megfelelően a garázsok is két utcáról külön közelíthetőek meg. a kétszintes ház földszintjén egy nappali, egy szoba, egy félszoba, egy konyha, egy kamra, egy fürdőszoba, egy WC-helyiség és két közlekedő kapott helyet. Az emeleti részen a közlekedőből nyíló két szobát, egy fürdőszoba-WC helyiséget, egy gardrób helyiséget és egy 8 m2-es erkélyt találunk. a szobák laminált padló-, a többi helyiség járólap borítást kaptak. a nyílászárók és a bejárati ajtók újracserélt műanyagok, az ablakok hőszigetelt üvegezésűek, redőnnyel ellátottak, a belső ajtók jó állapotú fa szerkezetűek. a családi ház beton alapon tégla falazattal, beton födémmel, hőszigetelt homlokzattal, a tető fa szerkezeten beton héjazattal készült. Az otthon melegét és melegvíz ellátását Bosch kombi gáz-cirkó kazán biztosítja, radiátoros hőleadással, alternatív fűtésként az emeleten gázkonvektor is rendelkezésre áll. Az épület alagsorában egy belső és egy külső lejárattal rendelkező, több részre osztott 58 m2-es száraz pince található. a ház mellett közvetlenül egy 13 m2-es garázs kapott helyet. a telekrészen a földszinti különálló lakóépületben egy nappali, egy szoba, egy konyha, egy fürdőszoba, egy WC-helyiség és egy garázs kapott helyet. Ez az épület is tégla szerkezetű, a villany- és a vízellátás rendszerének kiépítése új, fűtése hőszivattyús klímával és fali panelekkel készült, valamint az új tetőszerkezet antracit cserepezést kapott. Az udvar rendezett, körbekerített, kapubejáró a gépjárművek számára két utcáról megoldott.
Az ingatlan közelében néhány száz méteren belül minden megtalálható: többféle munkalehetőség, élelmiszerbolt, Spar, Lidl, iskola, óvoda, posta, bank, gyógyszertár, egészségügyi intézmény. Az ingatlan üres, birtokba adása teljes vételár kifizetését követően azonnal lehetséges.
A hirdetés tájékoztató jellegű, az ingatlanról pontos adatokat a megtekintést követően a tulajdonos által elmondottak alapján tudunk garantálni.
A vásárlás finanszírozásában az OTP kedvezőbb kamatozású hitelkonstrukcióival, CSOK Plusz támogatott hitel lehetőségével, Babaváró kölcsön és egyéb banki termékek széles kínálatával tudunk segíteni. Az adásvételi szerződés lebonyolításához korrekt ügyvédi közreműködést tudunk ajánlani. Eladó ingatlanokat keresünk meglévő partnereink számára! Amennyiben felkeltettem érdeklődését, hívjon bizalommal!
Érdeklődni : Király Petra 06204158833
Referencia szám: m304143-ml FIX 3% lakáshitelre megvehető
Tetszett ez az eladó Kecskeméti jó állapotú 6 egész és 1 fél szobás családi ház? Hívd fel a hirdetőt most, és tudj meg mindent erről az eladó családi házról! Ha gondolod nézelődj tovább az eladó ház Kecskemét oldal hirdetései között. Ennek az eladó háznak az ára 98000000 Ft és mivel az alapterülete 165 négyzetméter, ezért az átlagos négyzetméterára 593939 HUF/m2.
Az eladó házak menüpontban további hirdetések között is böngészhetsz. Ha van kedved, akkor böngészhetsz a Király Petra összes hirdetése között, vagy akár a/az OTPip Kecskemét Nagykőrösi utca 13 - OTP Ingatlanpont Iroda összes hirdetése között is.

