Eladó jó állapotú ház Kecskemét
| Kedvencbe | Megosztás | Árfigyelő |
| Kedvezményes lakáshitel ajánlatok | ||
| 169 000 000 HUF | ||
Ingatlan adatai
- Eladó vagy kiadó:Eladó
- Település:Kecskemét
- Kategória:Ház
- Alkategória:Családi ház
- Alapterület:210 m2
- Telekterület:252 m2
- Csere is:Nem
- Hirdető:Cég
- Élő videón megtekinthető:Nem
- Építés éve:1975
- Szobaszám:6
- Állapot:Jó állapotú
- Hány szintes az ingatlan:Földszintes
- Tetőtér:nincs megadva
- Komfortosság:nincs megadva
- Parkolási lehetőség:nincs megadva
- Fűtés:Gáz
- Bútorozottság:nincs megadva
- Fényviszony:Napfényes
- Tájolás:ÉK
- Kilátás:nincs megadva
- Internet:nincs megadva
- Akadálymentesített:nincs megadva
- Energiatanúsítvány:nincs megadva
- Villany:nincs megadva
- Víz:nincs megadva
- Gáz:nincs megadva
- Csatorna:nincs megadva
- Üzenetküldés
- Hívás

Referencia szám: HZ039485

Hitel ajánlat
Ingatlan hirdetés leírása
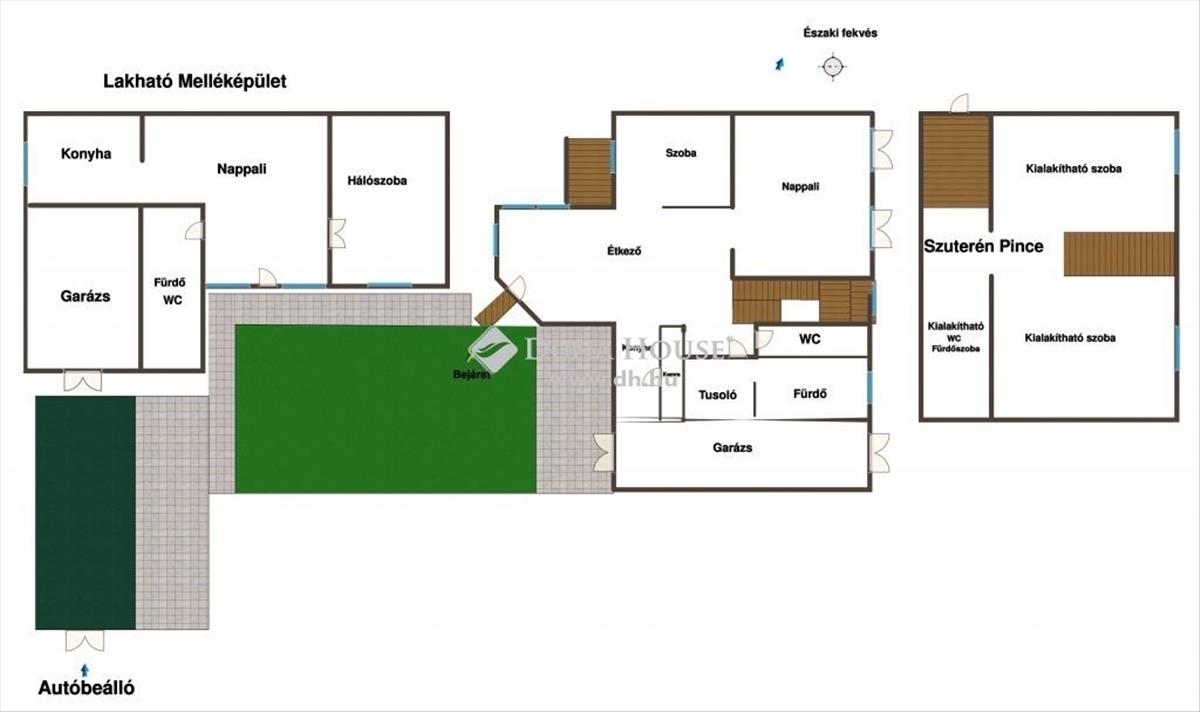
Eladó ház, Kecskemét
Ez az ingatlan Máriavárosban található, és különleges lehetőséget kínál, hiszen két ház található egy telken. Ideális választás lehet kétgenerációs otthonként, ügyvédi irodaként, fogászati rendelőként, vagy akár kis üzletként. Az ingatlan befektetésre is tökéletes, hiszen sokféle célra hasznosítható, és a környék infrastruktúrája is kedvező. Főbb jellemzők:Elhelyezkedés: Máriaváros, egy jól megközelíthető, fejlődő városrész. Két ház egy telken: Külön bejáratokkal, így akár külön funkciókra is használható. Készültségi szint: Az ingatlan 90%-ban kész, de az eladó birtokba vétel előtt 100%-ban befejezi a munkálatokat, a hirdetett vételár tartalmazza a teljes befejezést. Befektetési potenciál: Az ingatlanpiac stabil növekedést mutat a térségben, így hosszú távon is értékálló befektetés lehet. a két ház egy telken lehetőséget ad arra, hogy akár különálló lakóegységekként, akár üzleti célokra hasznosítsák az ingatlant. Ha további részletekre van szüksége vagy szeretné megnézni, keressen bizalommal.A teljes Duna House ingatlan kínálatával állok rendelkezésére. Keressen bizalommal. Hitel.hu - Hasonlítsa össze a bankok lakáshitel ajánlatait

