Eladó jó állapotú ház - Kecskemét
- INGYENES HIRDETÉS FELADÁS
Ingatlan adatai
- Eladó vagy kiadó:Eladó
- Település:Kecskemét
- Kategória:Ház
- Alkategória:Családi ház
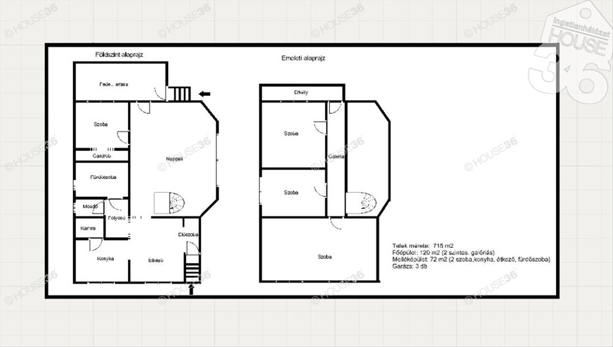
- Alapterület:192 m2
- Telekterület:715 m2
- Csere is:Nem
- Hirdető:Cég
- Élő videón megtekinthető:Nem
- Építés éve:1986
- Szobaszám:7
- Állapot:Jó állapotú
- Hány szintes az ingatlan:Földszintes
- Tetőtér:nincs megadva
- Komfortosság:nincs megadva
- Pince:nincs megadva
- Parkolási lehetőség:Garázsban
- Fűtés:Gáz (cirko)
- Bútorozottság:nincs megadva
- Fényviszony:Jó
- Tájolás:nincs megadva
- Kilátás:nincs megadva
- Internet:nincs megadva
- Klíma:nincs megadva
- Akadálymentesített:nincs megadva
- Energiatanúsítvány:nincs megadva
- Villany:Van
- Víz:Van
- Gáz:Van
- Csatorna:Van
- Kapcsolatfelvétel

Dakó Ferenc András
+36-(70)-608-6030
Mondd meg a hirdetőnek, hogy a megveszLAK-on találtad a hirdetést.
Referencia szám: 3620479
Ingatlan hirdetés leírása
A közkedvelt Petőfivárosban kétgenerációs családi ház eladó!
Egyedi lehetőség családoknak és befektetőknek: galériás főépület + külön lakható melléképület 3 garázzsal és modern energiatakarékos megoldásokkal Kecskeméten a Petőfivárosban.
Főbb jellemzők:
715 m2-es telek, gondozott kerttel
Főépület (120 m2): nappali+4 szoba, étkező-konyha, kamra, 2 fürdőszoba, fedett terasz (20 m2) és erkély (5 m2)
Melléképület 72 m2: akár kiadásra is tökéletes
3 garázs: autóknak, tárolásra, műhelynek
Kényelem és energiahatékonyság:
7, 22 kWp napelemrendszer - alacsony rezsi
Gázfűtés, vegyes tüzelésű kazán, kandalló a nappaliban, valamint hűtő - fűtő klíma
30 cm tetőszigetelés hőtükörrel
új tetőszerkezet, új külső szigetelés, és színezés, műanyag nyílászárók
fúrt kút (42 m) a kert öntözéséhez
Lokáció: csendes, kis forgalmú utca, mégis közel mindenhez.
Per és tehermentes, azonnal költözhető!
Ne hagyja ki ezt a páratlan lehetőséget - legyen Ön az új tulajdonosa ennek a különleges, alacsony rezsijű családi háznak Kecskemét egyik legjobb városrészében!
Figyelem, az adatlap kapott adatok alapján készült, pontosságáért felelősséget nem tudunk vállalni.
A tulajdonos kérésére az ingatlan bemutatása egy személyes konzultáció után történik, ahol részletes tájékoztatást kaphat az ingatlan paramétereiről és egyéb kényelmi szolgáltatásairól.
Amennyiben vásárlásához el kell adnia saját ingatlanát, szívesen segítek, forduljon hozzám bizalommal!
129900000 Ft
Az iroda legfrissebb, aktuális kínálatát a house36 saját weboldalán találja! FIX 3% lakáshitelre megvehető


