Eladó újszerű állapotú ház Kecskemét
| Kedvencbe | Megosztás | Árfigyelő |
| Kedvezményes lakáshitel ajánlatok | ||
| 165 000 000 HUF | ||
Ingatlan adatai
- Eladó vagy kiadó:Eladó
- Település:Kecskemét
- Kategória:Ház
- Alkategória:Családi ház
- Alapterület:207 m2
- Telekterület:2878 m2
- Csere is:Nem
- Hirdető:Cég
- Élő videón megtekinthető:Nem
- Építés éve:2014
- Szobaszám:5
- Állapot:Újszerű, kitűnő
- Hány szintes az ingatlan:Földszintes
- Tetőtér:nincs megadva
- Komfortosság:nincs megadva
- Pince:Van
- Parkolási lehetőség:Garázsban
- Fűtés:Gáz (cirko)
- Bútorozottság:nincs megadva
- Fényviszony:Napfényes
- Tájolás:DNY
- Kilátás:nincs megadva
- Internet:nincs megadva
- Klíma:Van
- Akadálymentesített:nincs megadva
- Energiatanúsítvány:nincs megadva
- Villany:Van
- Víz:Van
- Gáz:Van
- Csatorna:Van
- Üzenetküldés
- Hívás

Referencia szám: HZ085585

Hitel ajánlat
Ingatlan hirdetés leírása
Eladó ház, Kecskemét
Eladásra kínálunk egy különleges, 2014-ben épült családi házat Kecskeméten, amely minden részletében a minőséget, igényességet és az átgondolt tervezést képviseli.A ház betonút mellett, csendes, rendezett környezetben helyezkedik el, egy 2878 m²-es, parkosított telken, ahol a zöld növényzet, az öntözőrendszerrel gondozott kert és a tágas terek azonnal magával ragadják az embert.
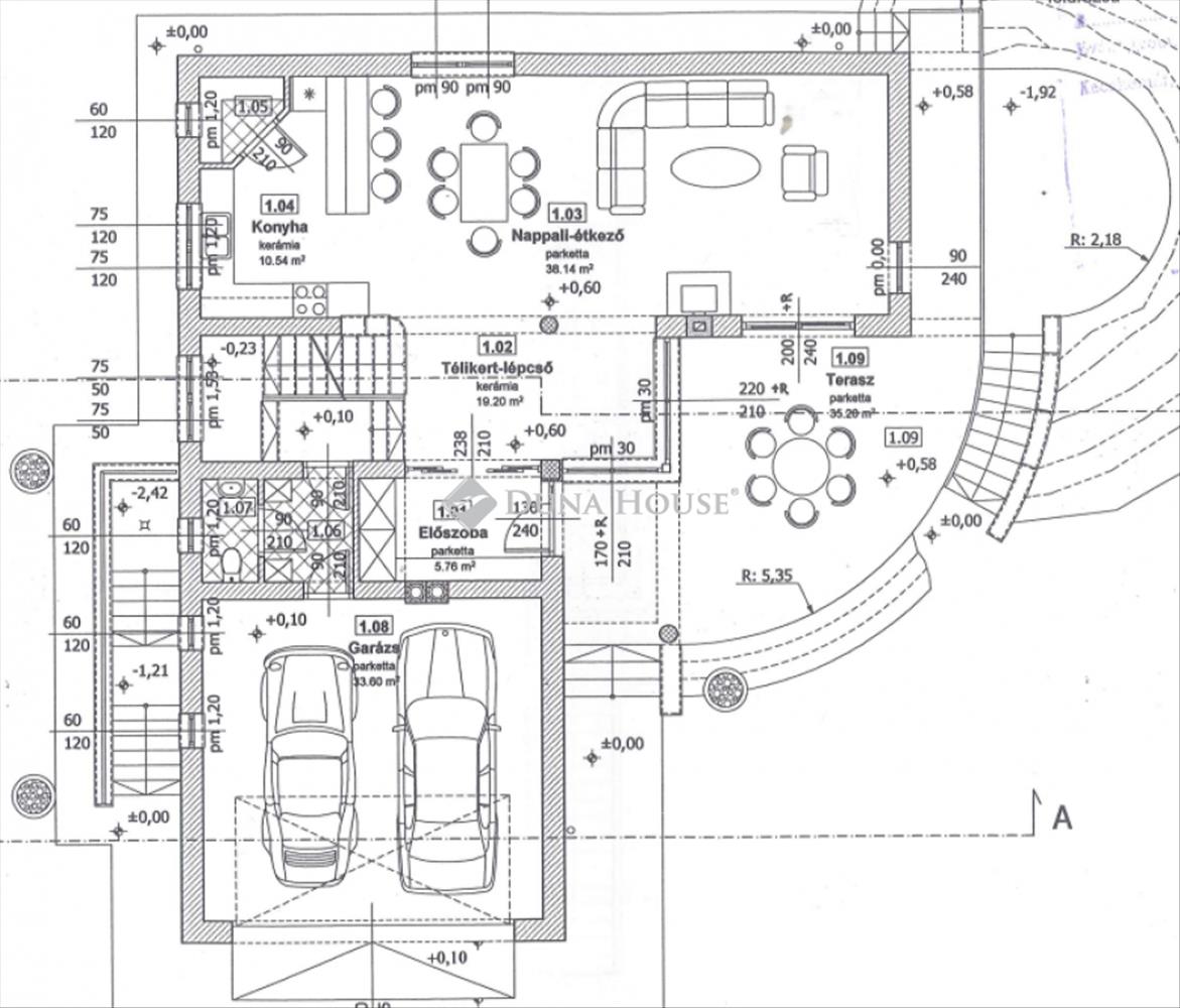
A földszinti lakótér (81 m²) központi eleme a napfényes nappali és étkező, amelyhez közvetlenül kapcsolódik a dupla garázs (34 m2), egy praktikus előtér és vendég toalett.
A tetőtér (94 m2) egyedi megoldása két eltérő padlószintje nemcsak különleges hangulatot, hanem kiváló térkihasználást is biztosít:
az alsó szinten két hálószoba, toalett és háztartási helyiség,
a felső szinten hálószoba, fürdőszoba és egy hangulatos közösségi tér várja új tulajdonosait.
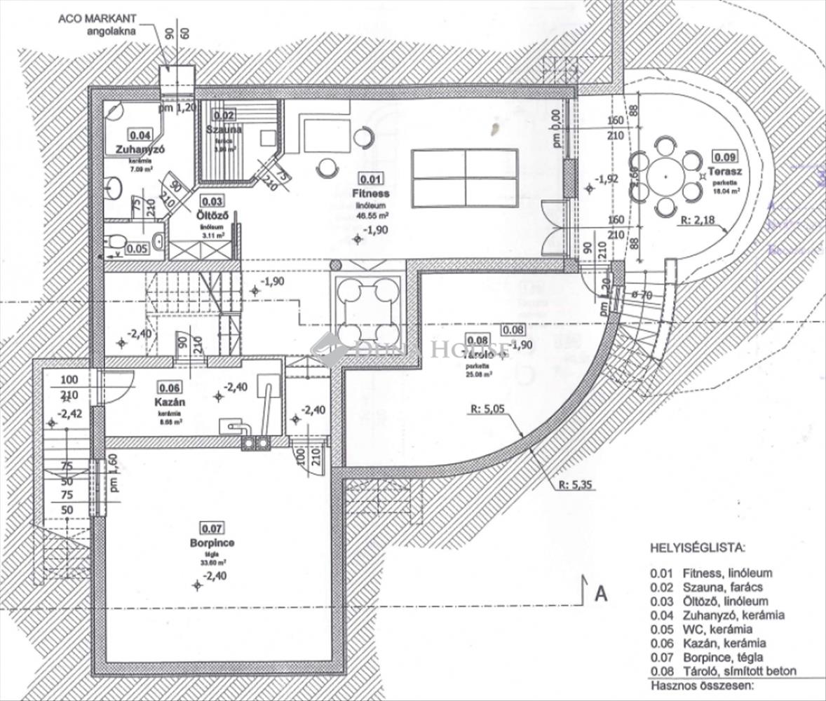
A pincetér (129 m2) jelentős része lakótér jellegű, mely teraszkapcsolattal rendelkezik így akár önálló lakrésznek, fitneszteremnek, irodának vagy kozmetikának is ideális. a szinten fürdőszoba és mosdó is található, így teljes értékű élettérként funkcionál.
Az 53 m² összterületű teraszok a gondosan ápolt kertre néznek, igazi nyugalomszigetet teremtve. a ház szigetelt, riasztóval, klímával, hőszigetelt fa nyílászárókkal felszerelt, építése során pedig természetes, időtálló anyagokat használtak.
Ez az otthon tökéletes választás azoknak, akik minőségi kivitelezésű, akár többgenerációs családi házat keresnek Kecskemét kedvelt térségében, ahol a nyugalom és az elegancia kéz a kézben jár.
Az ingatlan hitelezhető (csok+), kifüggesztés nem szükséges. Hitel.hu - Hasonlítsa össze a bankok lakáshitel ajánlatait

