Eladó új építésű ház - Kecskemét
- INGYENES HIRDETÉS FELADÁS
Ingatlan adatai
- Eladó vagy kiadó:Eladó
- Település:Kecskemét
- Kategória:Ház
- Alkategória:Családi ház
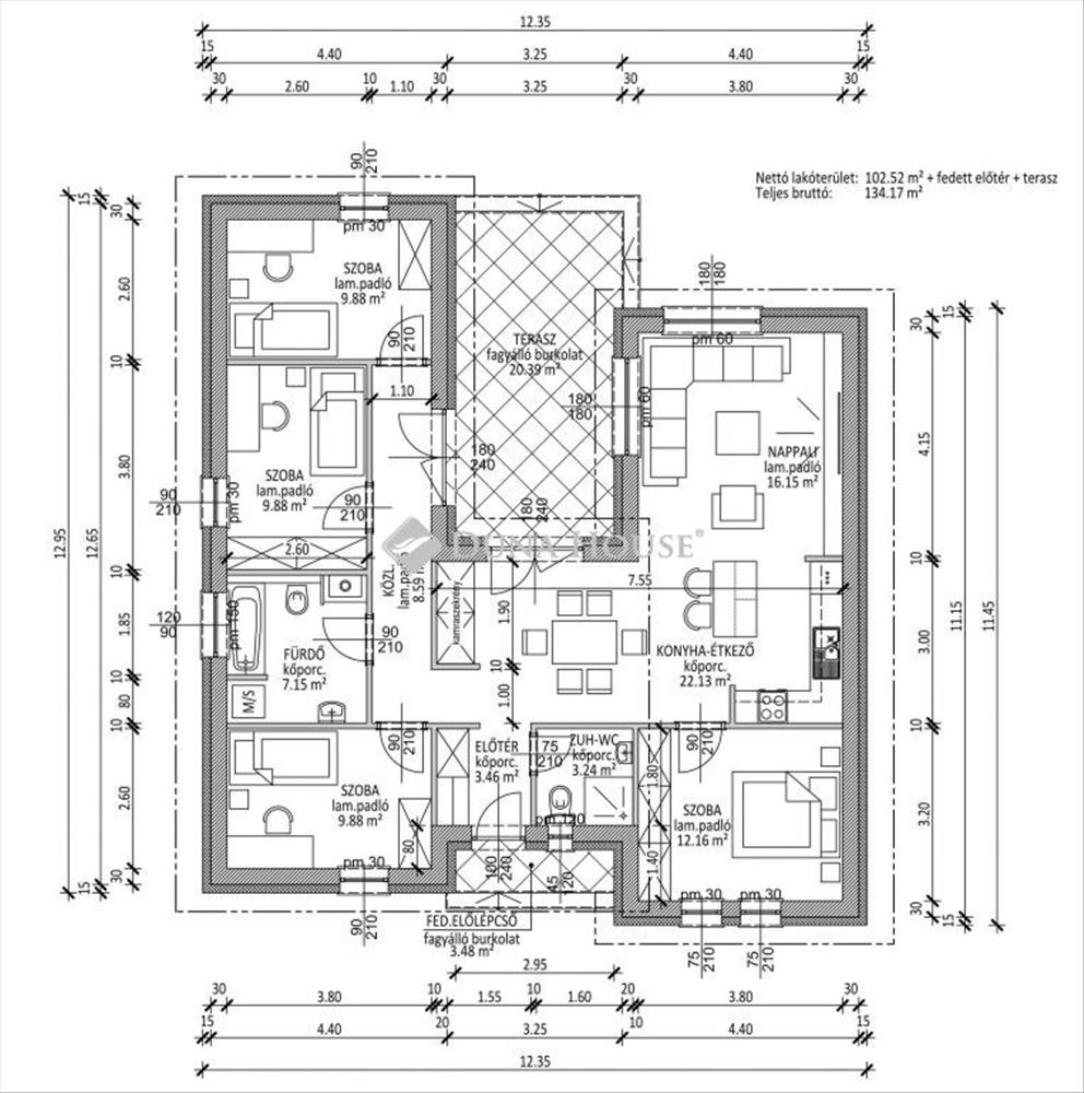
- Alapterület:102 m2
- Telekterület:401 m2
- Csere is:Nem
- Hirdető:Cég
- Élő videón megtekinthető:Nem
- Építés éve:2025
- Szobaszám:5
- Állapot:Új építésű
- Hány szintes az ingatlan:Földszintes
- Tetőtér:nincs megadva
- Komfortosság:nincs megadva
- Pince:nincs megadva
- Parkolási lehetőség:nincs megadva
- Fűtés:Hőszivattyús
- Bútorozottság:nincs megadva
- Fényviszony:Napfényes
- Tájolás:DNY
- Kilátás:nincs megadva
- Internet:nincs megadva
- Klíma:nincs megadva
- Akadálymentesített:nincs megadva
- Energiatanúsítvány:nincs megadva
- Villany:nincs megadva
- Víz:nincs megadva
- Gáz:nincs megadva
- Csatorna:nincs megadva
- Kapcsolatfelvétel

Kálmán Anikó
+36-(30)-348-8102
Mondd meg a hirdetőnek, hogy a megveszLAK-on találtad a hirdetést.
Referencia szám: HZ060975
Hitel ajánlatok
Ingatlan hirdetés leírása
Eladó ház, Kecskemét
Eladásra kínálunk egy új-építésű, hőszivattyúval felszerelt, kiváló műszaki tartalommal rendelkező, 102 m2-es családi házat. a telek mérete 401 m2, az ár pedig a telekkel együtt értendő, az ár a teraszt nem tartalmazza. a tervek elkészültek, a kivitelezés idő pedig garantált 10 hónap, melyet a kivitelező kötbér ellenében is vállal! a projekt kivitelezői előfinanszírozással is megvásárolható (nem kell előre fizetni), tehát mindig az elkészült, átadott ütem után kell fizetni, illetve a kivitelező szerződésben vállalja, hogy ár garanciát vállal az építményre. a családi ház nettó alapterülete 91 m2, amely tartalmaz:– 4 szobát (amerikai konyha-nappali-étkező + 3 hálószoba);– 1 fürdőszobát– 1 zuhanyzó + wc– és egy előszobát. Műszaki tartalom:– Teherhordó falazat: Wienerberger Porotherm Profi 30 X-Therm tégla– Homlokzati hőszigetelés: 15 cm– Tetőhéjazat választható: Bramac Római Novo, Leier Toscana vagy Terrán Renova Plus tetőcserép választható színben– Külső nyílászárók: 3 réteg üvegezésű, prémium Gealan s9000 külső nyílászárók, 44 mm-es melegperemes üvegezéssel– Válaszfal: Wienerberger Porotherm 10 tégla válaszfal– Hidegburkolat választható: 8500 Ft / m2- Melegburkolat választható: 8000 Ft / m2- Szaniterek választható: (kád, zuhanykabin, csaptelep stb. ) 700000Ft-ig- Bejárati ajtó választható: Colorplast rátétes intarziás inox betéttel- Teraszajtó: Dupla szárnyas- Beltéri ajtó: Borovi Szcília (cpl) választható színben- Gépészet: Bosch 6000 prémium levegő-víz hőszivattyú vizes padlófűtésselKözművek:– Villany: telek előtt– Csatorna: telek előtt– Víz: telken belülAz ár kulcsrakész állapotban történő átadással értendő, konyhabútor és lámpatestek nélkül!
További információ: +36303488102
Kálmán Anikó
Nemzetközi Értékesítő
Referencia szám: hz060975-ml FIX 3% lakáshitelre megvehető
Tetszett ez az eladó Kecskeméti új építésű 5 szobás családi ház? Hívd fel a hirdetőt most, és tudj meg mindent erről az eladó családi házról! Ha gondolod nézelődj tovább az eladó ház Kecskemét oldal hirdetései között. Ennek az eladó háznak az ára 89500000 Ft és mivel az alapterülete 102 négyzetméter, ezért az átlagos négyzetméterára 877451 HUF/m2.
Az eladó házak menüpontban további hirdetések között is böngészhetsz. Ha van kedved, akkor böngészhetsz a Kálmán Anikó összes hirdetése között, vagy akár a/az Duna House Kecskemét - Next Ingatlan, Balaton utca összes hirdetése között is.

