Eladó újszerű állapotú ház - Mikepércs
- INGYENES HIRDETÉS FELADÁS
Ingatlan adatai
- Eladó vagy kiadó:Eladó
- Település:Mikepércs
- Kategória:Ház
- Alkategória:Családi ház
- Alapterület:142 m2
- Telekterület:1000 m2
- Csere is:Nem
- Hirdető:Cég
- Élő videón megtekinthető:Nem
- Építés éve:2023
- Szobaszám:5
- Állapot:Újszerű, kitűnő
- Hány szintes az ingatlan:nincs megadva
- Tetőtér:nincs megadva
- Komfortosság:nincs megadva
- Pince:nincs megadva
- Parkolási lehetőség:nincs megadva
- Fűtés:Gáz (cirko)
- Bútorozottság:nincs megadva
- Fényviszony:nincs megadva
- Tájolás:K
- Kilátás:nincs megadva
- Internet:nincs megadva
- Klíma:nincs megadva
- Akadálymentesített:nincs megadva
- Energiatanúsítvány:nincs megadva
- Villany:Van
- Víz:Van
- Gáz:Van
- Csatorna:Van
- Kapcsolatfelvétel

Hriczuné Sápi Júlia
+36-(70)-461-9406
Mondd meg a hirdetőnek, hogy a megveszLAK-on találtad a hirdetést.
Hitel ajánlatok
Ingatlan hirdetés leírása
Mikepércs központjának közelében eladó egy 2023-ban épült, szi...
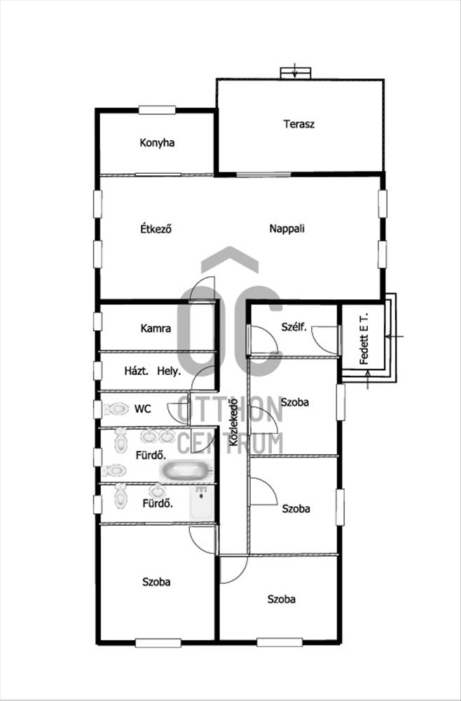
Mikepércs központjának közelében eladó egy 2023-ban épült, szinte új, nagyon szép állapotú, bruttó 125 m2-es, földszintes, nappali-amerikai konyha + 4 külön nyíló szobás, önálló, dupla komfortos családi ház, mely 1000 m2-es telken helyezkedik el. a telek adottságok lehető teszik a megosztását, így a későbbiekben eladható vagy beépíthető.
Az ingatlan étkezős-konyhás-nappalival, 4 szobával és 2 fürdőszobával 4 wc-vel rendelkezik, így rendkívűl ideális választás családok számára is. a tágas nappali világos és barátságos légkört teremt, amely tökéletes helyszíne a közös családi pillanatoknak. a ház prémium kivitelezésének köszönhetően nemcsak esztétikai élményt nyújt, hanem a fenntarthatóságra is nagy hangsúlyt fektet. Passzívház elvekhez közelinek tervezett otthonban gáz (cirko) fűtés és klímás hűtés biztosítja a kellemes hőmérsékletet egész évben.
Az épület kiváló minőségű anyagok felhasználásával készült, így garantálja az új lakók számára a tartósságot és az alacsony fenntartási költséget.
Az ingatlanhoz tartozik egy 17 négyzetméteres terasz, ahol a szabadban való pihenés és szórakozás élménye egyaránt garantált.
A beépített bútorok és szekrények, valamint a led hangulatvilágítás pedig a modern életvitel kényelmét szolgálja.
További tulajdonságai:
- 38 m2-es nappali-étkező-konyha
- 4 külön nyíló szoba, laminált parketta burkolattal
- 3 rétegű üveggel szerelt, hőszigetelt műanyag nyílászárók
- Porotherm 30 K tégla + 15 cm hőszigetelés, 40 cm födémszigetelés
- Bramac cserép héjazat
- Modern, gépesített konyhabútor, újszerű gépekkel
- Padlófűtés
- a fedett előtér mellett 17 m2-es hátsó terasz kapcsolódik a nappalihoz
- 2 nagy méretű fürdőszoba, igényes burkolatokkal, WC-vel, káddal és zuhanyzóval
- Külön wc kézmosóval
- Járható, pakolható padlástér
- Nappaliban kandalló beállítási lehetőség ( schiedel kémény)
- led lámpák és LED-es rejtett világítás
- Szuper alacsony rezsivel fenntartható
Egy otthon, ahova csak költöznie kell!
ENGEDJE el az építkezéssel járó nehézségeket, vásároljon teljesen kész családi házat kedvező ÁRON!
A környék ellátottsága kiváló, hiszen a közeli üzletek, iskolák és egészségügyi intézmények mindössze néhány percnyi távolságra találhatók.
Azoknak, akik szeretik a kertvárosi, barátságos környezetet, és fontos a belváros közelsége is.
Hívjon, és egyeztessünk időpontot a megtekintéshez!
Az ingatlanról teljes körű videó felvétel készült, a megtekintése érdekében weboldalunkon keresse a h513517 regisztrációs számon vagy keressen telefonon közvetlenül. FIX 3% lakáshitelre megvehető
Tetszett ez az eladó Mikepércsi újszerű állapotú 5 szobás családi ház? Hívd fel a hirdetőt most, és tudj meg mindent erről az eladó családi házról! Ha gondolod nézelődj tovább az eladó ház Mikepércs oldal hirdetései között. Ennek az eladó háznak az ára 115000000 Ft és mivel az alapterülete 142 négyzetméter, ezért az átlagos négyzetméterára 809859 HUF/m2.
Az eladó házak menüpontban további hirdetések között is böngészhetsz. Ha van kedved, akkor böngészhetsz a Hriczuné Sápi Júlia összes hirdetése között, vagy akár a/az Otthon Centrum Debrecen - Kálvin tér összes hirdetése között is.

