Eladó átlagos állapotú ház - Mogyoród
- INGYENES HIRDETÉS FELADÁS
Ingatlan adatai
- Eladó vagy kiadó:Eladó
- Település:Mogyoród
- Kategória:Ház
- Alkategória:Családi ház
- Alapterület:110 m2
- Telekterület:509 m2
- Csere is:Nem
- Hirdető:Cég
- Élő videón megtekinthető:Nem
- Építés éve:1963
- Szobaszám:4
- Állapot:Átlagos állapotú
- Hány szintes az ingatlan:Földszintes
- Tetőtér:nincs megadva
- Komfortosság:nincs megadva
- Pince:nincs megadva
- Parkolási lehetőség:Garázsban
- Fűtés:Gáz (cirko)
- Bútorozottság:nincs megadva
- Fényviszony:nincs megadva
- Tájolás:nincs megadva
- Kilátás:nincs megadva
- Internet:nincs megadva
- Klíma:nincs megadva
- Akadálymentesített:nincs megadva
- Energiatanúsítvány:nincs megadva
- Villany:Van
- Víz:Van
- Gáz:Van
- Csatorna:Van
- Kapcsolatfelvétel

Nagy Barbara
+36-(70)-490-7364
Mondd meg a hirdetőnek, hogy a megveszLAK-on találtad a hirdetést.
Hitel ajánlatok
Ingatlan hirdetés leírása
Eladásra kínálok Mogyoród központi részén, egy önálló csaladi ...
Eladásra kínálok Mogyoród központi részén, egy önálló csaladi házat.
A ház 1940es években mogyoródi kőből épült, így rendkívül stabil szerkezettel rendelkezik, majd téglából 1960-ban hozzá építettek. Tető cseréppel borított.
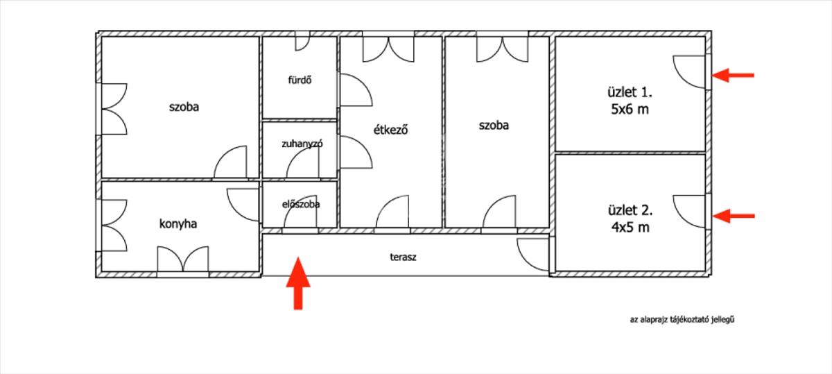
Az utcafronti részen jelenleg 2 külön bejaratú üzlethelyiség található, melyeknek közös mosdójuk van.
A ház udvar felöli bejarattal rendelkező, hátsó része gyakorlatilag 2 szoba, konyha, előszoba, fürdőszoba, plusz külön zuhanyzó, kamra es egy fedett terasz.
A lakóház utan az udvarban tároló es garazs is van.
Rendezett, 510 nm nagyságú telek!
Átalakítási tippek:
- ház alkalmas 5 szoba kialakítására is, avagy az étkezőt egybevonva az egyik szobával, és az üzleteket szobává alakítva, egy modern 3 hálószoba, plusz nappalis elosztast is ki lehet alakítani!
- Ezen túl még 2 kényelmes lakás is kialakitható, 2 külön bejárattal.
Egyszóval rengeteg lehetőséget, és elérhető aron nyujt ez a nagyszerű ház!
Hivjon bizalommal, tekintsük meg együtt! FIX 3% lakáshitelre megvehető

