Eladó átlagos állapotú ház - Nagyvenyim
- INGYENES HIRDETÉS FELADÁS
Ingatlan adatai
- Eladó vagy kiadó:Eladó
- Település:Nagyvenyim
- Kategória:Ház
- Alkategória:Családi ház
- Alapterület:64 m2
- Telekterület:960 m2
- Csere is:Nem
- Hirdető:Cég
- Élő videón megtekinthető:Nem
- Építés éve:1970
- Szobaszám:2
- Állapot:Átlagos állapotú
- Hány szintes az ingatlan:Földszintes
- Tetőtér:nincs megadva
- Komfortosság:nincs megadva
- Pince:nincs megadva
- Parkolási lehetőség:Beállóban
- Fűtés:Elektromos
- Bútorozottság:nincs megadva
- Fényviszony:nincs megadva
- Tájolás:nincs megadva
- Kilátás:nincs megadva
- Internet:nincs megadva
- Klíma:nincs megadva
- Akadálymentesített:nincs megadva
- Energiatanúsítvány:nincs megadva
- Villany:nincs megadva
- Víz:nincs megadva
- Gáz:nincs megadva
- Csatorna:nincs megadva
- Kapcsolatfelvétel

Mankovics Attila Pálné
+36-30-825-5836
Mondd meg a hirdetőnek, hogy a megveszLAK-on találtad a hirdetést.
Hitel ajánlatok
Ingatlan hirdetés leírása
Nagyvenyimen kínálok eladásra egy takaros, rendezett paraszthá...
Nagyvenyimen kínálok eladásra egy takaros, rendezett parasztházat, mely tágas telken fekszik.
A ház 64 m2, a telek mérete 960 m2.
Az épület falazata vegyes, főként vályog. a tető fagerendás szerkezetű, cseréptetővel borított.
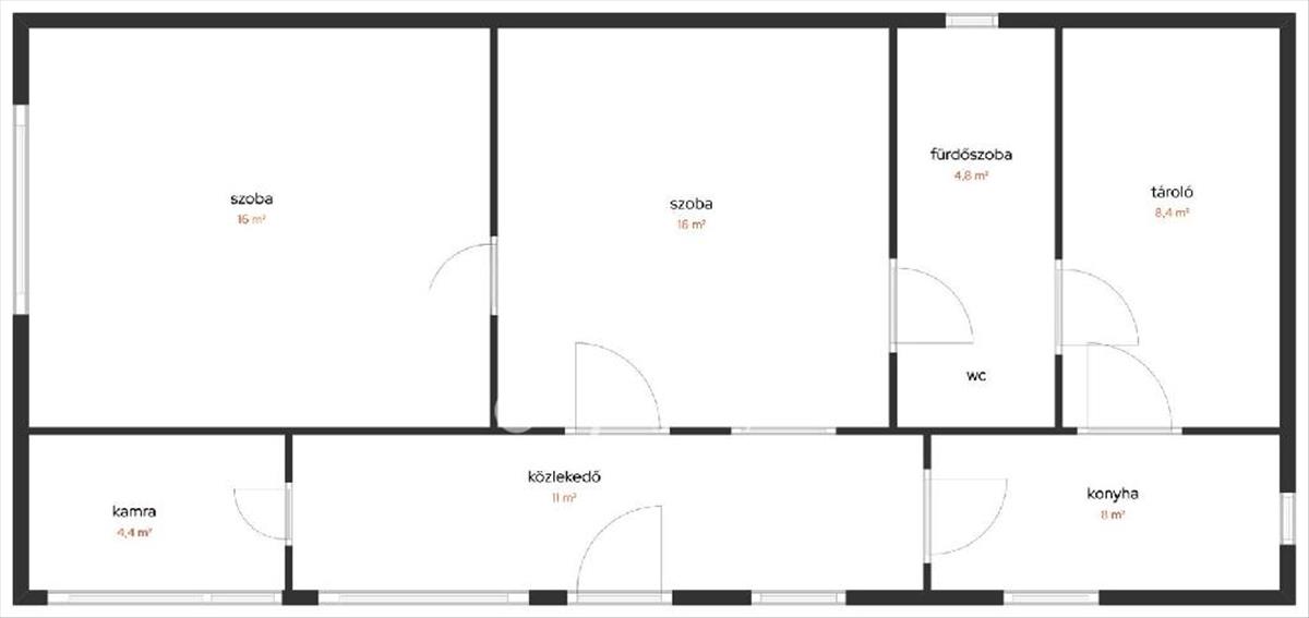
A ház parasztház jellegű. Hosszú, világos tornácról lépünk be az egyik szobába, melyből balra nyílik a másik szoba, jobbra pedig a fürdőszoba wc-vel, és egy tárolóhelyiség található. a konyha a tornác egyik végén, a kamra a másik végén helyezkedik el.
A falak vastagok, jó hőszigetelésűek.
A belső szobában fapadló, a többi helyiségben műanyag padlóburkolat található.
A fűtésről a középső szobában felszerelt hűtő-fűtő klíma, illetve fatüzelésű kályha gondoskodik. a ház fűtése korszerűsíthető, igény szerint.
A házban még nem történt villamossági felújítás.
A házhoz tartozik egy 11 m2-es tároló, beton és kis részben tégla falazattal. Az építmény garázsként is funkcionálhat, hiszen akna is kialakításra került.
Az ingatlan felújítandó, de kis fantáziával egy bájos otthon varázsolható belőle.
A telek gondosan ki lett takarítva, tágas, napsütéses, rendezett és bekerített.
Az utca aszfaltos, a szomszédság békés.
Igény esetén, ingyenes pénzügyi tanácsadással, kedvezményes lakásvásárlási kölcsön teljes körű ügyintézésével, valamint ügyvédi közreműködés megszervezésével tudunk segítséget nyújtani.
Ha felkeltette érdeklődését az ingatlan, megtekintésért vagy bármilyen felmerülő kérdéssel kapcsolatban keressen bizalommal, akár hétvégén is. FIX 3% lakáshitelre megvehető
Tetszett ez az eladó Nagyvenyimi átlagos állapotú 2 szobás családi ház? Hívd fel a hirdetőt most, és tudj meg mindent erről az eladó családi házról! Ha gondolod nézelődj tovább az eladó ház Nagyvenyim oldal hirdetései között. Ennek az eladó háznak az ára 28000000 Ft és mivel az alapterülete 64 négyzetméter, ezért az átlagos négyzetméterára 437500 HUF/m2.
Az eladó házak menüpontban további hirdetések között is böngészhetsz. Ha van kedved, akkor böngészhetsz a Mankovics Attila Pálné összes hirdetése között, vagy akár a/az Dunaföldvár Kossuth Lajos utca 8 - OTP Ingatlanpont Iroda összes hirdetése között is.

