Eladó jó állapotú ház - Pusztaszabolcs
- INGYENES HIRDETÉS FELADÁS
Ingatlan adatai
- Eladó vagy kiadó:Eladó
- Település:Pusztaszabolcs
- Kategória:Ház
- Alkategória:Családi ház
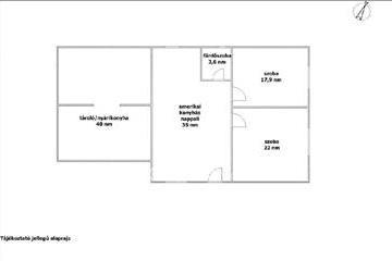
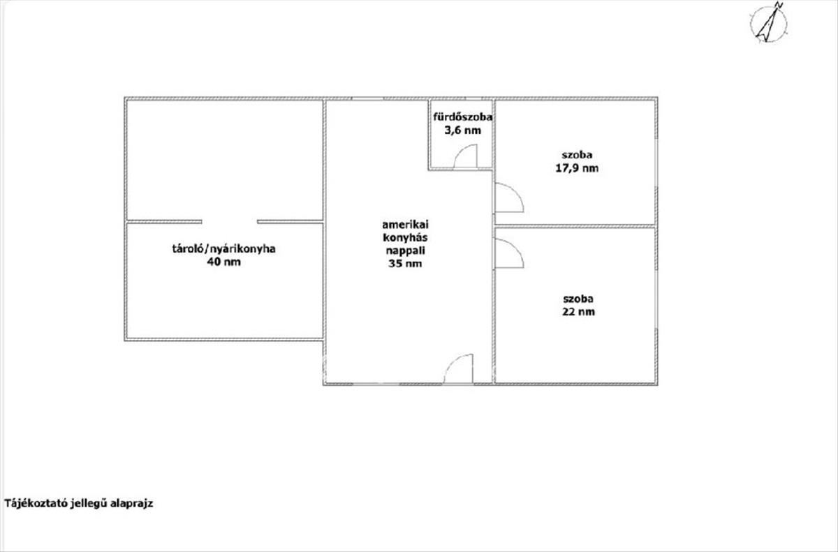
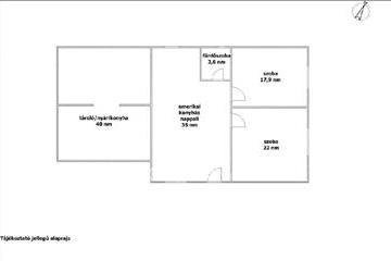
- Alapterület:113 m2
- Telekterület:550 m2
- Csere is:Nem
- Hirdető:Cég
- Élő videón megtekinthető:Nem
- Építés éve:1980
- Szobaszám:3
- Állapot:Jó állapotú
- Hány szintes az ingatlan:Földszintes
- Tetőtér:nincs megadva
- Komfortosság:nincs megadva
- Pince:nincs megadva
- Parkolási lehetőség:Utcán
- Fűtés:nincs megadva
- Bútorozottság:nincs megadva
- Fényviszony:nincs megadva
- Tájolás:nincs megadva
- Kilátás:nincs megadva
- Internet:nincs megadva
- Klíma:nincs megadva
- Akadálymentesített:nincs megadva
- Energiatanúsítvány:nincs megadva
- Villany:nincs megadva
- Víz:nincs megadva
- Gáz:nincs megadva
- Csatorna:nincs megadva
- Kapcsolatfelvétel

Darnai Henrietta
+36-20-487-4399
Mondd meg a hirdetőnek, hogy a megveszLAK-on találtad a hirdetést.
Hitel ajánlatok
Ingatlan hirdetés leírása
Fejér megye, Pusztaszabolcs 113 nm-es családi ház eladó. A fel...
Fejér megye, Pusztaszabolcs 113 nm -es családi ház eladó. a felújított, tégla falazatú lakóingatlan a település központjához közel egy 550 nm -es telken helyezkedik el. a tehermentes családi házban amerikai konyhás nappali, két tágas hálószoba és fürdőszoba található, valamint az ingatlanhoz tartozik egy hozzáépített 40 nm -es tároló(fele beszámítva a hasznos alapterületbe), mely több szoba kialakítására alkalmas, alatta pedig egy 30 nm -es pince található. a belső felújítás során cserélték a víz-és villanyvezetékeket, az összes nyílászárót műanyagra, az összes burkolatot, teljes aljzatcsere és aljzatszigetelés, mennyezetszigetelés, új gépesített konyhabútor. a meghirdetett ár tartalmazza a külső szigetelést is. a fűtésről új kombi gázkazán és új hűtő fűtő klíma gondoskodik. Séta távolságra a vasútállomás, boltok, gyógyszertár, orvosi rendelő, óvoda, iskola, játszótér, polgármesteri hivatal. Teljes körű ügyintézésben segítjük ügyfeleinket díjtalanul: CSOK igénylése, kedvezményes hitel mobil bankári szolgáltatással, adásvétel teljes lebonyolításával. FIX 3% lakáshitelre megvehető
Tetszett ez az eladó Pusztaszabolcsi jó állapotú 3 szobás családi ház? Hívd fel a hirdetőt most, és tudj meg mindent erről az eladó családi házról! Ha gondolod nézelődj tovább az eladó ház Pusztaszabolcs oldal hirdetései között. Ennek az eladó háznak az ára 61900000 Ft és mivel az alapterülete 113 négyzetméter, ezért az átlagos négyzetméterára 547788 HUF/m2.
Az eladó házak menüpontban további hirdetések között is böngészhetsz. Ha van kedved, akkor böngészhetsz a Darnai Henrietta összes hirdetése között, vagy akár a/az Gárdony Bóné Kálmán utca 12 - OTP Ingatlanpont Iroda összes hirdetése között is.

