Eladó jó állapotú ház - Pusztaszabolcs
- INGYENES HIRDETÉS FELADÁS
Ingatlan adatai
- Eladó vagy kiadó:Eladó
- Település:Pusztaszabolcs
- Kategória:Ház
- Alkategória:Családi ház
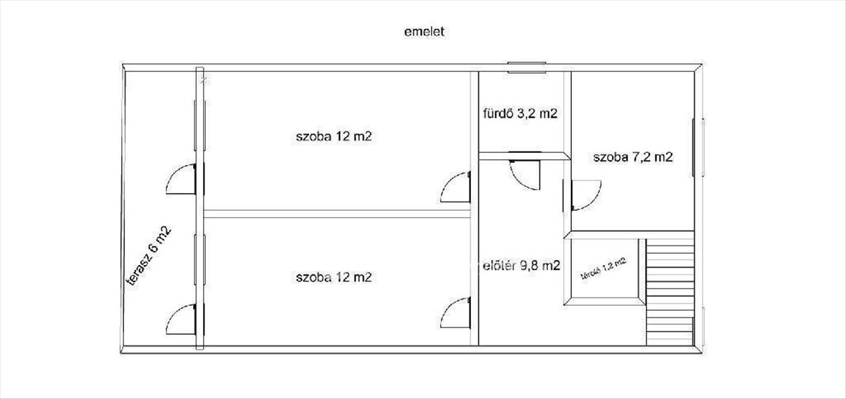
- Alapterület:98 m2
- Telekterület:1117 m2
- Csere is:Nem
- Hirdető:Cég
- Élő videón megtekinthető:Nem
- Építés éve:1978
- Szobaszám:3
- Állapot:Jó állapotú
- Hány szintes az ingatlan:2 szintes
- Tetőtér:nincs megadva
- Komfortosság:nincs megadva
- Pince:nincs megadva
- Parkolási lehetőség:Teremgarázsban
- Fűtés:Gáz (cirko)
- Bútorozottság:nincs megadva
- Fényviszony:Napfényes
- Tájolás:nincs megadva
- Kilátás:nincs megadva
- Internet:nincs megadva
- Klíma:nincs megadva
- Akadálymentesített:nincs megadva
- Energiatanúsítvány:nincs megadva
- Villany:Telken belül
- Víz:Telken belül
- Gáz:Telken belül
- Csatorna:nincs megadva
- Kapcsolatfelvétel

Marczi Aletta
+36-(70)-599-0385
Mondd meg a hirdetőnek, hogy a megveszLAK-on találtad a hirdetést.
Referencia szám: M317865
Hitel ajánlatok
Ingatlan hirdetés leírása
Eladó Ház, Pusztaszabolcs
Eladó otthonos családi ház Pusztaszabolcson, 1117 m2 es telekkel, kíváló elrendezéssel!
Pusztaszabolcs egyik csendes, teljesen aszfaltozott, rendezett utcájában eladó egy masszív, B30-as téglából épült, 1978-ban felhúzott, egy ütemben épített, folyamatosan karbantartott családi ház.
A ház körbejárható, délkeleti tájolású, nagy ablakfelületekkel, sok természetes fénnyel.
Az ingatlan főbb műszaki jellemzői
Szerkezet és állapot:
Falazat: b30 tégla + 12 cm hungarocell szigetelés + vakolat
Építés éve: 1978
Tető: cseréptető, jó állapotban
Kémény: kiváló állapotú
A ház penész és beázásmentes
Építési engedélyek: rendben, dokumentálva
Az ingatlan tehermentes
Nyílászárók:
Modern műanyag, 2 rétegű hőszigetelt ablakok
Minden nyílászáró redőnnyel és szúnyoghálóval felszerelt
Közművek:
Minden közmű elérhető: víz, gáz, villany, csatorna
Nincs fúrt kút
Pince: kb. 10 m2, száraz
Kerti csap a kertben
3 fázisú áram
Fűtés és gépészet:
Gázkazán és vegyes tüzelésű
Parkolás:
Fedett kocsibeálló
Nyitott kocsibeálló
Több autó számára ideális parkolási lehetőség biztosított a telken belül.
Kert és melléképület:
1117 m2 kert
1 almafa, 1 birsalmafa
Melléképület:
egyik fele fedett, másik nyitott
kerti szerszámok, tűzifa, kerékpárok tárolására tökéletes
Tágas előkert
A ház körbejárható, jól szellőző
Telek és beépíthetőség Lf2 övezet
Az ingatlan Lf2 falusias lakóövezetbe tartozik, amely kiemelten kedvező fejlesztési lehetőségeket biztosít:
Beépíthetőség: 30%
Megengedett építménymagasság: 7, 5 m
Oldalhatáron álló beépítés (O)
Zöldfelület minimum: 40%
Min. Telekszélesség: 16 m
Min. Telekméret: 600 m2
Iskolák:
József Attila Általános Iskola kb. 1, 1 Km
Szabolcs Vezér Gimnázium, Szakközépiskola kb. 1, 2 Km
(gyalogosan 10, 15 percen belül)
Egészségügyi ellátás:
Háziorvosi rendelő, gyógyszertár, védőnői szolgálat a településen
Könnyű megközelíthetőség, rövid távolságok
Közlekedés:
Buszmegálló: néhány száz méteren belül
Pusztaszabolcs vasútállomás: kb. 1, 5 Km
Budapest, Pécs, Székesfehérvár
Az utca 5 éve új aszfaltburkolatot kapott, kiváló állapotú
Környezet előnyei:
Csendes, barátságos utca
A közelben nincs nagyfeszültségű vezeték, ipari üzem, vonat, szemétégető, szennyvíztelep vagy forgalmas főút
Tiszta levegő, kisvárosias, biztonságos hangulat
Tulajdoni és birtoklási információk:
Tulajdonosok száma: 2 fő
Ingatlan tehermentes
Birtokba adás:
minimum 3 hónap, legkésőbb 6 hónapon belül
Kinek ajánlom?
Családoknak
Akik jó szerkezetű, megbízható házat keresnek
Kerttel rendelkezőknek, növénykedvelőknek
Vállalkozóknak
Fejlesztőknek / bővítésben gondolkodóknak
Olyanoknak, akik csendes, kulturált környezetet keresnek jó közlekedéssel
Érdeklődés esetén kérem keressenek telefonon. FIX 3% lakáshitelre megvehető
Tetszett ez az eladó Pusztaszabolcsi jó állapotú 3 szobás családi ház? Hívd fel a hirdetőt most, és tudj meg mindent erről az eladó családi házról! Ha gondolod nézelődj tovább az eladó ház Pusztaszabolcs oldal hirdetései között. Ennek az eladó háznak az ára 69000000 Ft és mivel az alapterülete 98 négyzetméter, ezért az átlagos négyzetméterára 704082 HUF/m2.
Az eladó házak menüpontban további hirdetések között is böngészhetsz. Ha van kedved, akkor böngészhetsz a Marczi Aletta összes hirdetése között, vagy akár a/az OTPip Dunaújváros Kőműves utca 7 - OTP Ingatlanpont Iroda összes hirdetése között is.

