Eladó újszerű állapotú ház - Székesfehérvár
- INGYENES HIRDETÉS FELADÁS
Ingatlan adatai
- Eladó vagy kiadó:Eladó
- Település:Székesfehérvár
- Kategória:Ház
- Alkategória:Családi ház
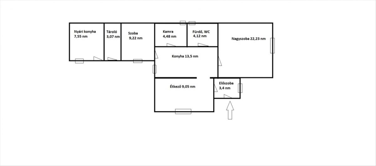
- Alapterület:66 m2
- Telekterület:1081 m2
- Csere is:Nem
- Hirdető:Cég
- Élő videón megtekinthető:Nem
- Építés éve:1960
- Szobaszám:2
- Állapot:Újszerű, kitűnő
- Hány szintes az ingatlan:Földszintes
- Tetőtér:nincs megadva
- Komfortosság:nincs megadva
- Pince:Van
- Parkolási lehetőség:Garázsban
- Fűtés:Egyéb
- Bútorozottság:nincs megadva
- Fényviszony:Jó
- Tájolás:nincs megadva
- Kilátás:nincs megadva
- Internet:nincs megadva
- Klíma:Van
- Akadálymentesített:nincs megadva
- Energiatanúsítvány:G
- Villany:Van
- Víz:Van
- Gáz:Van
- Csatorna:Van
- Kapcsolatfelvétel
Borbás László
+36-(70)-241-6516
Mondd meg a hirdetőnek, hogy a megveszLAK-on találtad a hirdetést.
Referencia szám: BL94
Hitel ajánlatok
Ingatlan hirdetés leírása
Kisfaludon családi ház eladó
Kisfalud csendes utcájában eladó, egy teljesen felújított vegyes falazatú családi ház szép rendezett kertel. a ház az 50-es 60-as években épülhetett, de a jelenlegi tulajdonos 2017-ben teljesen felújította. Minden szoba laminált padlózatot kapott, a többi helyiségek járólapos kivitelezésűek lettek. Víz, villany, gázvezetékek, valamint a szennyvíz vezetékek is ki lettek cserélve.
A fűtést gázkonvektorok és kandalló adja. a felújítás során a nagyszobába beépítésre került egy légkondi is. a villanyfelújítása során 32 Amper került bevezetésre, éjszakai áramként 16 Amper. Energiatakarékos világítótestek kerültek beépítésre. Az ablakok hőszigeteltek lettek, mindezek a felújításnak köszönhetőek. Az ablakokon szúnyogháló, redőny. a házhoz melléképületként egy nyárikonyha és szerszámtároló lett kiépítve. Régebben állattartásra ólak voltak kialakítva, ezek részben meg lettek tartva. Ezek mellett még bőven vannak tárolók.
Szép rendezett kert, gyümölcsfákkal kerti nővényekkel. a kertben és az udvaron kerticsap kerültkialakításra. Garázs könnyűszerkezetes 4x3-as méretű és fatároló szintén könnyűszerkezettel, ami 3x2-es méret található még a telken. Különálló pince kb. 7Nm.
Gáz átlag fogyasztás 44 m3. Melegvíz ellátás 60 literes villanybojlerrel, éjszakai árammal. Közigazgatásilag Székesfehérvárhoz tartozik, a helyijáratos busz kimegy Kisfaludra.
Hívjon bizalommal, visszahívom.
Referencia szám: bl94-ml FIX 3% lakáshitelre megvehető
Tetszett ez az eladó Székesfehérvári újszerű állapotú 2 szobás családi ház? Hívd fel a hirdetőt most, és tudj meg mindent erről az eladó családi házról! Ha gondolod nézelődj tovább az eladó ház Székesfehérvár oldal hirdetései között. Ennek az eladó háznak az ára 64900000 Ft és mivel az alapterülete 66 négyzetméter, ezért az átlagos négyzetméterára 983333 HUF/m2.
Az eladó házak menüpontban további hirdetések között is böngészhetsz. Ha van kedved, akkor böngészhetsz a Borbás László összes hirdetése között.

