Eladó jó állapotú ház - Székesfehérvár
- INGYENES HIRDETÉS FELADÁS
Ingatlan adatai
- Eladó vagy kiadó:Eladó
- Település:Székesfehérvár
- Kategória:Ház
- Alkategória:Családi ház
- Alapterület:75 m2
- Telekterület:681 m2
- Csere is:Nem
- Hirdető:Cég
- Élő videón megtekinthető:Nem
- Építés éve:1964
- Szobaszám:2 + 1 fél
- Állapot:Jó állapotú
- Hány szintes az ingatlan:Földszintes
- Tetőtér:nincs megadva
- Komfortosság:nincs megadva
- Pince:nincs megadva
- Parkolási lehetőség:Garázsban
- Fűtés:Gáz (konvektor)
- Bútorozottság:nincs megadva
- Fényviszony:nincs megadva
- Tájolás:nincs megadva
- Kilátás:nincs megadva
- Internet:nincs megadva
- Klíma:nincs megadva
- Akadálymentesített:nincs megadva
- Energiatanúsítvány:nincs megadva
- Villany:Van
- Víz:Van
- Gáz:Van
- Csatorna:Van
- Kapcsolatfelvétel

Posztlné Leiti Gabriella
+36-(30)-503-0000
Mondd meg a hirdetőnek, hogy a megveszLAK-on találtad a hirdetést.
Hitel ajánlatok
Ingatlan hirdetés leírása
Vásárláson gondolkodik? Ne habozzon! Használja ki az IGÉNYBE ...
Vásárláson gondolkodik? Ne habozzon!
Használja ki az igénybe vehető lehetőségeket! Fix 3 % hitel igényelhető!
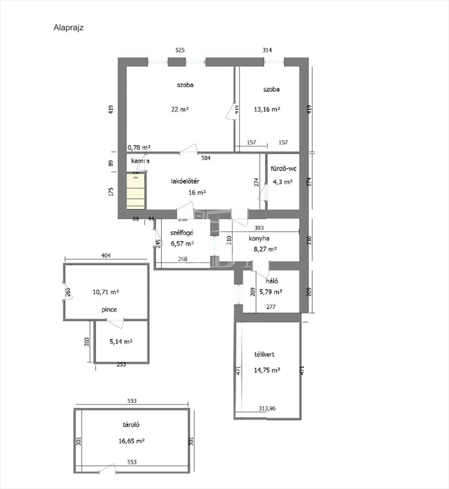
H-004679. Vezér utcák, központi részen, teljes közművel ellátott önálló, 681 m2-es sarok telken, karbantartott 76m2-es 2, 5 szobás családi ház, garázzsal eladó.
A közelben orvos, iskola, óvoda, Bevásárló központok, üzletek, Ipari park, megtalálhatóak. Buszmegálló pár percre.
Elosztását tekintve:
A ház: kb 76 m2 hasznos alapterületű, kialakításra került egy tágas előtér, konyha, étkező, 2, 5 szoba, 1 fürdő, wc, kamra, garázs és tárolók-ólak.
Az ház 1970-es évek elején épült, beton lábazat, tégla falazattal, cserépfedéssel. a meleg vízellátásról gáz, a fűtésről gázkonvektorok valamint a nagyméretű cserépkályha gondoskodnak. a burkolatokat tekintve a szobában parketta, a közlekedőben, valamint a konyhában és a vizes helyiségekben járólap, található. a nyílászárók részben cserélve lettek műanyag típusúak, rajtuk redőny és szúnyogháló található.
A telek körbekerített, található még egy garázs, és kb 40m2 melléképület. Az ingatlan az egyik utcafrontról személyi bejárattal rendelkezik, a másik oldalon gépkocsi bejárat és a garázs. Az udvar hátsó részén gazdasági épületek gyümölcsfák és veteményes található.
Eladási irányár: 61. 900. 000, - Ft
A házak adottságainak, fekvésének köszönhetően alkalmas lakhatáson kívül, vállalkozásra, üzleti vagy befektetési célra, hiszen akár bérbe adható, vagy üzlet, szolgáltatás (pl: fodrász, kozmetika, irodai tevékenység…. ) Kialakítható.
A ház a kényelmes otthont biztosít a lakók számára, mind a belső lakrészben, mind a kert, udvar, illetve a terasz területén. a vásárláshoz a jelenleg időszerű családok otthonteremtésére vonatkozó támogatás igénybe vehető (Otthon Start fix 3 % hitel, Jelzáloghitel, Babaváró, Piaci hitel……)
Ha felkeltette érdeklődését, hívjon bizalommal, (hétvégén is) éljen ingyenes, személyre szabott hitelügyintézés szolgáltatásunkkal. Segítünk továbbá adásvételhez szükséges ügyvédi közreműködésben, energetikai tanúsítvány, valamint értékbecslés elkészítésében.
For English details please send us a message or an e-mail, thank you. FIX 3% lakáshitelre megvehető
Tetszett ez az eladó Székesfehérvári jó állapotú 2 egész és 1 fél szobás családi ház? Hívd fel a hirdetőt most, és tudj meg mindent erről az eladó családi házról! Ha gondolod nézelődj tovább az eladó ház Székesfehérvár oldal hirdetései között. Ennek az eladó háznak az ára 61900000 Ft és mivel az alapterülete 75 négyzetméter, ezért az átlagos négyzetméterára 825333 HUF/m2.
Az eladó házak menüpontban további hirdetések között is böngészhetsz. Ha van kedved, akkor böngészhetsz a Posztlné Leiti Gabriella összes hirdetése között, vagy akár a/az GDN Ingatlanhálózat összes hirdetése között is.

