- >>
- eladó ingatlanok
- >>
- eladó ház
- >>
- eladó ház Tiszacsege
- >>
Eladó átlagos állapotú ház - Tiszacsege
| | |||
| Kedvencnek jelölöm | Elküldöm emailben | Megosztás | Szavazás |
| FIX 3% lakáshitelre megvehető | |||
| 26 000 000 HUF | |||
Ingatlan adatai
- Eladó vagy kiadó:Eladó
- Település:Tiszacsege
- Kategória:Ház
- Alkategória:Családi ház
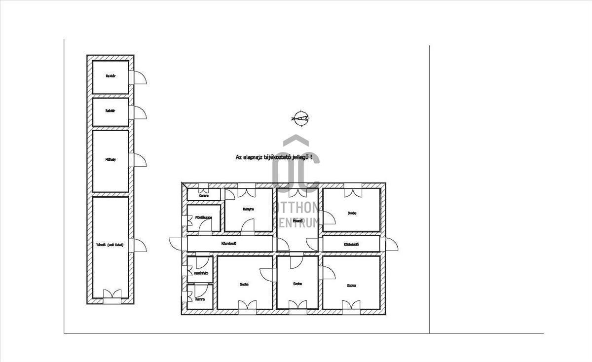
- Alapterület:148 m2
- Telekterület:1121 m2
- Csere is:Nem
- Hirdető:Cég
- Élő videón megtekinthető:Nem
- Építés éve:1950
- Szobaszám:5
- Állapot:Átlagos állapotú
- Hány szintes az ingatlan:nincs megadva
- Tetőtér:nincs megadva
- Komfortosság:nincs megadva
- Parkolási lehetőség:nincs megadva
- Fűtés:Vegyes tüzelésű kazán
- Bútorozottság:nincs megadva
- Fényviszony:nincs megadva
- Tájolás:DNY
- Kilátás:nincs megadva
- Internet:nincs megadva
- Akadálymentesített:nincs megadva
- Energiatanúsítvány:nincs megadva
- Villany:Van
- Víz:Van
- Gáz:Van
- Csatorna:Van
- Üzenetküldés
- Hívás

Langné Kiss Piroska
Mondd meg a hirdetőnek, hogy a megveszLAK-on találtad a hirdetést.

Hitel ajánlat
Ingatlan hirdetés leírása
Tiszacsege a Hortobágy és a Tisza ölelésében fekvő, csendes, b...
Tiszacsege a Hortobágy és a Tisza ölelésében fekvő, csendes, barátságos település, amely egyaránt kínál nyugalmat és kiváló kikapcsolódási lehetőségeket. a város hangulatát a Tisza közelsége, a természeti értékek és a jellegzetes alföldi táj varázsa határozza meg. a környék kedvelt úti cél horgászok, természetkedvelők és a vízparti pihenést keresők számára.A helyi termálstrand gyógyhatású vize egész évben vonzza a látogatókat, a településen pedig minden fontos szolgáltatás megtalálható: bolt, gyógyszertár, orvosi ellátás, óvoda, iskola és éttermek is a lakók rendelkezésére állnak. a híres tiszacsegei halászlé különleges gasztronómiai élményt nyújt.
A környék kiváló kiindulópont kirándulásokhoz, kerékpározáshoz és csónaktúrákhoz, a Hortobágy közelsége pedig páratlan természeti látványt biztosít.
Tiszacsege így ideális választás mindazok számára, akik szeretnének egy békés, élhető, tiszaparti településen otthonra lelni.
Ezen a településen kínálunk megvételre egy jó fekvésű, folyamatosan karbantartott, öt szobás, összközműves, központi fűtéses családi házat, amely tágas saroktelken helyezkedik el.
A szobák burkolata laminált -, illetve hajópadló, míg a többi helyiség mozaikkő borítást kapott.
A telken egy különálló kis épület is található, amely jelenleg műhelyként és tárolóként funkcionál, de akár önálló lakótérként is kialakítható.
A boltíves pince kiválóan alkalmas zöldség és gyümölcs tárolására, a tágas, rendezett udvar pedig kellemes lehetőséget biztosít a szabadidő eltöltésére a friss falusi levegőn.
Az ingatlan ideális választás mindazok számára, akik szívesen élnének egy hangulatos, tiszaparti, igazi alföldi településen.
Amennyiben felkeltettük érdeklődését vagy kérdése van az ingatlannal kapcsolatban, készséggel állunk rendelkezésére! FIX 3% lakáshitelre megvehető

