Eladó felújítandó ház - Újfehértó
- INGYENES HIRDETÉS FELADÁS
Ingatlan adatai
- Eladó vagy kiadó:Eladó
- Település:Újfehértó
- Kategória:Ház
- Alkategória:Családi ház
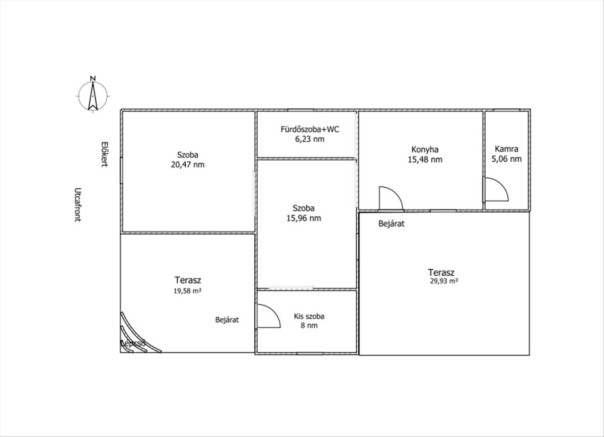
- Alapterület:71 m2
- Telekterület:2193 m2
- Csere is:Nem
- Hirdető:Cég
- Élő videón megtekinthető:Nem
- Építés éve:1970
- Szobaszám:2
- Állapot:Felújítandó
- Hány szintes az ingatlan:Földszintes
- Tetőtér:nincs megadva
- Komfortosság:nincs megadva
- Pince:Nincs
- Parkolási lehetőség:Udvaron
- Fűtés:Gáz
- Bútorozottság:nincs megadva
- Fényviszony:nincs megadva
- Tájolás:NY
- Kilátás:nincs megadva
- Internet:nincs megadva
- Klíma:nincs megadva
- Akadálymentesített:nincs megadva
- Energiatanúsítvány:nincs megadva
- Villany:Van
- Víz:Van
- Gáz:Van
- Csatorna:Van
- Kapcsolatfelvétel

Baku Lászlóné a Pontos...
+36-(70)-616-6565
Mondd meg a hirdetőnek, hogy a megveszLAK-on találtad a hirdetést.
Hitel ajánlatok
Ingatlan hirdetés leírása
Újfehértó főtérhez közel, 71 nm-es családi ház eladó
Újfehértó főterétől 10 perc sétára 71 nm -es családi ház eladó.
A városközpont közelsége és a családi házas övezet nyugalma jellemzi ezt a:
- 3 szoba, konyha, kamra, fürdőszoba WC-vel, valamint első és hátsó teraszos ingatlant.
- a ház teteje cseréppel fedett, nyílászárói között műanyag, hőszigetelt fa és fa is található.
- Fűtése gáz és vegyes tüzelésű kazánnal megoldott
- burkolat a szobákban pvc, a fürdőszobában és konyhában járólap
- külön kazánház és egy lemeztároló is található a 2. 193Nm-es telken
- az épület vályog építésű, jó statikai állapotú, összkomfortos.
- Kiépített infrastruktúra, bolt, iskola, óvoda, bölcsőde, buszváró 500- 1. 000 M-en belül
Amennyiben felkeltette érdeklődését a hirdetés, kérem hívjon, és mutatom.
Várom jelentkezését! FIX 3% lakáshitelre megvehető
Tetszett ez az eladó Újfehértói felújítandó 2 szobás családi ház? Hívd fel a hirdetőt most, és tudj meg mindent erről az eladó családi házról! Ha gondolod nézelődj tovább az eladó ház Újfehértó oldal hirdetései között. Ennek az eladó háznak az ára 24500000 Ft és mivel az alapterülete 71 négyzetméter, ezért az átlagos négyzetméterára 345070 HUF/m2.
Az eladó házak menüpontban további hirdetések között is böngészhetsz. Ha van kedved, akkor böngészhetsz a Baku Lászlóné a Pontos Ingatlanos összes hirdetése között, vagy akár a/az Elements Group összes hirdetése között is.

